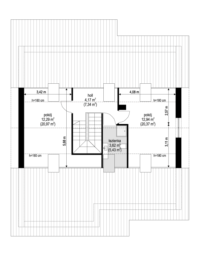
Projekt domu Ambitny 2 jest to projekt domu jednorodzinnego z serii ”Ambitny” - wariant projektu z niższym dachem o mniejszym kącie nachylenia, oraz z mniejszym poddaszem nad parterem. Ambitny 2 to dom dla 3- 5-osobowej rodziny, parterowy z poddaszem użytkowym, o prostej bryle - nieskomplikowany w budowie. Bryła budynku zbudowana jest na planie prostokąta, dom przykryty jest dwuspadowym dachem o kalenicy równoległej do elewacji frontowej. Konstrukcję budynku zaprojektowano z wykorzystaniem wiązarów prefabrykowanych, dzięki czemu budowa domu jest znacznie szybsza, łatwiejsza - i co najważniejsze - tańsza. Murowana część domu kończy się na wieńcach nad ścianami parteru, oraz na dwóch ścianach szczytowych poddasza. Pozostałą część konstrukcji stropu, ścianek kolankowych, oraz więźby dachowej stanowi układ drewnianych wiązarów ramowo -kratowych. Taka mieszana konstrukcja domu jest coraz częściej stosowana na budowach - jako nowoczesne i bardzo wydajne rozwiązanie. Architektura domu jest nowoczesna, wykorzystuje modne detale, materiały i kolorystykę, a jednocześnie dom ma spokojny i powściągliwy wygląd - bez zbędnej ekstrawagancji. W wyglądzie zewnętrznym budynku króluje poczucie solidności i prostoty. Wejście zaakcentowano narożnym podcieniem i podestem. Od strony elewacji ogrodowej dom zdobią duże przeszklenia otwierające pokój dzienny na taras, okładzina drewniana (lub drewnopodobna) ścian salonu, oraz duże zadaszenie tarasu. Wnętrze budynku zaprojektowano tak, aby rodzina miała możliwość zamieszkać w nim najpierw na parterze, a potem w drugim etapie zagospodarować poddasze. Możliwość wykończenia wnętrza domu etapami jest bardzo dużym atutem projektu. Na parterze mam do dyspozycji dużą połączoną przestrzeń dzienną, składającą się z salonu, holu i kuchni. W oddzielonym narożniku domu mamy do dyspozycji dwa pokoje i łazienkę, oraz pralnię. Natomiast obok przedsionka wejściowego zlokalizowana jest kotłownia i garaż. Na poddaszu mamy do dyspozycji dwa pokoje i łazienkę - które mogą być wykończone w późniejszym etapie. Budynek ma bardzo prostą konstrukcję. Będzie szybki w budowie i niedrogi. Dom jest energooszczędny - doskonałe izolacje, zastosowane nowoczesne materiały i instalacje pozwolą uzyskać niskie koszty utrzymania budynku. Dom jest świetną propozycją dla rodzin budujących swój pierwszy dom, które są na początku drogi, z dziećmi które dopiero rosną. Dodatkowe rezerwowe poddasze daje zapas przestrzeni do wykorzystania na później. Dom doskonale sprawdzi się też dla osób starszych, do których przyjeżdżają dzieci i wnuki w gościnę. Zapraszamy https://www.mgprojekt.com.pl/
Materiały:
- Fundamenty betonowe ławy i ściany fundamentowe z bloczków betonowych
- Ściany zewnętrzne ściany murowane - pustaki gazobetonowe 24 cm + styropian
- Strop i konstrukcja dachu wiązary prefabrykowane drewniane
- Elewacje tynk cienkowarstwowy
- Pokrycie dachu dachówka




















