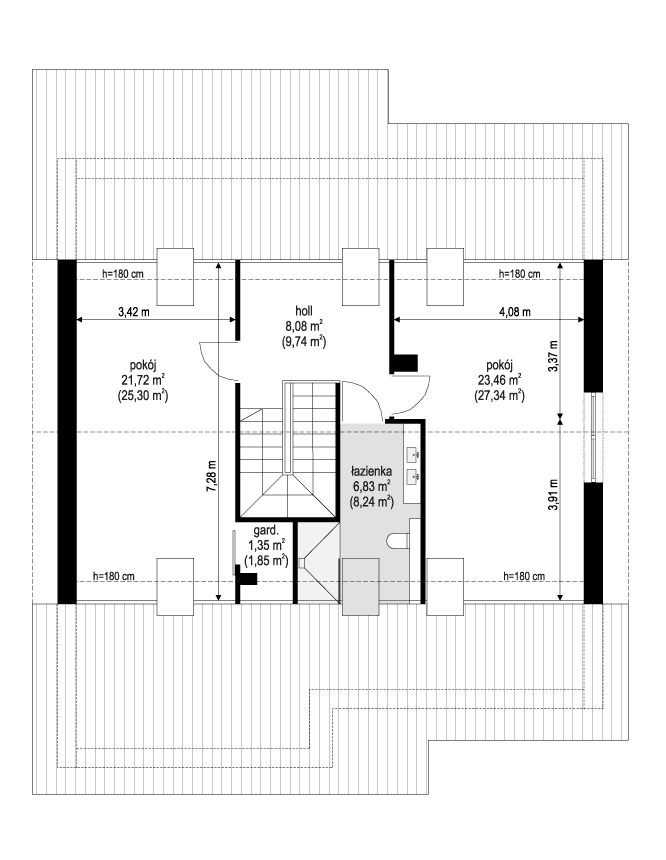
Projekt domu Ambitny jest to projekt domu dla 3- 5-osobowej rodziny, parterowy z poddaszem użytkowym, o prostej bryle - nieskomplikowany w budowie. Bryła budynku zbudowana jest na planie prostokąta, dom przykryty jest dwuspadowym dachem o kalenicy równoległej do elewacji frontowej. Konstrukcję budynku zaprojektowano z wykorzystaniem wiązarów prefabrykowanych, dzięki czemu budowa domu jest znacznie szybsza, łatwiejsza - i co najważniejsze - tańsza. Murowana część domu kończy się na wieńcach nad ścianami parteru, oraz na dwóch ścianach szczytowych poddasza. Pozostałą część konstrukcji stropu, ścianek kolankowych, oraz więźby dachowej stanowi układ drewnianych wiązarów ramowo -kratowych. Taka mieszana konstrukcja domu jest coraz częściej stosowana na budowach - jako nowoczesne i bardzo wydajne rozwiązanie. Architektura zewnętrza domu jest spokojna, bez przesadnej ekstrawagancji. Właściwe proporcje bryły, dobrze dobrane materiały i detale wykończeniowe dają domowi estetyczny, przyciągający wzrok wygląd. Dom doskonale łączy w sobie nowoczesność i tradycję. Wejście zaakcentowano narożnym podcieniem wejściowym. Od strony elewacji ogrodowej dom zdobią duże przeszklenia otwierające pokój dzienny na taras i ogród, oraz duże zadaszenie tarasu. Wnętrze budynku zaprojektowano w taki sposób, aby rodzina miała możliwość zamieszkać w nim najpierw na parterze, a potem w drugim etapie zagospodarować poddasze. Możliwość wykończenia wnętrza domu etapami jest bardzo dużym atutem projektu. Na parterze mam do dyspozycji dużą połączoną przestrzeń dzienną, składającą się z salonu, holu i kuchni. W oddzielonym narożniku domu mamy do dyspozycji dwa pokoje i łazienkę, oraz pralnię. Natomiast obok przedsionka wejściowego zlokalizowana jest kotłownia i garaż. Na poddaszu mamy dwa bardzo ładne pokoje i łazienkę - które mogą być wykończone w późniejszym etapie. Budynek ma bardzo prostą konstrukcję. Będzie szybki w budowie i niedrogi. Dom jest energooszczędny - doskonałe izolacje, zastosowane nowoczesne materiały i instalacje pozwolą uzyskać niskie koszty utrzymania budynku. Dom jest świetną propozycją dla rodzin budujących swój pierwszy dom, które są na początku drogi, z dziećmi które dopiero rosną. Dodatkowe rezerwowe poddasze daje zapas przestrzeni do wykorzystania na później. Dom doskonale sprawdzi się też dla osób starszych, do których przyjeżdżają dzieci i wnuki w gościnę. Zapraszamy https://www.mgprojekt.com.pl/
Materiały:
- Fundamenty betonowe ławy i ściany fundamentowe z bloczków betonowych
- Ściany zewnętrzne ściany murowane - pustaki gazobetonowe 24 cm + styropian
- Strop i konstrukcja dachu wiązary prefabrykowane drewniane
- Elewacje tynk cienkowarstwowy
- Pokrycie dachu blacha na rąbek




















