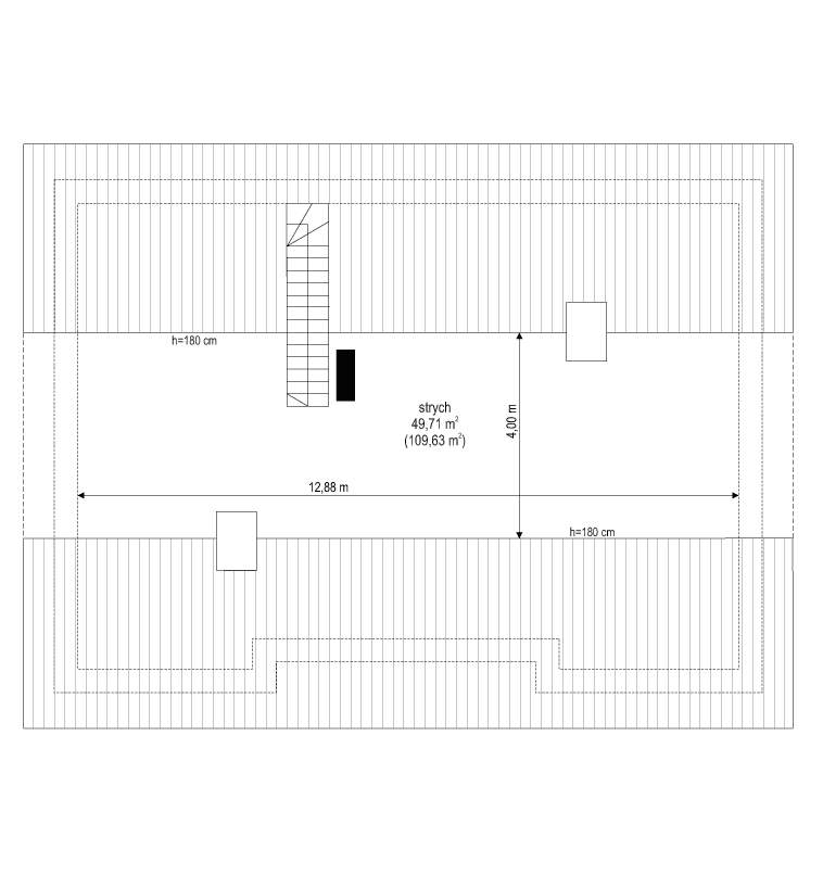
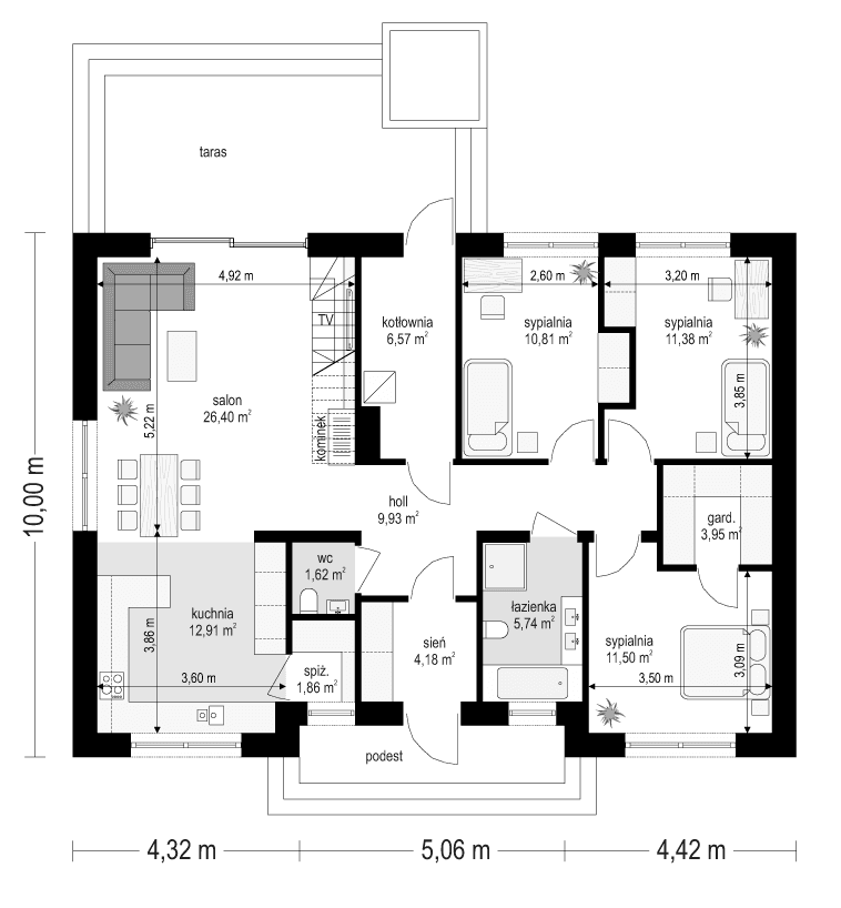
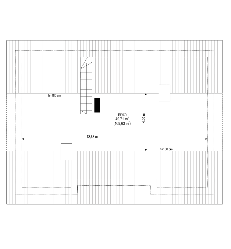
Projekt domu Ekonomiczny 2 jest to projekt niedużego parterowego domu jednorodzinnego dla 3-4 osób. Jest to jeden z projektów z serii domków o tej samej nazwie. Ekonomiczny 2 jest propozycją niewielkiego parterowego budynku, zaprojektowanego na prostokątnym planie, przykrytego dwuspadowym dachem, kryjącym strych do dowolnego wykorzystania. Jest to wariant z podniesionym kątem nachylenia dachu i większą przestrzenią strychowo – poddaszową w stosunku do pierwotnego projektu z serii. Budynek zawiera w sobie bardzo wygodne wnętrze, ze wszystkimi potrzebnymi pomieszczeniami na poziomie parteru, oraz z dodatkową dużą przestrzenią strychową, którą w bardzo łatwy sposób można adaptować na regularne poddasze użytkowe, z dwoma extra pokojami. Na parterze mamy cześć dzienną salonu i kuchni - z półwyspem i spiżarnią, a po drugiej stronie trzy sypialnie, w tym sypialnię master z osobną garderobą, oraz wygodną łazienkę. Dwie części domu rozdzielone są pomieszczeniem kotłowni z wyjściem na zewnątrz, ze wspólnym zespołem kominowym z kominkiem salonu. Wejście do domu bardzo urokliwie podkreślono niszą z zadaszonym podcieniem, oraz reprezentacyjnym szerokim podestem. Elewacja frontowa jest idealnie symetryczna. Przywołuje swoją symetrią dawną architekturę dworkową, lecz sam styl budynku jest absolutnie współczesny - jest mieszanką nowoczesności z ukłonem w kierunku ponadczasowej tradycji. Patrząc na dom, mamy wrażenie porządku, harmonii i solidności. Taka idea przyświecała projektantom : dom miał być architektonicznie prosty, ale miał mieć w sobie „coś” przyciągające uwagę. Od strony ogrodowej najważniejszymi elementami są : duże okno przesuwne z salonu, otwierające wnętrze na ogród, oraz taras będący przedłużeniem pokoju dziennego. Staraliśmy się zaprojektować dom maksymalnie logicznie i praktycznie, a zarazem umieścić w nim trochę piękna - takiego, które nie skomplikuje budowy i nie będzie twardym orzechem do zgryzienia dla wykonawców. Konstrukcja budynku jest prosta i niedroga w budowie. Wszystkie prace murarskie i betonowe kończą się na wysokości wieńców nad ścianami parteru. Wyżej mamy układ drewnianych wiązarów dachowych, które są jednocześnie konstrukcją stropu nad parterem jak i więźby dachowej. Taki sposób budowania znacznie upraszcza inwestycję, przyspiesza ją i - co najważniejsze - obniża koszty. W projekcie zastosowano bardzo dobre izolacje i nowoczesne instalacje, dzięki czemu budynek jest energooszczędny i będzie tani w późniejszej eksploatacji. Ekonomiczny 2 to propozycja projektu dla osób podchodzących do budowy pragmatycznie, planujących szybką i bezbolesną budowę, która nie zabierze Inwestorowi połowy życia. Z „Ekonomicznym 2 ” z pewnością się to uda. Zapraszamy !
Materiały:
- Fundamenty betonowe ławy i ściany fundamentowe z bloczków betonowych
- Ściany zewnętrzne ściany murowane - pustaki gazobetonowe 24 cm + styropian
- Strop i konstrukcja dachu wiązary prefabrykowane drewniane
- Elewacje tynk cienkowarstwowy
- Pokrycie dachu dachówka




















