Sensowny 2 - praktyczny i tani w budowie dom jednorodzinny
Sensowny 2 to praktyczny i niedrogi dom jednorodzinny, który doskonale sprawdzi się dla 2-3 lub 4 osobowej rodziny. Dom jest zaprojektowany w stylu nowoczesnym, z dużymi przeszkleniami, które zapewniają dostęp do naturalnego światła.
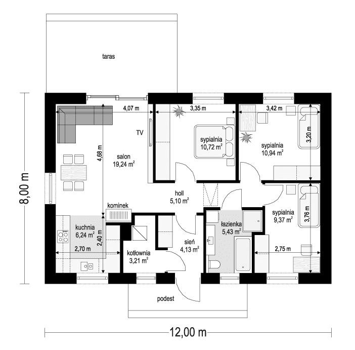
Bryła budynku Sensowny 2:
Dom Sensowny 2 jest zaprojektowany w zabudowie wolnostojącej. Bryła budynku jest prosta i symetrijna, dzięki czemu dom jest estetyczny i łatwy w budowie.
Wnętrze domu Sensowny 2:
Wnętrze domu Sensowny 2 jest funkcjonalne i przestronne. Na parterze znajduje się przestronna część dzienna, w której znajduje się salon z kominkiem, kuchnia i hol. Na parterze znajduje się również kotłownia. Na poddaszu znajdują się trzy sypialnie i łazienka.
Funkcjonalność domu Sensowny 2:
Dom Sensowny 2 jest bardzo funkcjonalnym domem. Na parterze znajduje się przestronna część dzienna, która jest idealnym miejscem do wypoczynku i spędzania czasu z rodziną. Na parterze znajduje się również kuchnia, która jest idealnym miejscem do przygotowywania posiłków. Na poddaszu znajdują się trzy sypialnie, które mogą być wykorzystane jako sypialnie dla dzieci lub gości. Dodatkowo, na poddaszu znajduje się łazienka.
Sensowny 2 to doskonały wybór dla osób, które szukają praktycznego i niedrogiego domu jednorodzinnego. Dom jest zaprojektowany w stylu nowoczesnym, z dużymi przeszkleniami, które zapewniają dostęp do naturalnego światła. Dom jest również bardzo funkcjonalny i energooszczędny.
Opinia Sensowny 2:
- "Sensowny 2 to doskonały wybór dla osób, które szukają niedrogiego domu, który będzie łatwy w budowie i utrzymaniu. Dom jest bardzo funkcjonalny i przestronny, a dzięki nowoczesnemu designowi jest również bardzo estetyczny. Gorąco polecam!" - Malwina i Mateusz

















