Projekt Willa Moderna 2 - Piękny dom piętrowy z garażem dwustanowiskowym
Willa Moderna 2 to dwukondygnacyjny budynek z płaskim dachem. Bryła domu jest prosta i nowoczesna, z elementami nawiązującymi do stylu modernistycznego. Elewacje domu są wykończone w jasnych kolorach, które nadają mu lekkości i elegancji.
Willa Moderna 2 to elegancki dom piętrowy z garażem dwustanowiskowym, idealny dla wymagających klientów, którzy poszukują wygodnego i funkcjonalnego domu z nowoczesną architekturą.
Wnętrze domu
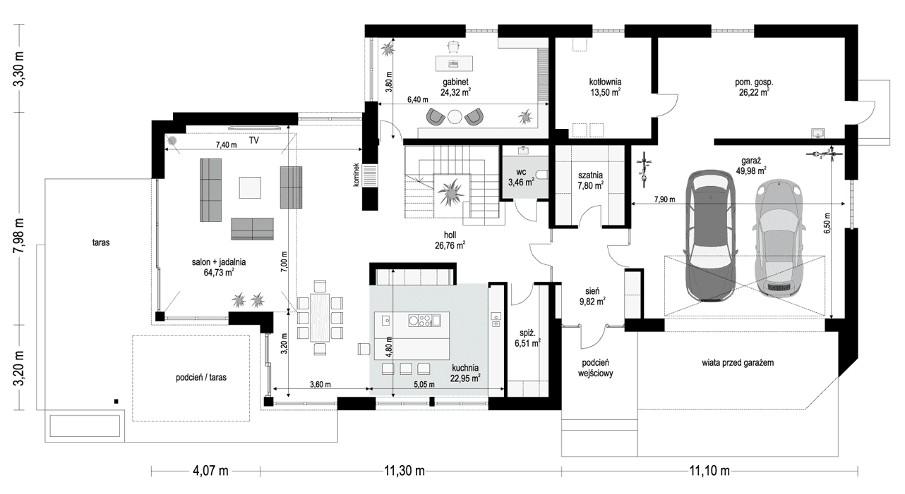
Wnętrze Willi Moderna 2 jest przestronne i komfortowe. Na parterze znajduje się jednoprzestrzenna część dzienna, składająca się z salonu z kuchnią i jadalnią. Salon jest połączony z kuchnią, dzięki czemu można wygodnie spędzać czas z rodziną i przyjaciółmi. W części dziennej znajduje się również gabinet lub biuro domowe.
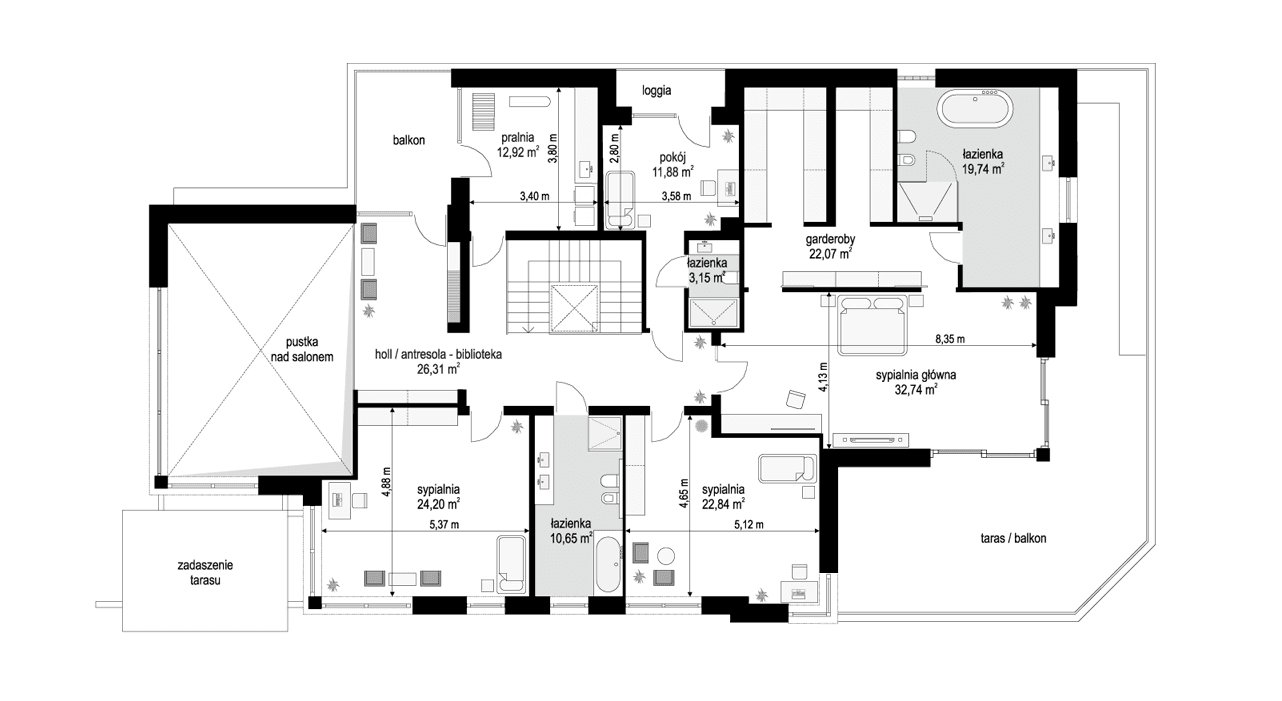
Na piętrze znajdują się cztery sypialnie, każda z łazienką. Jedna z sypialni jest połączona z tarasem. Na piętrze znajduje się również pralnia i suszarnia.
Funkcjonalność domu
Willa Moderna 2 jest funkcjonalnym domem, który zapewnia komfortowe warunki do życia dla rodziny. Dom jest wyposażony w garaż dwustanowiskowy, który zapewnia miejsce do przechowywania samochodów.
Energooszczędność domu
Willa Moderna 2 jest energooszczędnym domem, dzięki zastosowaniu nowoczesnych rozwiązań materiałowych i technologicznych. Dom jest wyposażony w okna o wysokich parametrach termoizolacyjnych, a także w system wentylacji mechanicznej z rekuperacją.
Willa Moderna 2 to elegancki i funkcjonalny dom piętrowy z garażem dwustanowiskowym. Dom jest idealny dla wymagających klientów, którzy poszukują nowoczesnego i komfortowego domu.
Zalety projektu domu:
- Przestronne i funkcjonalne wnętrze
- Willa z pełnym piętrem
- Elegancka architektura
- Dwustanowiskowy garaż
Willa Moderna 2 to piękna, elegancka willa, która zapewnia komfort i wygodę użytkowania. Dom jest idealny dla rodzin z dziećmi, które potrzebują przestrzeni i komfortu.















