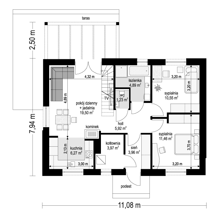
Projekt domu Kasia 6 to projekt prostego bezpretensjonalnego domu – energooszczędnego, niedrogiego w budowie i późniejszym utrzymaniu - w sam raz dla 4-5 osobowej rodziny, która chce żyć wygodnie i komfortowo, ale nie chce zadłużać się na całe życie inwestując w drogi dom. Seria domków „ Kasia ” to doskonała propozycja dla pragmatycznie myślących osób, planujących budowę łatwą, szybką i nieskomplikowaną. Budynek zaprojektowano jako parterowy, założony na planie prostokąta o wymiarach 11x8 m, przykryty dwuspadowym dachem. Zasadniczą podstawową bryłę domu można - w zależności od wybranej wersji wariantowej „Kasi” - wzbogacić o: wiatę garażową, garaż, zadaszenie nad tarasem ogrodowym, czy też strych nad parterem o funkcji magazynu, lub poddasza do zagospodarowania w razie potrzeby. Dom ma prostą i nowoczesną architekturę, a zarazem przytulny i sympatyczny wygląd - aż ma się ochotę w nim zamieszkać. Do wnętrza prowadzą nas drzwi wejściowe z naświetlem, do przedsionka z szafami. Stąd przechodzimy do przedpokoju, a dalej do salonu z kuchnią, oraz sypialni, łazienki i wc. Z przedsionka jest też dostęp do kotłowni, w której można umieścić zarówno kocioł c.o. na gaz, jak i pompę ciepła powietrze –woda, albo niewielki kocioł na paliwo stałe - w zależności od wyboru systemu ogrzewania. W salonie mamy wolną ścianę telewizyjną i kominek narożny na osobnej ścianie - obok kotłowni dzięki czemu w domu jest tylko jeden zespół kominowy. W domu zaprojektowano osobno łazienkę i wc - wygodne rzadko spotykane rozwiązanie w niewielkich domach. W łazience mamy dużo miejsca na prysznic, oraz pralkę i suszarkę. W budynku przewidziano wentylację mechaniczną z rekuperacją w standardzie. Można rozważyć dokupienie instalacji paneli fotowoltaicznych - kształt dachu na to pozwala. Konstrukcja „Kasi” jest bardzo prosta - prościej się nie da: mamy tutaj tylko ściany zewnętrzne jako konstrukcyjne, a nad ścianami wiązary dachowe, stanowiące konstrukcję stropu i dachu. Posiadamy wersję wariantową z otwartym sufitem nad salonem aż do dachu, dzięki czemu wnętrze salonu powiększa się. „Kasia” to projekt energooszczędny, z bardzo dobrymi ociepleniami przegród, z nowoczesnymi instalacjami, tani w budowie i późniejszym utrzymaniu. Zapraszamy do zapoznania się także z projektami domków: Kasia, Kasia 2, Kasia 3, Kasia 4, Kasia 5, Kasia 7!
Materiały:
- Fundamenty betonowe ławy i ściany fundamentowe z bloczków betonowych
- Ściany zewnętrzne ściany murowane - pustaki gazobetonowe 24 cm + styropian
- Strop i konstrukcja dachu wiązary prefabrykowane
- Elewacje tynk cienkowarstwowy
- Pokrycie dachu dachówka




















