Projekt domu Narcyz 2 to projekt z serii domów Narcyz. Ideą jaka przyświecała stworzeniu projektów z tej serii było uzyskanie prawdziwego domu - o takim kształcie i funkcji, które większość z nas automatycznie ma w głowie wyobrażając sobie dom. Domy takie jak Narcyz rysują nasze dzieci, takie domy są głęboko w naszej pamięci. Postanowiliśmy połączyć tradycyjną formę budynku z dwuspadowym dachem z nowoczesnymi rozwiązaniami funkcjonalno - materiałowymi, tak aby jego architektura była maksymalnie ponadczasowa, ładnie się starzała, a jednocześnie żeby nawiązywała do obecnie obowiązującej mody.
Projekt domku Narcyz 2 architektura i wnętrze
Gotowy projekt Narcyz 2 to parterowy dom z poddaszem użytkowym, zbudowany na planie prostokąta, przykryty dwuspadowym dachem. Do głównej bryły projektu Narcyz 2 dobudowany jest dwustanowiskowy garaż z poddaszem. Symetryczną proporcjonalną elewacją frontową projektu ozdabia podcień wejściowy i szeroka lukarna z balkonem. Elewację ogrodową projektu Narcyz 2 urozmaica zadaszenie tarasu, oraz szerokie przesuwne drzwi balkonowe projektu Narcyz 2 otwierające salon na taras i otaczający dom ogród.
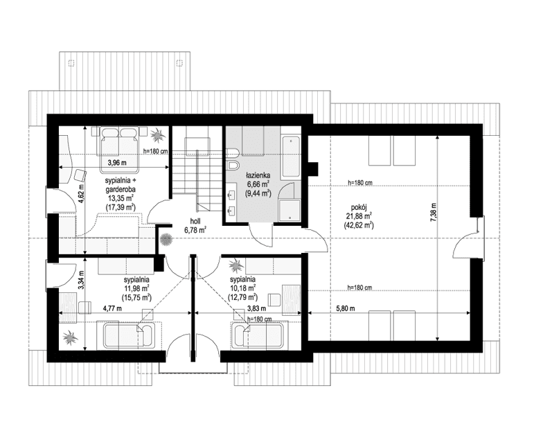
Wnętrze parteru w projekcie domku Narcyz 2 to blisko 40-metrowa połączona przestrzeń salonu, holu i kuchni, reprezentacyjne schody na poddasze, dodatkowy pokój (gabinet lub sypialnia), pomieszczenia gospodarcze, oraz podwójny garaż i kotłownia duża. Lokalizacja kotłowni pozwala na instalację zarówno kotła gazowego lub pompy ciepła, jak i kotła na paliwo stałe. W projekcie domku Narcyz 2 sporo miejsca przeznaczono na część gospodarczą, oraz na miejsca do przechowywania: przy przedsionku projektu Narcyz 2 mamy dużą szatnię – garderobę, dalej pomieszczenie pralni-suszarni, natomiast przy kuchni przewidziano spiżarnię. Na poddaszu projektu Narcyz 2, mimo skosów dachu, zmieściły się wygodne cztery pokoje, oraz duża łazienka. Sypialnia rodziców w projekcie Narcyz 2 ma własną sporą garderobę. Poddasze projektu Narcyz 2 można powiększyć podnosząc nieco ściany kolankowe – wedle decyzji Inwestora. Pokój nad częścią garażową w tym projekcie domu jest bardzo duży.
Budowa domu
Projekt Narcyz 2 ma zwartą prostą bryłę, budynek nie jest trudny do budowy, a nowoczesne rozwiązania instalacyjne i bardzo dobre izolacje sprawiają, że projekt domu jest budynkiem energooszczędnym i tanim w utrzymaniu.
Projekt domku Narcyz 2 to idealna propozycja dla osób, które nie chcą ryzykować, chcą postawić na sprawdzoną od wielu lat architekturę, bez udziwnień i potencjalnych kłopotów, tak aby mieć kontrolę nad procesem budowy, a przede wszystkim nad kosztami budowy. Przy okazji projekt domku Narcyz 2 to po prostu śliczny, zgrabny dom jednorodzinny, który doskonale wpasuje się w każde otoczenie.
Jednorodzinny projekt domku Narcyz 2 z pracowni MGProjekt dostępny jest w wersji odbicia lustrzanego, oraz jako warianty: projekt domu Narcyz, projekt domu Narcyz 3, projekt domu Narcyz 4.
Materiały:
- Fundamenty betonowe ławy i ściany fundamentowe z bloczków betonowych
- Ściany zewnętrzne ściany murowane - gazobetonowe 24 cm + styropian
- Strop teriva
- Elewacje tynk cienkowarstwowy
- Pokrycie dachu blacha na rąbek




















