Projekt Narcyz to elegancki dom parterowy z poddaszem
Dom Narcyz 2 to elegancki dom parterowy z poddaszem, który zachwyca nowoczesną bryłą i funkcjonalnym wnętrzem. Dom jest idealny dla rodzin 4-5-osobowych, które szukają wygodnego i przestronnego domu w nowoczesnym stylu.
Zalety projektu domu Narcyz :
- projekt domu parterowy z poddaszem
- gotowy projekt domu
- elegancki dom
- funkcjonalny dom
- energooszczędny dom
Funkcjonalność projektu domu Narcyz 2:
Dom Narcyz jest bardzo funkcjonalnym domem. Na parterze znajduje się przestronna część dzienna, która jest idealnym miejscem do wypoczynku i spędzania czasu z rodziną. Na parterze znajduje się również garaż, który jest wygodnym miejscem do parkowania samochodu.
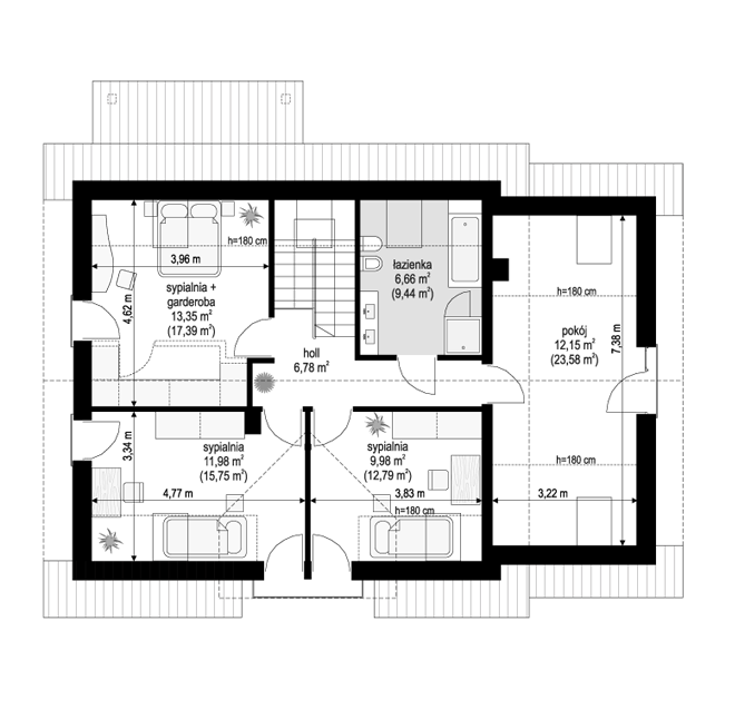
Na poddaszu znajdują się cztery wygodne pokoje, które mogą być wykorzystane jako sypialnie, pokoje dla dzieci lub gabinety. Duża łazienka zapewnia domownikom komfort i wygodę.
Energooszczędność projektu domu Narcyz :
Dom Narcyz został zaprojektowany jako energooszczędny. Ma bardzo dobre parametry izolacji termicznej i nowoczesne instalacje, dzięki czemu będzie niedrogi w utrzymaniu. W domu zastosowano również szereg rozwiązań, które poprawiają komfort użytkowania budynku, takich jak:
- wentylacja mechaniczna z odzyskiem ciepła
- instalacja fotowoltaiczna
- ogrzewanie podłogowe
Bryła budynku domu Narcyz:
Dom Narcyz został zaprojektowany na planie prostokąta, przykryty jest dwuspadowym dachem. Bryła budynku jest zwarta i dynamiczna, a duże przeszklenia elewacji zapewniają domownikom dostęp do naturalnego światła. Elewacje domu zostały wykończone w bieli, co podkreśla nowoczesny charakter budynku, a kontrastujące z bielą fragmenty obłożone drewnem nadają bryle budynku elegancji i wyrazu.
Wnętrze projektu domu Narcyz:
Wnętrze domu Narcyz zostało zaprojektowane w sposób funkcjonalny i komfortowy. Na parterze znajduje się przestronna część dzienna, w której znajduje się salon z kominkiem, jadalnia i kuchnia. Duże przeszklenia otwierają wnętrze na ogród, zapewniając domownikom stały dostęp do świeżego powietrza i naturalnego światła. Na parterze znajduje się również garaż, kotłownia i pralnia.
Na poddaszu domu znajdują się cztery wygodne pokoje, oraz duża łazienka. Sypialnia rodziców ma własną garderobę. Poddasze jest dostępne za pomocą wygodnych schodów.
Pozytywne opinie o projekcie domu Narcyz:
- "Dom Narcyz to idealny dom dla naszej rodziny. Jest tani w budowie, funkcjonalny i energooszczędny. Bardzo nam się dobrze w nim mieszka." - Danuta i Piotr
- "Wybraliśmy dom Narcyz, bo to świetny wybór dla nas: prosta bryła, podrausjemy dom nieco w model nowoczesnej stodoły, ale jest super dobrze funkcjonalnie rozwiązany. Dom jest wygodny i przestronny, a jego bryła jest bardzo elegancka." - Anna i Marek
- "Dom Narcyz to projekt domu z poddaszem, który zachwycił nas od pierwszego wejrzenia. . Zdecydowanie polecamy!" - Magdalena i Daniel




















