Willa Siedziba 2: Piękna Rezydencja Pełna Blasku
Szukasz wyjątkowego i reprezentacyjnego domu dla swojej rodziny? Willa Siedziba 2 to wspaniały projekt, który zachwyci Cię elegancją, funkcjonalnością i luksusowym wykończeniem. Charakterystyczne dla projektu: wspaniały dom piętrowy, reprezentacyjna willa, klasyczna rezydencja, elegancki dom, luksusowy dom, funkcjonalny dom, komfortowy dom, energooszczędny dom, dom dla koneserów piękna
Klasyka w nowoczesnym wydaniu
Willa Siedziba 2 to klasyczna rezydencja nawiązująca stylem do najlepszych dwudziestowiecznych wzorów podmiejskich willi. Projekt czerpie z historycznych wzorców architektury rezydencyjnej, pełen jest ciekawych detali, a jednocześnie łączy w sobie zupełnie współczesną funkcję wygodnego domu jednorodzinnego.
Elewacja, która zachwyca
Elewacje domu ozdobiono płytkami klinkierowymi, które dodają wrażenia solidności i luksusu. Pięknie zaakcentowane wejście, wykusze kuchni i jadalni oraz balkon z saloniku-biblioteki na piętrze nadają rezydencji niepowtarzalnego charakteru.
Przestronne i funkcjonalne wnętrze
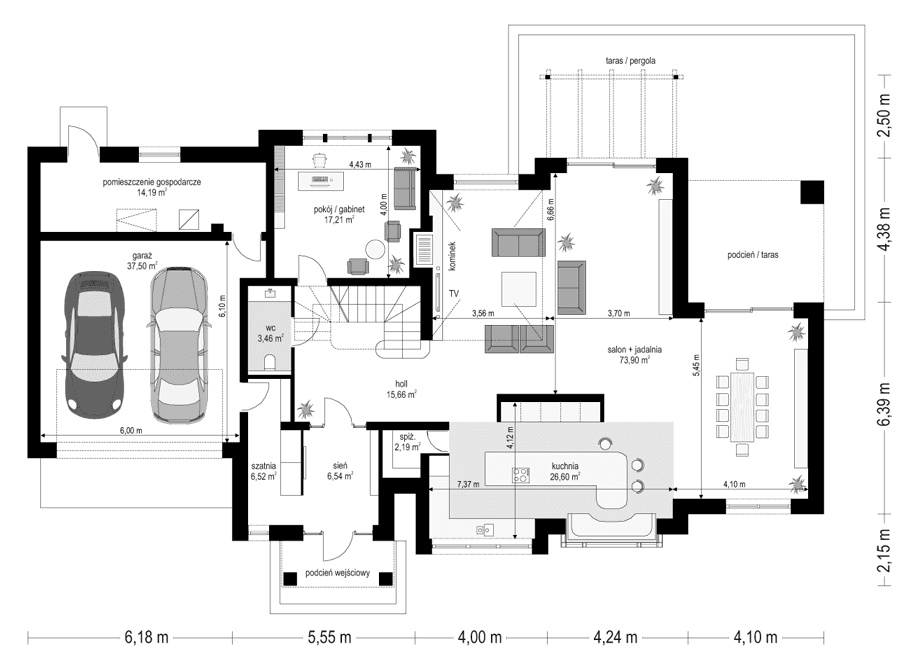
Wnętrze domu zostało podzielone na strefę dzienną i strefę nocną. Strefa dzienna to przestronny salon z pustką otwartą na antresolę na piętrze, jadalnia oraz kuchnia z mini-jadalnią.
Na piętrze znajdują się trzy sypialnie, dwie łazienki oraz antresola będąca domową biblioteką a jednocześnie przedłużeniem salonu parteru.
Dom energooszczędny i komfortowy
Willa Siedziba 2 została zaprojektowana z energooszczędnych materiałów. Dom posiada dobre ocieplenia i nowoczesne instalacje, co zapewnia komfort użytkowania i niskie koszty eksploatacji.
Dom dla koneserów piękna
Willa Siedziba 2 to niezwykły dom dla osób, które cenią piękno, elegancję i komfort. Ten wyjątkowy projekt z pewnością zachwyci wszystkich, którzy szukają czegoś więcej niż zwykły dom.




















