Projekt domu Willa Siedziba to przykład klasycznej reprezentacyjnej willi nawiązującej stylem architektonicznym do najlepszych dwudziestowiecznych wzorów podmiejskich rezydencji. Projekt Willa Siedziba czerpie z historycznych wzorów architektury rezydencyjnej, pełen jest ciekawych detali, a jednocześnie łączy w sobie zupełnie współczesną funkcję wygodnego domu jednorodzinnego.
Bryła domu Willa Siedziba
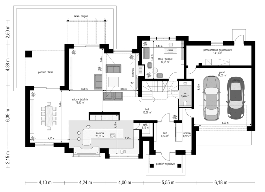
Bryłę Willi Siedziby zaprojektowano na planie prostokąta, z szeroką elewacją frontową i ogrodową, tak aby idealnie pasował na parcelę zbliżoną kształtem do kwadratu, zostawiając miejsce na ładny ogród i sporo miejsca od frontu. Rozczłonkowana bryła Willi Siedziba składa się z kilku mniejszych fragmentów. Trzon domu Willa Siedziba to piętrowa część obudowana wokół parterowymi dobudówkami. Od frontu mamy pięknie zaakcentowane wejście, z szerokimi drzwiami z naświetlami, prowadzącymi do przedsionka i dużego holu. Front domu Willa Siedziba to również aż dwa piękne wykusze – kuchni i jadalni domowników, oraz balkon z saloniku-biblioteki na piętrze. Wycofany o kilka metrów w tył garaż nie rzuca się w oczy, a zarazem cofnięcie garażu zwiększa podjazd. Elewacja tylna willi jest równie ciekawa. Mamy tutaj dwukondygnacyjne okno z salonu otwierające widok na ogród i pięknie doświetlające pokój dzienny, oraz dwa wyjścia na taras - pod romantyczną pergolę, oraz do obszernego podcienia - zadaszającego fragment tarasu. Duże okno z gabinetu również otwiera się na stronę ogrodową. Na piętrze szerokie okno balkonowe z balkonem łączy sypialnię państwa domu z widokiem ogrodowym.
Willa Siedziba wnętrze
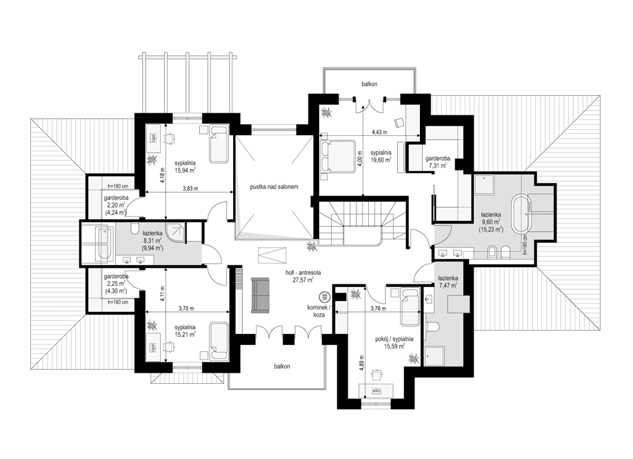
Wnętrze domu Willa Siedziba podzielono funkcjonalnie w następujący sposób: strefa wejściowa na parterze składa się z przedsionka z szatnią, połączonego z reprezentacyjnym holem ze schodami na wprost wejścia. Zakończeniem tej osi jest gabinet. Z holu przedostajemy się w lewo do części dziennej, już bardziej prywatnej i mamy tutaj salon z pustką otwarty na antresolę na piętrze, jadalnię – prawdziwy pokój stołowy, oraz kuchnię z mini-jadalnią do spożywania szybkich codziennych posiłków. Prawa strona domu to garaż z pomieszczeniem gospodarczym. Piętro w projekcie domu Willa Siedziba podzielone jest na dwie części - rozdzielone pustką nad salonem i antresolą będącą domową biblioteką a jednocześnie przedłużeniem salonu parteru. Z lewej strony mamy dwie sypialnie dziecięce z garderobami i łazienką, z prawej strony apartament rodziców z garderobą i pokojem kąpielowym, oraz jeszcze jedną sypialnię z łazienką. Dom Willa Siedziba mimo rozbudowanego planu i funkcji, oraz naprawdę reprezentacyjnej sylwetce, nie jest wcale taki wielki. Swoją powierzchnią trochę przewyższa normalny dom jednorodzinny, udowadniając tym samym, że nie trzeba budować tysiąc-metrowego kolosa żeby mieć wszystko - cały komplet.
Projekt domu Willa Siedziba jest zaprojektowany z energooszczędnych materiałów, ma dobre ocieplenia, nowoczesne instalacje. Będzie niedrogi w użytkowaniu. Jeśli chodzi o koszty budowy - tanio nie będzie, ale efekt końcowy naszym zdaniem wart jest grzechu. Jeśli chce się mieć coś pięknego, wyrastającego ponad przeciętność - to musi to ponadprzeciętnie kosztować. Ten dom nie pozostawi nikogo obojętnie.
Pracownia MGProjekt dysponuje także odbiciem lustrzanym budynku Willa Siedziba i inne wersje projektu domu: Willa Siedziba 2, Willa Siedziba 3.
Materiały:
- Fundamenty: betonowe ławy i ściany fundamentowe z bloczków betonowych
- Ściany zewnętrzne: ściany murowane - pustaki porotherm 25 + styropian
- Strop monolityczny: betonowy
- Elewacje: tynk cienkowarstwowy
- Pokrycie dachu: dachówka















