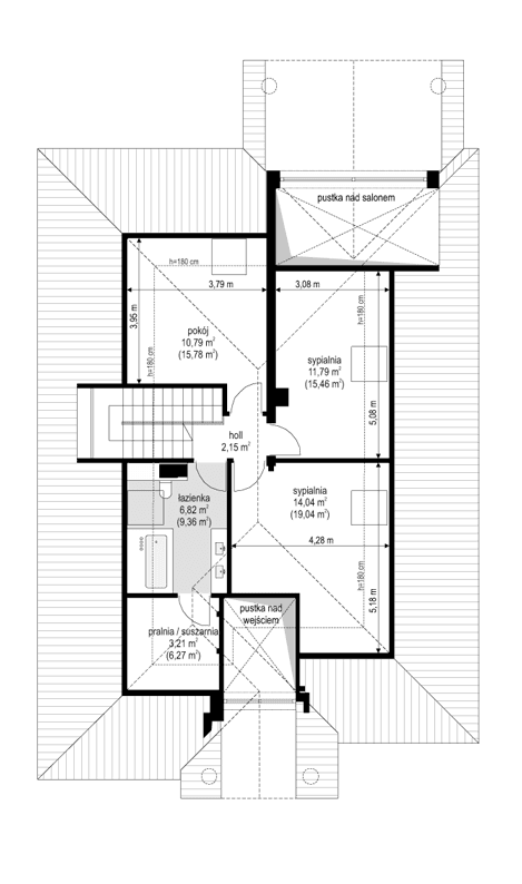
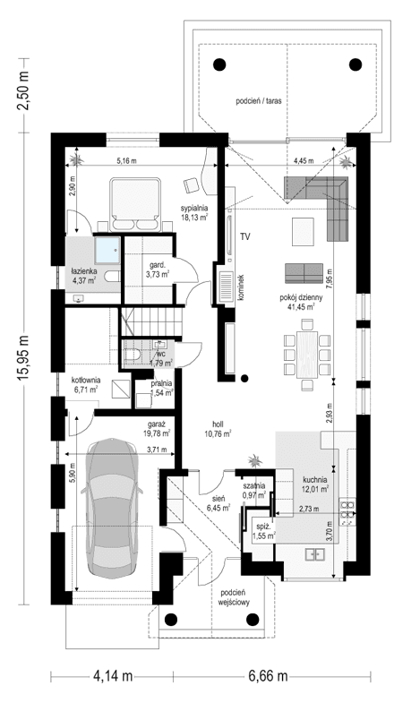
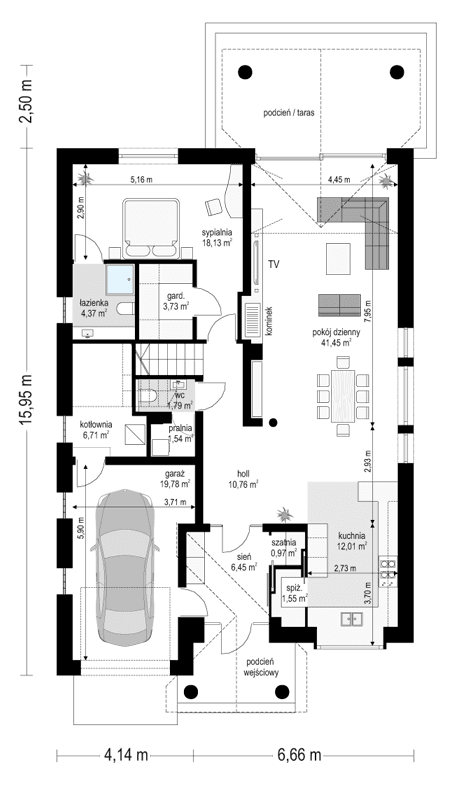
Projekt domu Dom na Parkowej 7B to kolejny projekt z cieszącej się popularnością serii projektów: Dom na Parkowej. Budynek zaprojektowano w podobnej stylistyce do innych „parkowych”, z zastosowaniem identycznych detali, ale jego bryła jest zasadniczo inna - przystosowana do budowy domu na wąskiej działce, mającej szerokość nawet poniżej 18 metrów. Projekt domu Dom na Parkowej 7B zakomponowano na planie prostokąta, którego krótszy bok przylega do frontu działki i drogi dojazdowej. Bryłę przykryto czterospadowych dachem o kącie nachylenia 35 stopni, skrywającym w sobie poddasze użytkowe z sypialniami dziecięcymi. Do domu wchodzimy reprezentacyjnym portykiem wejściowym, z łukowym sklepieniem i frontowymi drzwiami z naświetlami wprost do przedsionka i wnętrza budynku. Po obu stronach podcienia wejściowego pozostają: duże kuchenne okno, oraz wrota garażowe. Od strony elewacji tylnej - ogrodowej, mamy uroczy zadaszony taras z pięknym szerokim oknem salonu z łukowym naświetlem, łączącym wnętrze z tarasem i otaczającym dom ogrodem. Na parterze budynku przewidziano przestrzeń dzienną połączonego salonu, holu i kuchni, dalej część gospodarczą, z garażem, kotłownią i pralnią, oraz apartament rodziców z sypialnią, łazienką i garderobą. Na poddaszu mamy trzy pokoje, oraz łazienkę. Nad częścią salonu przewidziano otwarcie przestrzenne – pustkę, odkrywającą sufit, aby uzyskać więcej oddechu, urozmaicić salon i otworzyć się na piękne wysokie okno na taras. Dom na Parkowej 7B to elegancka, reprezentacyjna niewielka willa. Projekt domu Dom na Parkowej 7B zaprojektowany z klasą i smakiem, przewidziany na niedużą działkę i obliczony na rozsądny budżet. Budynek ma zwartą bryłę i prostą konstrukcję. Budowa domu nie powinna przysporzyć wielu kłopotów, a koszty eksploatacji, dzięki doskonałym izolacjom i nowoczesnym instalacjom będą niskie. Projekt domu Dom na Parkowej 7B to doskonała propozycja dla Inwestorów lubiących klasyczną architekturę podmiejskich willi i dworku polskiego, ale planujących zmieścić się w sensownym budżecie z samą budową. Zapraszamy do zapoznania się z pełną ofertą pracowni MG Projekt: projekt domu Dom na Parkowej, projekt domu Dom na Parkowej 2, projekt domu Dom na Parkowej 3, projekt domu Dom na Parkowej 4, projekt domu Dom na Parkowej 5, projekt domu Dom na Parkowej 6, projekt domu Dom na Parkowej 7 A.
Materiały:
- Fundamenty betonowe ławy i ściany fundamentowe z bloczków betonowych
- Ściany zewnętrzne ściany murowane - pustaki porotherm 25 + styropian
- Strop monolityczny betonowy
- Elewacje tynk cienkowarstwowy
- Pokrycie dachu dachówka




















