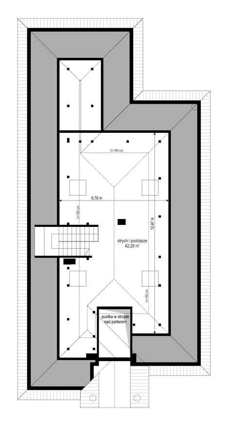
Projekt domu Dom na Parkowej 7A jest kolejną propozycją projektu z cieszącej się popularnością serii „Dom na Parkowej”. Budynek zaprojektowano za planie prostokąta, jako podłużną, dość wąską bryłę przykrytą czterospadowym dachem, z dobudowaną częścią z sypialnią rodziców, a od frontu z wystającym garażem. Projekt domu Dom na Parkowej 7A to idealna propozycja na wąską działkę o szerokości poniżej 19 metrów. Cała funkcja budynku mieści się na jednej kondygnacji, na parterze, dając mieszkańcom komfort i luksus życia na jednym poziomie - blisko ogrodu. Obszerny strych nad parterem można zaadaptować na dodatkowe poddasze użytkowe z pomieszczeniami, albo pozostawić go jako domowy magazyn. Architektura Domu Parkowego 7A nawiązuje do innych modeli z tej serii – stylizowanych na klasyczne podmiejskie wille, z dworkowo-rezydencyjnymi detalami. Do domu wchodzimy przez piękny przedsionek z łukowym sklepieniem, przez wejściowe drzwi z naświetlami, do przedsionka i wnętrza. Od strony ogrodowej mamy zaprojektowane ogrodowe patio przesłonięte ścianami w układzie litery „L”, z zadaszonym podcieniem nad tarasem. Wnętrze domu to jednoprzestrzenne wnętrze salonu, holu i kuchni, cześć gospodarczo –garażowa, oraz część nocna z sypialniami dzieci i rodziców oraz łazienką. Wnętrze ma przewidziane szafy i praktyczne schowki, każde z pomieszczeń jest ustawne i funkcjonalne. Zapasowa przestrzeń strychu może być dodatkowo zaadaptowana na powierzchnię użytkową i włączona do domu powiększając go znacznie. Dom ma dość prostą konstrukcję i nie powinien być trudny w realizacji. Z kolei bardzo dobre izolacje termiczne i zastosowane nowoczesne instalacje sprawią, że budynek będzie tani w późniejszym utrzymaniu i eksploatacji. Projekt domu Dom na Parkowej 7A to idealna propozycja dla Inwestorów lubiących klasyczną architekturę, posiadających wąską parcelę, planujących budowę domu parterowego i dysponujących niewygórowanym budżetem. Zapraszamy do zapoznania się z pełną ofertą pracowni MG Projekt: projekt domu Dom na Parkowej, projekt domu Dom na Parkowej 2, projekt domu Dom na Parkowej 3, projekt domu Dom na Parkowej 4, projekt domu Dom na Parkowej 5, projekt domu Dom na Parkowej 6, projekt domu Dom na Parkowej 7 B.
Materiały:
- Fundamenty betonowe ławy i ściany fundamentowe z bloczków betonowych
- Ściany zewnętrzne ściany murowane - pustaki porotherm 25 + styropian
- Strop monolityczny betonowy
- Elewacje tynk cienkowarstwowy
- Pokrycie dachu dachówka




















