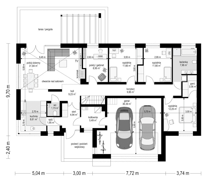
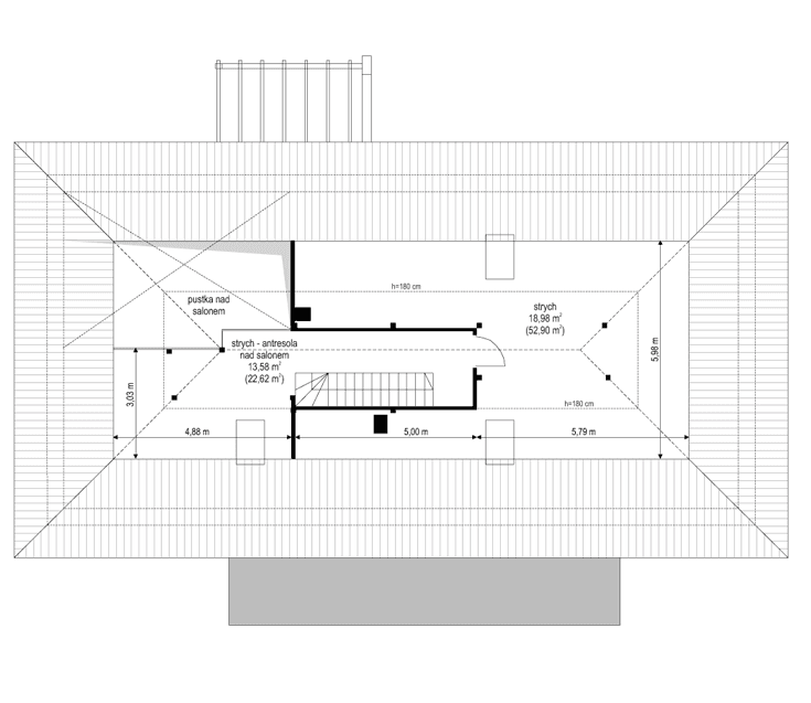
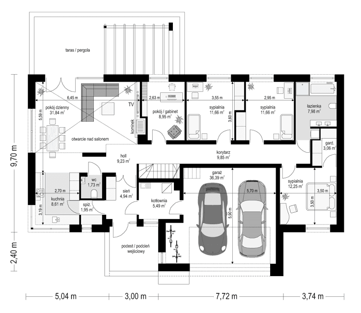
Projekt domu Wymarzony 6 to kolejny projekt z serii domów „Wymarzonych” z naszej pracowni. Dom parterowy, z poddaszem do zagospodarowania, zbudowany na planie prostokąta, z wystającą na froncie częścią garażową, przykryty czterospadowym dachem o kącie nachylenia 30 stopni. Projekt domu Wymarzony 6 ma nowoczesną stylistykę i łączy tradycyjną bryłę z klasycznym dachem, z nowoczesnymi materiałami wykończeniowymi i detalami. Połączenie białych tynkowanych ścian z okładzinami imitującymi beton, oraz szarą lub grafitową dachówką dają elegancki i reprezentacyjny wygląd budynku. Dom mimo niewielkiej powierzchni sprawia wrażenie bardzo komfortowego i większego niż jest w rzeczywistości. Głównymi detalami stylistycznymi projektu są: wystające garaż i podcień wejściowy,oraz reprezentacyjne drzwi frontowe z naświetlami. Od strony ogrodowej mamy duże przeszklenia otwierające salon na taras i ogród, oraz pergolę przykrywającą część tarasu. Wnętrze :inna niż przeważnie lokalizacja garażu, w centralnej części bryły, ułatwia komunikację między garażem, przedsionkiem i kotłownią, co jest rzadko spotykane w domach parterowych o prostokątnym kształcie. Garaż jest w świetnym miejscu - przy wejściu, blisko holu, kuchni i spiżarni. Z przedsionka wchodzimy do holu i na wprost do pokoju dziennego. Salon doświetlony jest z dwóch stron - od ogrodu szerokimi drzwiami tarasowymi, oraz od szczytu budynku. Atrakcją salonu jest pustka nad salonem z antresolą na poddaszu, powiększająca przestrzeń dzienną wizualnie. Z drugiej strony domu mamy cztery pokoje, łazienkę i garderobę. Nad parterem zaprojektowano poddasze, z antresolą nad salonem powiększającą jego przestrzeń, oraz dodatkową powierzchnię poddasza, która może pozostać strychem nieużytkowym (magazynem domowym), lub może być zagospodarowana na pokoje użytkowe - według życzenia i potrzeb właścicieli. Projekt domu Wymarzony 6 to komfortowa, wygodna willa dla cztero- sześcioosobowej rodziny - funkcjonalna i praktyczna. Budynek jest energooszczędny, ma prostą konstrukcję, będzie łatwy w budowie i tani w utrzymaniu. Zapraszamy do zapoznania się z pełną ofertą pracowni MG Projekt tej serii: Wymarzony, Wymarzony 2, Wymarzony 3, Wymarzony 4, Wymarzony 5, Wymarzony 7, Wymarzony 8, Wymarzony 9, Wymarzony 10, Wymarzony 11.
Materiały:
- Fundamenty betonowe ławy i ściany fundamentowe z bloczków betonowych
- Ściany zewnętrzne ściany murowane - bloczki gazobetonowe gr. 24 cm + styropian + tynk cienkowarstwowy
- Strop monolityczny betonowy
- Elewacje tynk cienkowarstwowy
- Pokrycie dachu dachówka




















