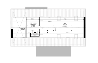
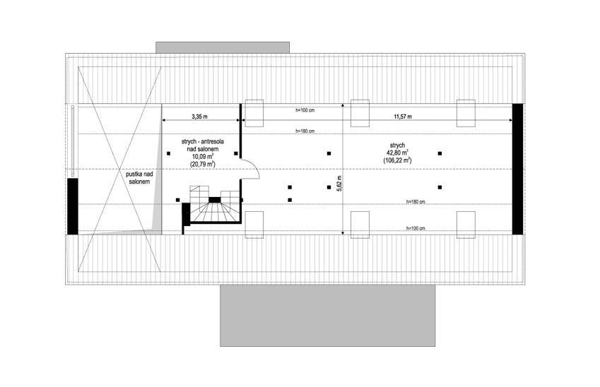
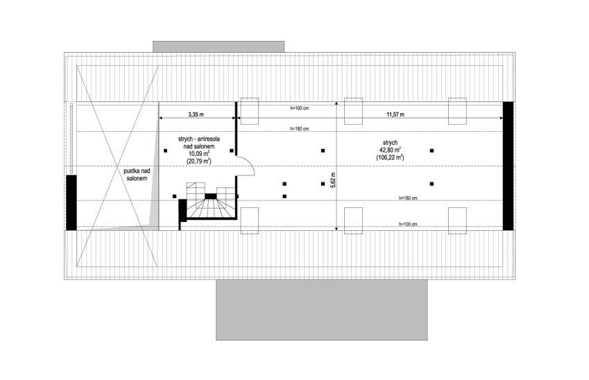
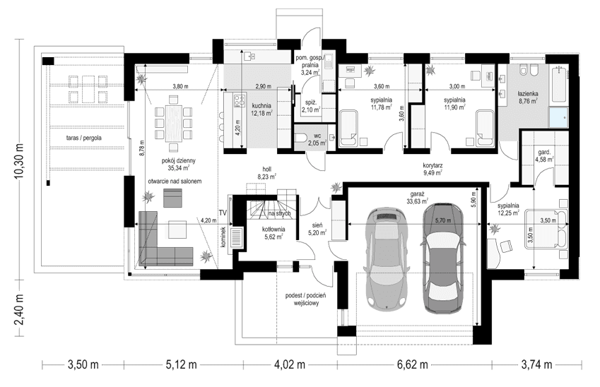
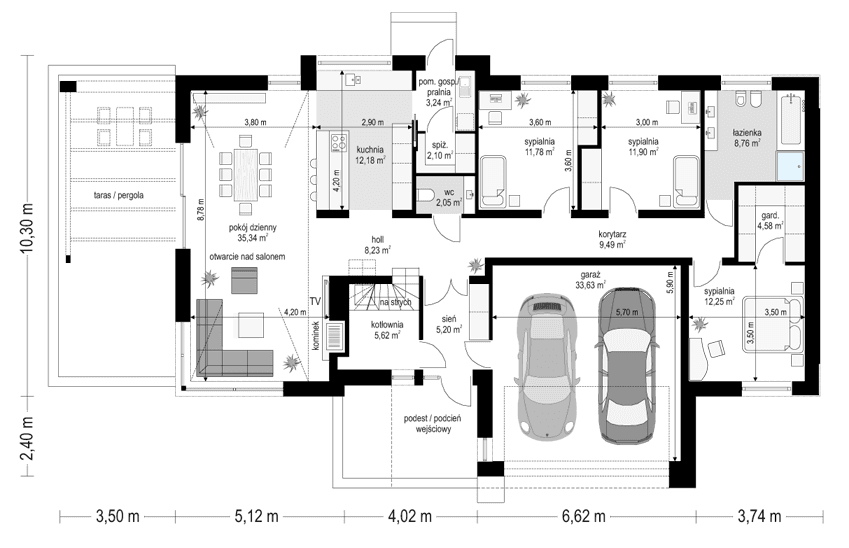
Projekt domu Wymarzony 4 jest kolejną propozycją z serii domów „Wymarzonych”- budynek parterowy z poddaszem do zagospodarowania, zbudowany na planie prostokąta, z wystającą na froncie częścią garażową, przykryty dwuspadowym dachem o kącie nachylenia 35 stopni. Projekt domu Wymarzony 4 jest utrzymany w nowoczesnej stylistyce domu-stodoły, coraz częściej wybieranej przez Inwestorów. Dach budynku nie ma okapów, pokrycie dachowe zaprojektowano z blachy na rąbek stojący, a ściany zewnętrzne wykończono pionową okładziną z drewnianej kantówki. Takie zestawienie materiałów, połączone z powierzchniami z płyt imitujących beton, oraz szarą stolarką okienną tworzy bardzo atrakcyjny wygląd budynku. Głównymi detalami stylistycznymi są: wystający garaż, podcień wejściowy i reprezentacyjne drzwi frontowe z naświetlami. W szczycie domu z kolei dwukondygnacyjne okno salonu i taras częściowo przykryty pergolą. Dzięki lokalizacji tarasu z boku budynku dom nadaje się doskonale nawet na działkę z wjazdem od południa. Salon w „Wymarzonym 4” jest oświetlony z trzech stron, zatem budynek można lokalizować na działce z ogródkiem z boku albo z tyłu, a nawet od frontu domu, w narożniku działki. Wnętrze: oryginalna lokalizacja garażu, w centralnej części bryły, ułatwia komunikację między garażem, przedsionkiem i kotłownią, co jest rzadko spotykane w domach parterowych o prostokątnym kształcie. Garaż jest w idealnym miejscu - przy wejściu, blisko holu i kuchni. Kotłownia obok salonu i kominka sprawia, że mamy jeden wspólny komin w całym budynku. Z przedsionka wchodzimy do holu i części dziennej połączonych pomieszczeń salonu jadalni i kuchni. Kuchnia jest oddzielona od jadalni półwyspem z barkiem. Z kuchni mamy dostęp do spiżarni, pralni i wyjścia gospodarczego na tył domu. Salon doświetlony jest z każdej strony, a otwarcie sufitu nad salonem powiększa jego wysokość tworząc atrakcyjną przestrzeń z antresolą na poddaszu. Z drugiej strony domu mamy trzy sypialnie, łazienkę i garderobę. Nad parterem zaprojektowano poddasze, z antresolą nad salonem powiększającą jego przestrzeń i z dodatkową powierzchnią poddasza, która może pozostać strychem nieużytkowym (magazynem domowym), lub może być zagospodarowana na pokoje użytkowe - według życzenia i potrzeb właścicieli. Projekt domu Wymarzony 4 to komfortowa, wygodna i nowoczesna willa dla cztero- sześcioosobowej rodziny - funkcjonalna i praktyczna. Budynek jest energooszczędny, ma prostą konstrukcję, będzie łatwy w budowie i tani w utrzymaniu. Zapraszamy do zapoznania się z pełną ofertą pracowni MG Projekt tej serii: Wymarzony, Wymarzony 2, Wymarzony 3, Wymarzony 5, Wymarzony 6, Wymarzony 7, Wymarzony 8, Wymarzony 9, Wymarzony 10, Wymarzony 11.
Materiały:
- Fundamenty betonowe ławy i ściany fundamentowe z bloczków betonowych
- Ściany zewnętrzne ściany murowane - bloczki gazobetonowe gr. 24 cm + styropian + tynk cienkowarstwowy
- Strop monolityczny betonowy
- Elewacje szalówka drewniana
- Pokrycie dachu blacha na rąbek




















