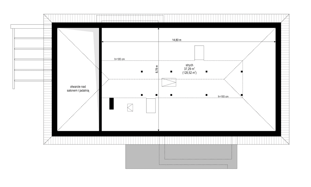
Projekt domu Wymarzony 2 to kolejny projekt z serii naszych domków „Wymarzonych”, parterowy budynek, zbudowany na planie prostokąta, przykryty czterospadowym dachem o kącie nachylenia 30 stopni. Projekt domu Wymarzony 2 łączy prostota konstrukcji i bryły, z ciekawymi detalami i rozwiązaniami architektonicznymi, tworzącymi nietuzinkowy i oryginalny efekt. Nowoczesną stylistykę projektu, uzyskano przez odpowiedni dobór materiałów, okładzin, zastosowanie dużych przeszkleń, otwierających wnętrze na otaczający ogród. Głównymi elementami nadającymi charakter bryle są : wystający przed ścianę frontową garaż z zadaszeniem nad podcieniem wejściowym, pięknie zaakcentowane drzwi wejściowe z naświetlami, oraz część tarasowa przedłużająca salon, która dzięki lokalizacji z boku budynku sprawia, że dom nadaje się doskonale na różne działki - także te z wjazdem od południa. Salon w „Wymarzonym 2” jest oświetlony z trzech stron, zatem budynek można lokalizować na działce z ogródkiem z boku albo z tyłu, a nawet od frontu domu, w narożniku działki. Wnętrze : Oryginalna lokalizacja garażu, w centralnej części bryły, daje łatwy dostęp między garażem, przedsionkiem i kotłownią, co jest rzadko spotykane w domach parterowych o prostokątnym kształcie (przeważnie garaż jest odcięty od bryły, lub znajduje się za sypialniami). Tutaj garaż jest w idealnym miejscu - przy wejściu, blisko holu i kuchni. Kotłownia obok salonu i kominka sprawia, że mamy jeden wspólny komin w całym budynku. Z przedsionka wchodzimy do holu i części dziennej połączonych pomieszczeń salonu jadalni i kuchni. Kuchnia jest oddzielona od jadalni półwyspem z barkiem. Z kuchnia mamy dostęp do spiżarni, pralni i wyjścia gospodarczego na tył domu. Salon doświetlony jest z każdej strony, a przez piękne przesuwne drzwi w elewacji bocznej wychodzimy na taras częściowo przykryty pergolą. Z drugiej strony domu mamy trzy sypialnie, łazienkę i garderobę. Nad parterem zaprojektowano strop i krokwiową więźbę dachową, dzięki czemu do dyspozycji jest dodatkowy duży strych - magazyn, do dowolnej aranżacji. Na strych dostajemy się schodkami drabinkowymi z holu. Konstrukcję dachu można przeprojektować też na wiązary kratownicowe i wyłączyć tą przestrzeń z jakiegokolwiek użytkowania. Projekt domu Wymarzony 2 to komfortowa, wygodna mini-willa dla czteroosobowej rodziny - funkcjonalna, praktyczna, bez biegania po schodach. Budynek jest energooszczędny, ma prostą konstrukcję, będzie łatwy w budowie i tani w utrzymaniu. Zapraszamy do zapoznania się z pełną ofertą pracowni MG Projekt tej serii: Wymarzony, Wymarzony 3, Wymarzony 4, Wymarzony 5, Wymarzony 6, Wymarzony 7, Wymarzony 8, Wymarzony 9, Wymarzony 10, Wymarzony 11.
Materiały:
- Fundamenty betonowe ławy i ściany fundamentowe z bloczków betonowych
- Ściany zewnętrzne ściany murowane - bloczki gazobetonowe gr. 24 cm + styropian + tynk cienkowarstwowy
- Strop monolityczny betonowy
- Elewacje tynk cienkowarstwowy
- Pokrycie dachu blacha na rąbek




















