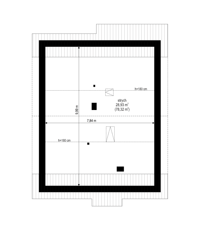
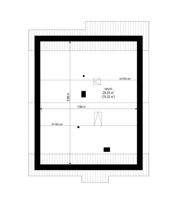
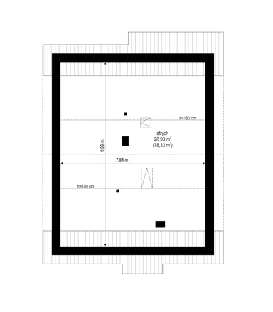
Projekt domu Zosia 4 jest kolejną wersją wariantową popularnego projektu domu jednorodzinnego z serii ”Zosia”. Domek ma prostą budowę, prostą bryłę. Dzięki oszczędnej formie i swojej prostocie jest łatwy w budowie, a przez to niedrogi. Jednocześnie dom jest wygodny dzięki funkcjonalnie rozplanowanemu wnętrzu. Projekt domu Zosia 4 jest węższy od podstawowego projektu, przez co zmieści się na węższej parceli. Ma też trochę głębszą bryłę, dzięki czemu wnętrze domu to nadal pierwotne cztery pokoje. Dom przykryty jest dwuspadowym dachem o kącie 30 stopni. Nad parterem przewidziano strop drewniany belkowy, oraz klasyczną więźbę dachową krokwiową. Dzięki temu nad parterem mamy jeszcze sporą przestrzeń magazynową strychu do wykorzystania. Oczywiście wariantowo można wykonać konstrukcję dachu z wiązarów kratownicowych. Do domu wchodzimy przez przedsionek z dużą szafą, wprost do holu i salonu. Z boku przedsionka znajduje się kotłownia - w projekcie bazowym z kotłem gazowym, ale można ją łatwo zaadaptować na kotłownię na paliwo stałe. Obok kotłowni mamy łazienkę, po drugiej stronie dwie sypialnie dziecięce z szafami wbudowanymi i wc. Od strony ogrodu mieści się sypialnia rodziców, oraz oczywiście część dzienna - salon z wypoczynkiem i stołem jadalnym, oraz aneks kuchenny. Na środku salonu mamy ścianę telewizyjno – kominkową. Dom - biorąc pod uwagę niewielką powierzchnię użytkową - jest bardzo funkcjonalny i ma rozbudowany program pomieszczeń. Nie ma tutaj zmarnowanej przestrzeni - wszystko jest zagospodarowane logicznie i praktycznie. Domek z zewnątrz ma bardzo sympatyczną stylistykę. Architektura domu jest bezpretensjonalna i przyjemna dla oka. Budynek będzie się świetnie komponował z otoczeniem zarówno na przedmieściach, jak i na wsi. Dom Zosia 4 jest oczywiście domem całorocznym, ale może też być drugim domem wakacyjnym. Zdecydowaną zaletą domków z serii Zosia jest ich prostota i funkcjonalność, przekładające się na maksymalny efekt inwestycji uzyskany za nieduże pieniądze. Każdą kolejną wersję domu z tej serii staramy się projektować jeszcze lepiej i sensowniej. Dom jest zaprojektowany jako energooszczędny, bardzo dobrze ocieplony. Będzie dzięki temu tani w późniejszej eksploatacji. Zapraszamy do zapoznania się z pełną ofertą pracowni MG Projekt tej serii: projekt domu Zosia, projekt domu Zosia 2, projekt domu Zosia 3, projekt domu Zosia 5, projekt domu Zosia 6, projekt domu Zosia 7, projekt domu Zosia 7B, projekt domu Zosia 8. Zapraszamy!
Materiały:
- Fundamenty betonowe ławy i ściany fundamentowe z bloczków betonowych
- Ściany zewnętrzne ściany murowane – bloczki gazobeton 24 cm + styropian
- Strop drewniany belkowy
- Elewacje tynk cienkowarstwowy
- Pokrycie dachu dachówka




















