🏡 Willa Parterowa 2 – luksus, funkcjonalność i elegancja na jednym poziomie
Projekt domu Willa Parterowa 2 to nowoczesna i komfortowa propozycja dla inwestorów poszukujących parterowego domu o powierzchni użytkowej do 140 m² z przestronnym, dwustanowiskowym garażem. To idealny dom dla rodziny 4–5-osobowej, która pragnie wygody życia na jednej kondygnacji, harmonijnego kontaktu z ogrodem oraz ponadczasowej architektury o wysokim standardzie.
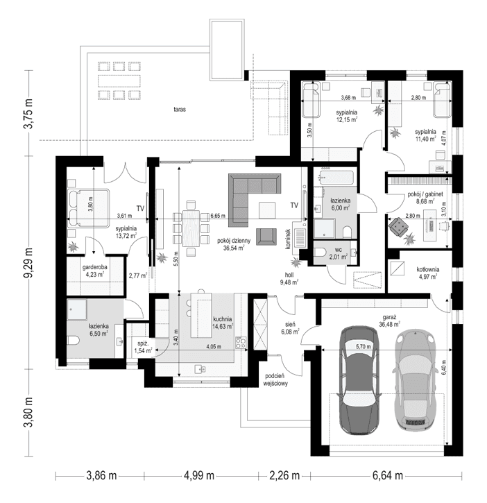
Bryła budynku została zaprojektowana na planie litery T, co pozwoliło na czytelny podział funkcji wewnętrznych, zwiększenie prywatności i maksymalne wykorzystanie przestrzeni.
🌿 Nowoczesna architektura w eleganckiej, wyważonej formie
Willa Parterowa 2 projekt to przykład architektury nowoczesnej, ale jednocześnie powściągliwej i ponadczasowej. Czterospadowy dach z dobudówkami nad sypialniami oraz garażem, duże przeszklenia, poziomy podział elewacji, akcenty drewniane i kontrastujący tynk tworzą kompozycję, która wygląda atrakcyjnie z każdej strony.
Dom doskonale prezentuje się zarówno w gęstej zabudowie osiedlowej, jak i na dużych, prywatnych parcelach poza miastem. Minimalne wymagane wymiary działki to 25 × 25 m, co daje dużą swobodę aranżacji ogrodu i tarasów.
🏠 Wygodne i przemyślane wnętrze – idealne dla rodziny
Układ funkcjonalny domu Willa Parterowa 2 został starannie zaplanowany, aby zapewnić komfort wszystkich mieszkańców oraz pełną czytelność podziału na strefy.
Strefa dzienna – serce domu
Wchodząc do środka, trafiamy do reprezentacyjnego przedsionka, a następnie do przestronnej części dziennej, która obejmuje:
- salon z miejscem na duży zestaw wypoczynkowy i ścianę kominkowo-telewizyjną,
- jadalnię z dużym stołem,
- kuchnię z wyspą oraz wygodną spiżarnią.
Strefa dzienna jest doskonale doświetlona dzięki panoramicznym przeszkleniom prowadzącym na taras oraz dużemu oknu od strony frontowej. To przestrzeń, która sprzyja integracji domowników i odpoczynkowi.
Apartament rodziców – komfort i prywatność
Po jednej stronie domu znajduje się prywatna część rodziców, w skład której wchodzą:
- duża sypialnia z wyjściem na taras,
- garderoba,
- prywatna łazienka.
To idealne miejsce do odpoczynku, zapewniające ciszę i wygodę.
Strefa dziecięca – trzy pokoje i łazienka
Z drugiej strony domu zaprojektowano trzy mniejsze pokoje dziecięce oraz dodatkową łazienkę. Takie rozmieszczenie sprawia, że każdy członek rodziny ma swoją własną przestrzeń, a jednocześnie dom pozostaje kompaktowy i funkcjonalny.
Część gospodarcza – maksymalna wygoda
Bezpośrednio z przedsionka przechodzimy do:
- dwustanowiskowego garażu,
- kotłowni,
- pomieszczeń technicznych.
To rozwiązanie, które ułatwia codzienne użytkowanie domu i pozwala zachować porządek.
🏗️ Solidna konstrukcja i energooszczędne rozwiązania
Projekt Willa Parterowa 2 jest wykonany w technologii murowanej z zastosowaniem wysokiej jakości materiałów:
- fundamenty: ławy i ściany z bloczków betonowych,
- ściany zewnętrzne: pustaki Porotherm 25 + styropian,
- strop: betonowy monolityczny lub alternatywnie więźba + wiązary kratownicowe,
- dach: dachówka,
- elewacje: tynk cienkowarstwowy z elementami drewnianymi.
Dom jest energooszczędny, wyposażony w wentylację mechaniczną z rekuperacją, a jego prosta konstrukcja pozwala ograniczyć koszty budowy oraz późniejszej eksploatacji.
Nad parterem znajduje się strych nieużytkowy, który w razie potrzeby można zaadaptować na dodatkową powierzchnię.
🌞 Tarasy – prywatna strefa wypoczynku
Tarasy rozmieszczone przy salonie i sypialni rodziców tworzą naturalne przedłużenie części dziennej i nocnej. To idealne miejsca do relaksu, jedzenia posiłków na świeżym powietrzu czy spotkań w większym gronie.
💛 Willa Parterowa 2 – nowoczesna willa dla wymagających
Projekt domu Willa Parterowa 2 to ponadczasowa propozycja dla inwestorów ceniących komfort, wysoką estetykę i wygodę życia na jednym poziomie. Funkcjonalność, elegancki wygląd, możliwość adaptacji strychu oraz obecność garażu dwustanowiskowego sprawiają, że jest to projekt idealny dla współczesnych rodzin.




















