Projekt domu Oszust to projekt domu jednorodzinnego dla 4- 5-cioosobowej rodziny. Gotowy projekt domu Oszust jest propozycją dla Klientów pragnących wybudować budynek piętrowy, ale posiadających działkę, na której przepisy zakazują budowy domu z piętrem. Wiele planów miejscowych w naszym kraju zakłada takie parametry: dom z poddaszem użytkowym, dach o kącie nachylenia 35 stopni, oraz maksymalna wysokość domu wynosząca 8,5 metra. Postaraliśmy się więc wpasować w tak niekorzystne założenia dom Oszust, który mimo wszystko będzie praktycznie "piętrówką". Stąd oryginalna nazwa projektu - Oszust, ponieważ przechytrzamy projektem domku Oszust nieprzychylne zapisy urbanistyczne.
Projekt domu Oszust architektura
Architektonicznie projekt domu Oszust wygląda jak nowoczesny piętrowy dom. Dzięki różnicy w wysokości dachu na piętrze mieszczą się normalne duże okna doświetlające pokoje górnej kondygnacji. Zwarta bryła projektu domu Oszust przykryta jest czterospadowym dachem podzielonym wizualnie poziomymi pasami wykończonymi kontrastującymi materiałami. W projekcie domku Oszust część garażowa budynku dobudowana jest jako parterowa zakończona płaskim dachem, lub tarasem.
Wnętrze w projekcie domu Oszust
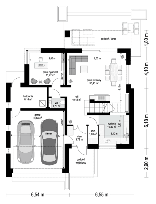
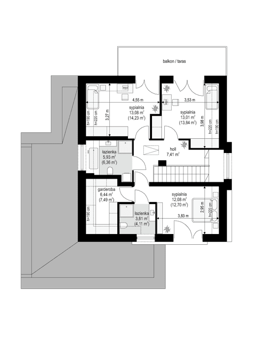
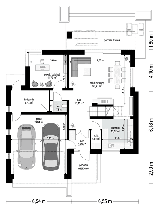
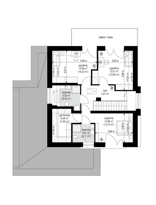
Wnętrze domu Oszust na parterze mamy dużą jednoprzestrzenną część dzienną z wyeksponowaną na środku salonu ścianą kominkowo – telewizyjną, ze schodami na piętro w tle, wygodną kuchnię ze spiżarnią, dodatkowy pokój – gabinet i wc. Z sieni przechodzimy do podwójnego garażu i obszernego pomieszczenia gospodarczego. Duże przeszklenia salonu otwierają wnętrze domu Oszust na zadaszony taras i otaczający ogród. Na górze mamy oddzielny apartament rodziców z własną łazienką i garderobą, oraz dwie sypialnie dziecięce z ogólną łazienką. Na poddaszu prawie na całej powierzchni uzyskano wysokość stania, zatem nie ma skosów utrudniających poruszanie się. Projekt domu Oszust mimo w sumie niewielkiej powierzchni mieści w sobie cały potrzebny program funkcjonalny do wygodnego życia kilkuosobowej rodziny. Dom Oszust zaprojektowano z nowoczesnych energooszczędnych materiałów. Dzięki temu jednorodzinny projekt domku Oszust będzie tani w utrzymaniu, a jednocześnie niedrogi i dość łatwy w budowie. Autorska pracownia architektoniczna MGProjekt dysponuje też odbiciem lustrzanym projektu. Zapraszamy do zapoznania się z pełną ofertą pracowni MG Projekt: https://www.mgprojekt.com.pl/oszust, https://www.mgprojekt.com.pl/oszust-wariant-b, https://www.mgprojekt.com.pl/oszust-2.
Materiały:
- Fundamenty betonowe ławy i ściany fundamentowe z bloczków betonowych
- Ściany zewnętrzne ściany murowane - pustaki porotherm 25 + styropian
- Strop monolityczny betonowy
- Elewacje tynk cienkowarstwowy
- Pokrycie dachu dachówka




















