Projekt domu Willa Diamentowa, którego idea zrodziła się w głowie jednego z naszych Klientów takich jak Państwo. Klient zadzwonił do nas pewnego dnia i powiedział: "macie ładne parterowe domy z serii Willa Parkowa, czy Dom na Parkowej, ale ja chciałbym dom piętrowy, nie za duży, najlepiej podobny do projektu Szmaragd, ale o klasycznej architekturze i wyglądzie jak Willa Parkowa". Postanowiliśmy spełnić życzenie i w ten sposób powstał nowy gotowy projekt domu Willa Diamentowa, będąca połączeniem stylu architektonicznego naszych klasycznych parterowych willi i rezydencji, z funkcją i bryłą niedużego piętrowego domu, nadającego się na mniejszą, miejską działkę. Mamy nadzieję, że projekt domu Willa Diamentowa przypadnie Państwu do gustu.
Architektura projektu Willa Diamentowa
Wygląd zewnętrzny projektu domu Willa Diamentowa to elegancka willa z ozdobnymi detalami. Wnętrze Willi Diamentowej natomiast to funkcjonalna piętrowa kostka, wykorzystująca każdy metr kwadratowy powierzchni budynku. Do domu Willa Diamentowa wchodzimy przez piękne ozdobne drzwi z bocznymi naświetlami do przedsionka, a stamtąd do holu i przestrzeni dziennej. Monumentalnie łukowe okno na piętrze budynku podkreśla reprezentacyjny charakter frontu domu. Całość projektu Willa Diamentowa uzupełniają okno kuchenne i z sypialni rodziców (z balkonikiem).
Projekt domu Willa Diamentowa wnętrze
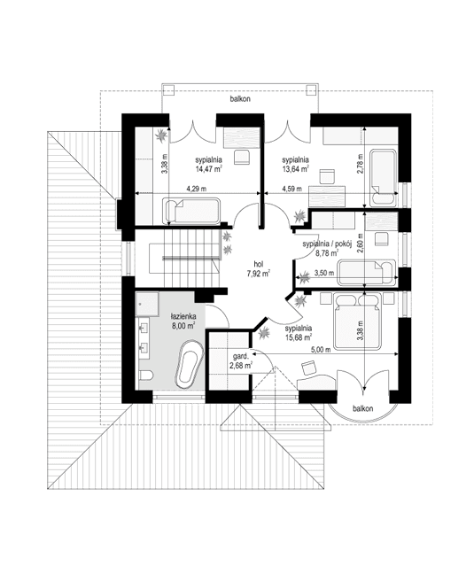
W projekcie domu Willa Diamentowa, we wnętrzu na parterze mamy pokój dzienny, kuchnię i jadalnię, połączone ze sobą. Salon w Willi Diamentowej otwarty jest szerokimi przeszkleniami na taras i ogród. Z jadalni projektu Willa Diamentowa przesuwnymi drzwiami wychodzimy do podcienia i na taras. Wygodne dwubiegowe schody stanowią dodatkową ozdobę wnętrza budynku. Na parterze domu mamy jeszcze duży dwustanowiskowy garaż i dużą kotłownię z wyjściem technicznym. Na piętrze zaprojektowano trzy sypialnie: sypialnię rodziców z garderobą, oraz sypialnie dziecięce z szafami wbudowanymi, oraz dodatkowy pokój (gabinet) i łazienkę. Dom Willa Diamentowa, mimo niewielkiej powierzchni i zwartej bryle jest bardzo funkcjonalny. Zawiera cztery pokoje na piętrze, co przy tej powierzchni jest rzadkością, nie wspominając o podwójnym garażu. Budynek Willa Diamentowa zmieści się na wąskiej działce.
Projekt domu Willa Diamentowa wbrew pozorom - jest prosty w budowie, ponieważ ma nieskomplikowaną bryłę, a sam koszt budowy domu również nie należy do wysokich. Koszt budowy projektu Willa Diamentowa to 211890 zł za stan surowy zamknięty.
Budynek Willa Diamentowa zaprojektowano z energooszczędnych materiałów, dzięki czemu będzie niedrogi w późniejszej eksploatacji. Projekt domu Willa Diamentowa to doskonała propozycja dla Inwestorów potrzebujących domu piętrowego, ale marzących o pięknej klasycznej architekturze, nie chcących powielać oklepanych wzorów "nowoczesnej piętrówki". Projekt domu Willa Diamentowa to dom dla wszystkich, którym się marzy mini klasyczna rezydencja. Istnieje możliwość zamówienia projektu domu Willa Diamentowa w wersji odbicia lustrzanego. Zapraszamy do zapoznania się z pełną ofertą pracowni MG Projekt: https://www.mgprojekt.com.pl/willa-diamentowa, https://www.mgprojekt.com.pl/willa-diamentowa-wariant-b, https://www.mgprojekt.com.pl/willa-diamentowa-wariant-c, https://www.mgprojekt.com.pl/willa-diamentowa-wariant-b.
Materiały:
- Fundamenty betonowe ławy i ściany fundamentowe z bloczków betonowych
- Ściany zewnętrzne ściany murowane – pustaki porotherm 25 + styropian
- Strop Teriva
- Elewacje tynk cienkowarstwowy
- Pokrycie dachu dachówka




















