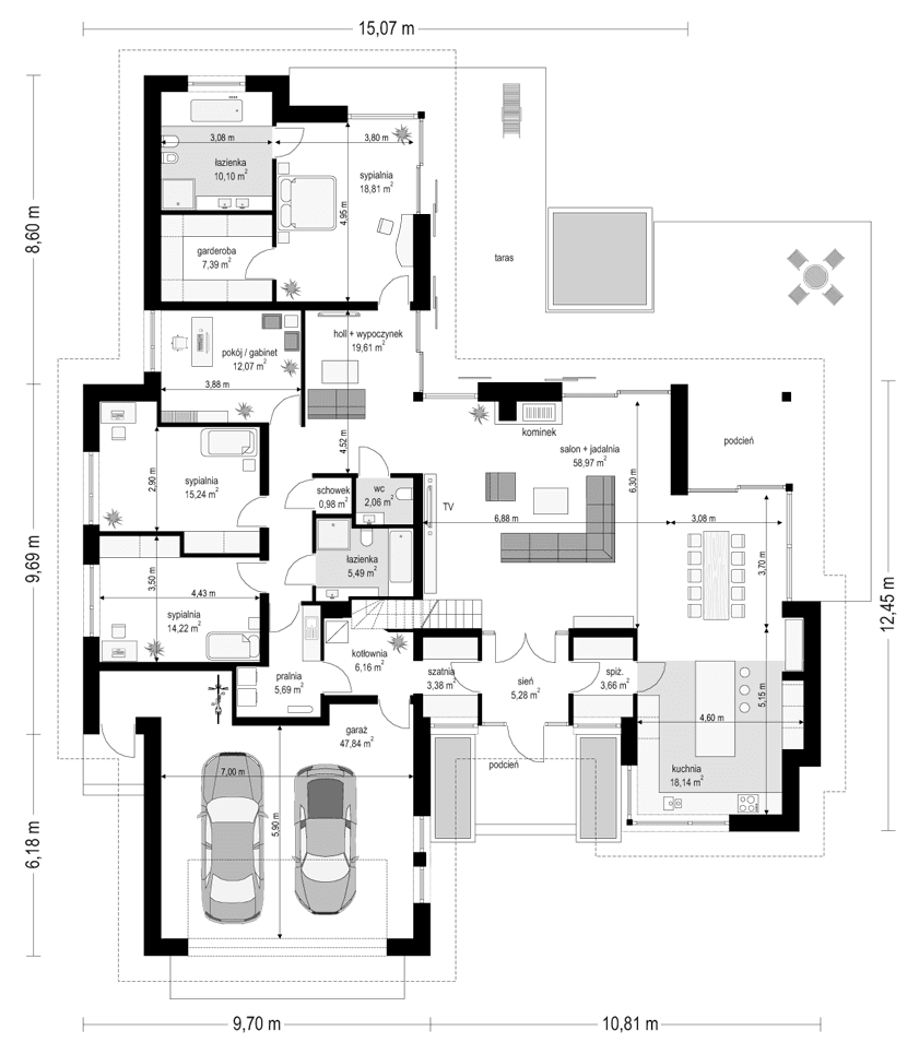
Projekt domu Wyjątkowy to komfortowy parterowy dom jednorodzinny z serii projektów domów „Wyjątkowy”. Dom to luksusowa podmiejska willa, zaprojektowana całkowicie na jednej kondygnacji, co daje mieszkańcom wygodę mieszkania na parterze bez biegania po schodach i nieocenioną bliskość z otaczającym ogrodem. Dom zaprojektowano na planie litery „T”, z wystającym przed front budynku garażem, oraz wchodzącą do ogrodu częścią z sypialniami. Budynek przykryty jest wielospadowym łagodnym dachem kryjącym strych, który można zagospodarować jako dodatkowe poddasze użytkowe. Nowoczesna architektura budynku, z dużymi przeszkleniami, narożnymi oknami, suwanymi żaluzjami, łączy tradycyjną formę domu z nowoczesnym detalem architektonicznym. W efekcie mamy rozłożysty luksusowy bungalow. Do domu wchodzimy szerokim, reprezentacyjnym wejściem z bocznymi naświetlami, przez frontowe patio, z pięknymi klombami z zielenią po bokach podestu wejściowego. Z obszernego przedsionka przechodzimy na wprost do przestrzeni dziennej, do wielkiego salonu, z którego, przez duże przeszklenia, rozpościera się widok na taras i ogród. Z przedsionka możemy również przejść na boki do: szatni i dalej pomieszczeń gospodarczych i garażu, oraz przez spiżarnię do kuchni. Przestrzeń dzienna to salon, jadalnia, oraz piękna kuchnia z wyspą. Z salonu i jadalni wychodzimy na otaczające dom tarasy. W części nocnej mamy: apartament rodziców, z łazienką, garderobą i pięknymi oknami na taras, dodatkowy pokój - gabinet, dwie sypialnie dziecięce z łazienką, dodatkowe wc dla gości, oraz mini-salonik - bawialnia, lub kącik telewizyjny. Z części nocnej mamy też dostępną pralnię, w pobliżu sypialni. Projekt domu Wyjątkowy ma bardzo funkcjonalnie zaprojektowane wnętrze, ułatwiające codzienne życie. Otwarte przestrzenie, oraz przeszklenia łączące wnętrze z ogrodem dadzą nieocenione poczucie luksusu i wysokiej jakości życia. A to wszystko osiągnięto na w sumie niewielkiej powierzchni i w dość prostym w budowie budynku. Projekt domu Wyjątkowy jest doskonałym przykładem tego, że bardzo dobry efekt można czasem osiągnąć z rozsądny i nie koszmarnie drogi sposób. Dom jest oczywiście energooszczędny, zaprojektowany z nowoczesnych materiałów. Zapraszamy do zapoznania się z innymi projektami pracowni MG Projekt tej serii: Wyjątkowy 2, Wyjątkowy 3.
Materiały:
- Fundamenty betonowe ławy i ściany fundamentowe z bloczków betonowych
- Ściany zewnętrzne ściany murowane – pustaki porotherm 25 + styropian + płytki klinkierowe
- Strop żelbetowy monolityczny nad parterem
- Elewacje tynk cienkowarstwowy na styropianie+ płytki klinkierowe
- Pokrycie dachu dachówka ceramiczna




















