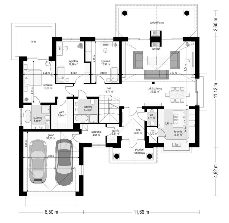
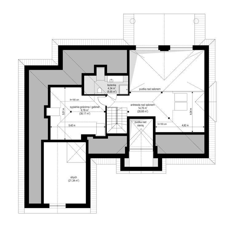
Projekt domu Willa parkowa B jest kolejną wersją projektu z serii „rezydencja parkowa – willa parkowa”. Budynek o bardziej zwartej bryle, węższy o niemal dwa metry od wersji bazowej, przeznaczony na mniejszą działkę. Dom jest komfortową parterową willą, nawiązującą architektonicznie do amerykańskich podmiejskich rezydencji i do naszych polskich dworków. Zastosowane w nim detale to połączenie nowoczesnych materiałów i rozwiązań, oraz klasycznej formy. Taki dom nigdy się nie zestarzeje, a jego styl będzie zawsze modny. Budynek został zaprojektowany jako parterowy, czyli bardzo wygodny w użytkowaniu. W projekcie domu Willa parkowa B szystkie pomieszczenia znajdują się na jednym poziomie. Na poddaszu mamy dodatkową przestrzeń do dowolnego wykorzystania poza podstawowym programem użytkowym. Wszystkie pokoje - zarówno salon jak i sypialnie mają bezpośredni kontakt z otaczającym ogrodem. Front budynku zaakcentowano reprezentacyjnym podcieniem wejściowym, z dużymi przeszklonymi drzwiami z naświetlami prowadzącymi do obszernego przedsionka. Wystający przed elewację frontową garaż pozwala na cofnięcie ściany frontowej od ogrodzenia, co tworzy właściwy dystans domu od drogi. W elewacji ogrodowej zaprojektowano duży zadaszony taras - miejsce rodzinnych biesiad i relaksu. Dom ma duże przeszklenia z ładnymi podziałami. Całość przykryta jest proporcjonalnym dachem. Wnętrze domu podzielono na część dzienną i nocną. W projekcie domu Willa parkowa B duży salon z pustką łączy się z jadalnią, holem, kuchnią w komfortowe wspólne wnętrze. W części nocnej zmieszczono trzy sypialnie (w tym sypialnia rodziców z garderobą) i dwie łazienki. Z sieni wejściowej przechodzimy z kolei przez szatnię do kotłowni –pralni, oraz do garażu dwustanowiskowego. Nad parterem mamy duży strych – poddasze. Może ono być użytkowe - z pokojami i łazienką, albo może pozostać po prostu strychem. Willa parkowa B to bardzo zgrabny stylowy dom jednorodzinny, dający komfort i prestiż jego przyszłym mieszkańcom. W budynku zastosowano dobre izolacje, oraz nowoczesne energooszczędne materiały. Wbrew pozorom nie będzie on bardzo drogi w budowie, ani w późniejszym utrzymaniu. Zapraszamy do obejrzenia wszystkich projektów domów z serii Willa Parkowa: https://www.mgprojekt.com.pl/willa-parkowa, https://www.mgprojekt.com.pl/willa-parkowa-2, https://www.mgprojekt.com.pl/willa-parkowa-3, https://www.mgprojekt.com.pl/willa-parkowa-4, https://www.mgprojekt.com.pl/willa-parkowa-5, https://www.mgprojekt.com.pl/willa-parkowa-6, https://www.mgprojekt.com.pl/willa-parkowa-6-d, https://www.mgprojekt.com.pl/willa-parkowa-7, https://www.mgprojekt.com.pl/willa-parkowa-8-a, https://www.mgprojekt.com.pl/willa-parkowa-8-b, https://www.mgprojekt.com.pl/willa-parkowa-9, https://www.mgprojekt.com.pl/willa-parkowa-10, https://www.mgprojekt.com.pl/willa-parkowa-b, https://www.mgprojekt.com.pl/willa-parkowa-c, https://www.mgprojekt.com.pl/willa-parkowa-d.
Materiały:
- Fundamenty betonowe ławy i ściany fundamentowe z bloczków betonowych
- Ściany zewnętrzne ściany murowane - pustaki porotherm 25 + styropian
- Strop monolityczny żelbetowy nad parterem
- Elewacje tynk cienkowarstwowy
- Pokrycie dachu dachówka















