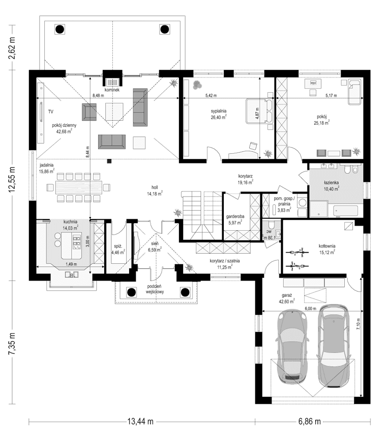
Projekt domu Rezydencja Parkowa 3 C jest to kolejny wariant cieszącego się popularnością projektu z serii Rezydencja parkowa. Budynek został zaprojektowany jako bardziej zwarty, ze ściślejszą - przede wszystkim węższą o niemal 3 metry od bazowego projektu bryłą. Powierzchnia użytkowa oraz powierzchnia zabudowy domu jest mniejsza, stąd też niższy o blisko 15 % koszt budowy domu. Budynek jest podmiejską elegancką rezydencją wzorowaną na willowej przedwojennej zabudowie. Projekt domu Rezydencja Parkowa 3 C łączy w sobie klasyczną, ponadczasową formę, z nowoczesną funkcją oraz zastosowanymi materiałami i technologiami. Front domu zdobi reprezentacyjny portal wejściowy z pięknymi drzwiami wejściowymi, z naświetlami bocznymi i górnym. Od strony elewacji ogrodowej mamy natomiast piękne zadaszenie tarasu w wielkim oknem salonu, otwierającym wnętrze na ogród. Wnętrze domu zaplanowano jako jednokondygnacyjne mieszkanie tylko na parterze. Na górnej kondygnacji mieści się strych, który może być pozostawiony jako wolna przestrzeń, albo zagospodarowany w dowolny sposób jako poddasze użytkowe. Na parterze mamy podział wnętrza na trzy części: część dzienną, nocną i gospodarczo-garażową. W części dziennej mieści się piękny salon z otwarciem przestrzennym (z dziurą w suficie), jadalnia, hol, kuchnia z wyspą i spiżarnią, oraz duża wygodna sień z szatnią i przejściem do garażu. W części nocnej mamy dwie sypialnie, z łazienką, garderobą i pralnią, oraz schody na strych (który może być dodatkowym poddaszem). W części gospodarczej mamy ładną szatnię łączącą garaż z sienią, bardzo duże pomieszczenie gospodarcze / kotłownię, oraz garaż na dwa auta. Dom został zaprojektowany z myślą o trzyosobowej rodzinie, która lubi mieć dużą przestrzeń i z racji tego, że nie jest wielką familią nie ma ochoty gnieździć się w stumetrowym domu. Projekt domu Rezydencja Parkowa 3 C nie ma wielu pokoi - bo nie ma tutaj takiej potrzeby, ale jest bardzo wygodny i komfortowy. Pomieszczenia są duże i ustawne. Do tego towarzyszy im cała masa pomieszczeń i przestrzeni pomocniczej. Nadto na górze mamy jeszcze dużą przestrzeń strychu do adaptacji na poddasze. Dom jest komfortowy, spory, w na tyle rozsądnej skali, żeby budowa nie doprowadziła przyszłych mieszkańców do bankructwa. Dzięki energooszczędnym rozwiązaniom i nowoczesnym instalacjom dom będzie również niedrogi – jak na swoją wielkość - w utrzymaniu. Zapraszamy do zapoznania się z pełną ofertą pracowni MG Projekt: Rezydencja Parkowa, Rezydencja Parkowa 2, Rezydencja Parkowa 3, Rezydencja Parkowa 3 B, Rezydencja Parkowa 3 D, Rezydencja Parkowa 4.
Materiały:
- Fundamenty betonowe ławy i ściany fundamentowe z bloczków betonowych
- Ściany zewnętrzne ściany murowane - pustaki porotherm 25 + styropian + tynk cienkowarstwowy
- Strop monolityczny żelbetowy nad parterem
- Elewacje tynk cienkowarstwowy
- Pokrycie dachu dachówka




















