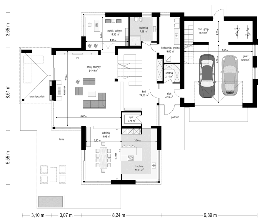
Projekt domu Dom z Widokiem B jest wariantową wersją projektu z popularnej serii „Domów z Widokiem”. Projekt różni się od bazowej wersji przede wszystkim zlikwidowaną pustką nad salonem z antresolą na piętrze. Zamiast tego powstała dodatkowa przestrzeń, z której można wydzielić nawet dwa dodatkowe pokoje o dowolnym przeznaczeniu. Projekt domu Dom z Widokiem B stanowi odpowiedź pracowni na zapotrzebowanie Klientów, którym sam Dom z widokiem bardzo się spodobał, ale nie chcą mieć pustki nad salonem. Budynek składa się z trzech zasadniczych brył: głównego piętrowego rdzenia przekrytego czterospadowym dachem, oraz dwóch dobudowanych do niego parterowych brył przykrytych trzyspadowymi dachami. Nowoczesnego wyglądu domu dodają duże przeszklenia, podziały w elewacjach, oraz zastosowane okładziny z kamienia i drewna. Projekt domu Dom z Widokiem B idealnie wpasuje się zarówno w miejskie otoczenie, jako miejska willa, jak i w luźniejszą podmiejską lub wiejską zabudowę. Budynek ma bardzo reprezentacyjny wygląd. Stanowić będzie o statusie i guście jego przyszłych właścicieli . Wnętrze domu zaprojektowano dzieląc przestrzeń na części: dzienną i gospodarczo-garażową na parterze, oraz sypialnie i dodatkowe pokoje na piętrze. Do domu wchodzimy przez szerokie drzwi frontowe z bocznymi naświetlami wprost do ładnego przedsionka z szatnią. Przedsionek łączy się z częścią dzienną, oraz z częścią gospodarczą domu - z garażem i dużym pomieszczeniem za garażem i przestrzenią magazynową na strychu. W części dziennej mamy piękne wnętrze połączonych pomieszczeń salonu, holu i jadalni, oraz częściowo schowanej za spiżarnią kuchni. Wnętrze salonu i jadalni otwarte jest szerokimi przeszkleniami na częściowo zadaszony taras i ogród. Na parterze mamy dodatkowo gabinet, łazienkę i kotłownię-pralnię. Na piętrze z uwagi na likwidację pustki nad salonem możemy zmieścić aż pięć pokoi sypialnych. Mamy tutaj apartament rodziców z własną łazienką i garderobą, dwie sypialnie dzieci z łazienką, oraz dwa dodatkowe pokoje - sypialnie, lub pomieszczenia o dowolnie innym przeznaczeniu. Nad piętrem znajduje się jeszcze sporej wielkości strych. Projekt domu Dom z Widokiem B to duży budynek, z pięknym wnętrzem i reprezentacyjnym wyglądem zewnętrznym. To doskonała propozycja dla Klientów marzących o prawdziwie komfortowej rezydencji. Dom idealnie pasuje na działkę z wjazdem od południa, lub na działkę z ogródkiem z boku budynku. W projekcie zastosowano energooszczędne rozwiązania materiałowe i instalacyjne. Budynek będzie niedrogi w późniejszej eksploatacji. Zapraszamy do zapoznania się z pełną ofertą pracowni MG Projekt tej serii: Dom z Widokiem, Dom z Widokiem 2, Dom z Widokiem 2C, Dom z Widokiem 3, Dom z Widokiem 3F, Dom z Widokiem 4, Dom z Widokiem 5, Dom z Widokiem 6, Dom z Widokiem 6B, Dom z Widokiem E.
Materiały:
- Fundamenty betonowe ławy i ściany fundamentowe z bloczków betonowych
- Ściany zewnętrzne ściany murowane - pustaki porotherm 25 + styropian
- Strop żelbetowy monolityczny nad parterem i piętrem
- Elewacje tynk cienkowarstwowy na styropianie
- Pokrycie dachu dachówka ceramiczna















