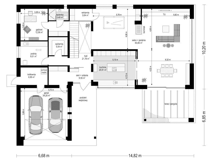
Projekt domu Willa Floryda 4 jest kolejną propozycją domu z serii Willa Floryda - cieszących się dużym zainteresowaniem Klientów. Projekt Willa Floryda 4 został oparty o język detali i formę podobną do pozostałych "Floryd", ale z własnym przemyślanym programem funkcjonalnym i założeniami. Najważniejszym założeniem było przeznaczenie domu na działkę z wjazdem od południa, lub o wschodu. Zarówno strefa wjazdowa i wejściowa do budynku, jak i część ogrodowa znajdują się w zasadzie po tej samej stronie. Ogród jest przed oraz z boku domu. Dzięki sensownie zaplanowanym wnętrzom wszystkie pokoje są umieszczone od słonecznej strony. Budynek Willa Floryda 4 zaprojektowano jako nowoczesną piętrową willę, z dużymi oknami , elewacjami podzielonymi poziomymi pasami, wykończonymi okładzinami z betonu architektonicznego, tynku i drewna. Projekt domu Willa Floryda 4 składa się z zasadniczej dwukondygnacyjnej bryły, przykrytej łagodnym dachem krytym blachę na rąbek, oraz dobudowanej do niej bryły garażu. Wejście do domu podkreślone jest podcieniem, oraz wykuszem z płaskim daszkiem wystającym z elewacji nad wejściem, na piętrze. Wnętrze domu Willa Floryda 4 podzielono na części: na parterze część dzienną i gospodarczo - garażową, oraz na piętrze - część sypialną. Część dzienna składa się z salonu, jadalni, holu i częściowo zamkniętej kuchni, która jest centrum domu - w niej spotykają się wszyscy domownicy. Salon zdobią piękne przeszklenia na taras z pergolą i ogród, oraz trójstronny kominek. Ozdobą wnętrza jest pustka w holu i wspornikowe schody widoczne od razu po przekroczeniu drzwi wejściowych. Część gospodarczą tworzą pomieszczenia garażu, kotłowni, pralni, spiżarni, oraz szatni przy wejściu. Na parterze zaprojektowano też dodatkowy pokój (sypialnia gościnna lub gabinet), wc z natryskiem, oraz piwniczkę na wino. Na piętrze domu mamy piękny apartament rodziców, z wielką garderobą, pokojem kąpielowym z sauną, oraz tarasem z sypialni. Pozostała przestrzeń to dwa apartamenty dzieci, z łazienkami i garderobami i dostępem do tarasu, oraz pokój rekreacyjny. Nad piętrem znajduje się jeszcze spory strych. Budynek Willa Floryda 4 ma dość prostą konstrukcję - mimo sporej powierzchni nie powinien być trudny ani bardzo drogi w budowie. Dzięki energooszczędnym rozwiązaniom będzie też niedrogi w eksploatacji. Zapraszamy do zapoznania się z pełną ofertą pracowni MG Projekt: projekt domu Willa Floryda, projekt domu Willa Floryda 2, projekt Willa Floryda 3, projekt domu Willa Floryda 5, projekt Rezydencja Floryda, projekt Rezydencja Floryda 2, projekt domu Willa Floryda 6, projekt domu Willa Floryda 7, projekt domu Willa Floryda 8.
Materiały:
- Fundamenty płyta
- Ściany zewnętrzne ściany murowane - pustaki porotherm 25 + styropian
- Strop monolityczny żelbetowy nad parterem i piętrem
- Elewacje tynk cienkowarstwowy i beton architektoniczny
- Pokrycie dachu blacha na rąbek




















