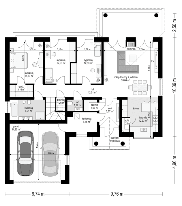
Projekt domu Dom na Parkowej 6 to kolejny projekt z kolekcji Domów na Parkowej - tym razem większą wersję tego projektu: Dom na Parkowej 6. Dom jednorodzinny dla 3-6 osobowej rodziny, parterowy, ze strychem, który można zaadaptować łatwo i wykorzystać na poddasze użytkowe. Budynek ma prostokątną bryłę, przykrytą czterospadowym dachem. Od strony elewacji frontowej dobudowany jest do niej garaż dwustanowiskowy. Reprezentacyjny front domu, przywołujący na myśl amerykańskie rezydencje z bogatych przedmieść, ozdobiony jest pięknym, wspartym na kolumnach zadaszeniem nad drzwiami wejściowymi. Jest to centralny element elewacji frontowej skupiający całą uwagę. Podobnie od strony ogrodu: głównym elementem ozdabiającym elewację jest piękne zadaszenie nad tarasem, oraz duże przeszklenia salonu. Architektura domu nasycona klasycznymi detalami, acz stonowana, tworzy elegancki dom o ponadczasowym wyglądzie.
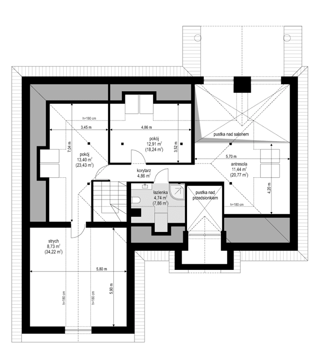
Wnętrze: całość programu użytkowego Domu na Parkowej 6 znajduje się na parterze. Strych może być zagospodarowany jako dodatkowa użytkowa przestrzeń, lub może być pozostawiony jako strych. Jeśli jest wykorzystany jako poddasze użytkowe, wówczas znajdują się tam dwa pokoje, łazienka i antresola nad pustką nad salonem. Do domu wschodzimy przez wygodną sień z szatnią, o podwyższonym suficie, z której dostajemy się do holu, lub w bok - do kotłowni i garażu. Na wprost wejścia wchodzimy do otwartej przestrzeni dziennej połączonego salonu i jadalni, oraz wydzielonej pięknej kuchni ze spiżarnią. Nad salonem otwarto sufit powiększając dodatkowo przestrzeń dzienną. Otwarcie jest połączone z antresolą na poddaszu. W części nocnej domu mamy trzy sypialnie, wc i łazienkę. Sypialnie dzieci mają wbudowane szafy. Sypialnia rodziców-garderobę. Wszystkie sypialnie mają piękne okna z widokiem na ogród. Nad garażem znajduje się dodatkowy strych gospodarczy. Dom na Parkowej 6 jest prosty w budowie i energooszczędny. To doskonała propozycja dla osób nie planujących wydawać bardzo dużej kwoty na budowę domu, lub nie posiadających dużej działki, a jednocześnie nie chcących rezygnować z marzeń. Zapraszamy do zapoznania się z pełną ofertą pracowni MG Projekt: projekt domu Dom na Parkowej, projekt domu Dom na Parkowej 2, projekt domu Dom na Parkowej 3, projekt domu Dom na Parkowej 4, projekt domu Dom na Parkowej 5, projekt domu Dom na Parkowej 7 A, projekt domu Dom na Parkowej 7 B.
Materiały:
- Fundamenty betonowe ławy i ściany fundamentowe z bloczków betonowych
- Ściany zewnętrzne ściany murowane - pustaki porotherm 25 + styropian + tynk cienkowarstwowy
- Strop monolityczny żelbetowy nad parterem
- Elewacje tynk cienkowarstwowy
- Pokrycie dachu dachówka




















