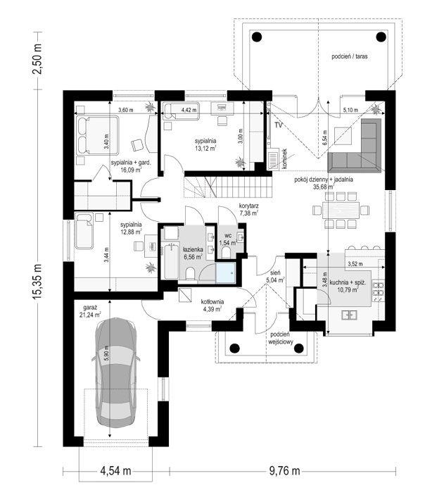
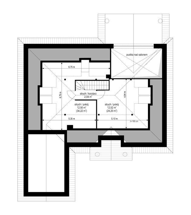
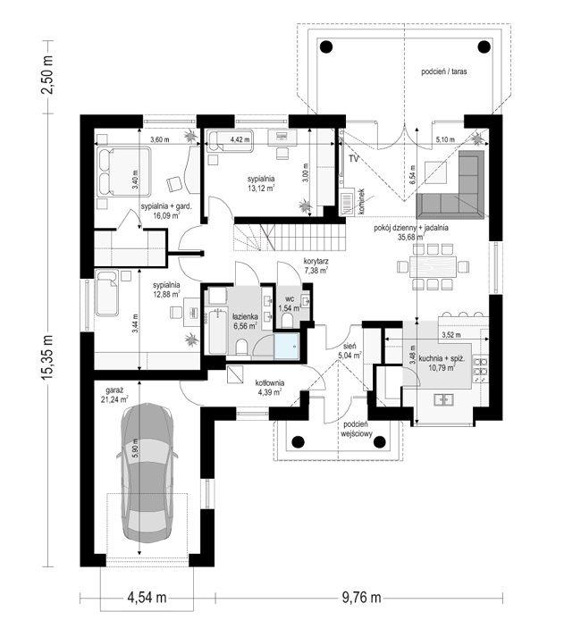
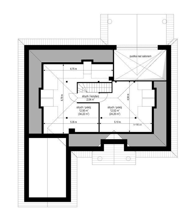
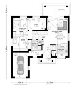
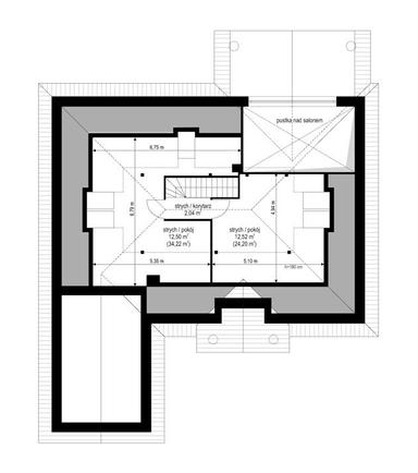
Projekt domu Dom na Parkowej 4 jest wersją wariantową popularnego projektu „Dom na Parkowej”. Budynek różni się od wersji bazowej przede wszystkim wielkością - ma pojedynczy garaż, przez co cała bryła domu jest węższa, a jego powierzchnia nieco mniejsza. Projekt domu Dom na Parkowej 4 jest więc dobrą propozycją dla osób poszukujących mniejszego domu, lub posiadających po prostu węższą działkę. Architektura zewnętrzna budynku stanowi konsekwentną kontynuację projektów z tej serii z naszej pracowni. Wygląd domu wzorowany jest na amerykańskich podmiejskich willach, oraz na polskim domu- dworku z lat 20-30tych. Detale ozdabiające elewacje dodają mu reprezentacyjnego wyglądu, jednocześnie zachowując smak i umiar. Front budynku ozdobiony jest pięknymi drzwiami wejściowymi zapraszającymi do obszernego przedsionka. Od strony ogrodu natomiast mamy duży zadaszony taras i szerokie przeszklenie łączące wnętrze salonu z ogrodem na zewnątrz. Wnętrze domu zostało podzielone na trzy strefy: część dzienną, nocną i gospodarczo-garażową. Z obszernego przedsionka z szafami wbudowanymi przedostajemy się na wprost szerokimi drzwiami do części dziennej, lub w bok do pomieszczenia gospodarczego i garażu. Część dzienna to połączone pomieszczenia salonu z jadalnią, kuchni ze spiżarką, oraz holu. Nad salonem mamy otwarcie przestrzenne z widokiem na antresolę na poddaszu. Szerokie przeszklenie z naświetlem otwiera widok z pokoju dziennego na taras i ogród. Z części dziennej przechodzimy do części z sypialniami. Mamy tutaj trzy sypialnie, oraz łazienkę. W sypialniach dziecięcych zaprojektowano szafy wnękowe, w sypialni rodziców – garderobę. Na strychu mamy dodatkową przestrzeń, którą można zaadaptować na powierzchnią użytkową: pokój, oraz antresolę w widokiem na pokój dzienny poniżej. Prosta konstrukcja domu, prostokątny kształt umożliwią łatwą i sprawną budowę. Projekt domu Dom na Parkowej 4 nie jest drogi w realizacji, a dzięki zastosowanym nowoczesnym materiałom, izolacjom i instalacjom będzie tani w późniejszej eksploatacji. Zapraszamy do zapoznania się z pełną ofertą pracowni MG Projekt: projekt domu Dom na Parkowej, projekt domu Dom na Parkowej 2, projekt domu Dom na Parkowej 3, projekt domu Dom na Parkowej 5, projekt domu Dom na Parkowej 6, projekt domu Dom na Parkowej 7 A, projekt domu Dom na Parkowej 7 B.
Materiały:
- Fundamenty betonowe ławy i ściany fundamentowe z bloczków betonowych
- Ściany zewnętrzne ściany murowane - pustaki porotherm 25 + styropian + tynk cienkowarstwowy
- Strop monolityczny żelbetowy nad parterem
- Elewacje tynk cienkowarstwowy
- Pokrycie dachu dachówka















