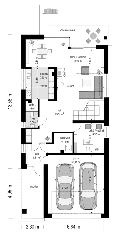
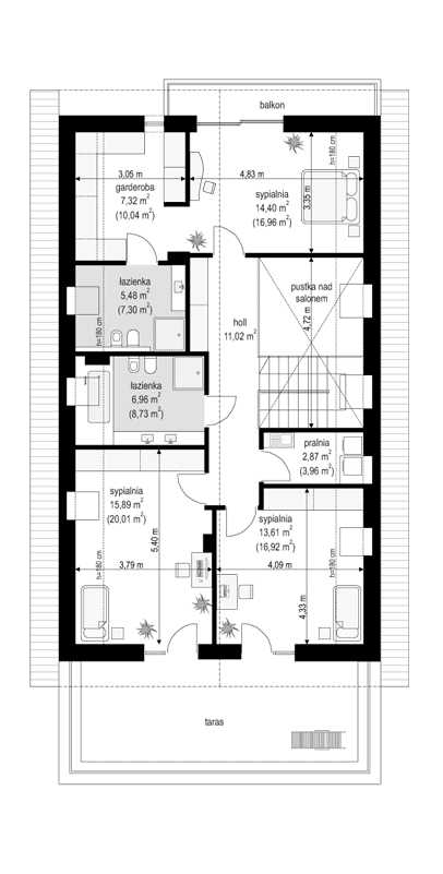
Projekt domu Salsa to jeden z projektów z serii domów wywodzących się z projektu „Party”. Salsa to dom jednorodzinny przeznaczony dla cztero-sześcioosobowej rodziny. Dom parterowy z poddaszem użytkowym, o prostej bryle przykrytej dwuspadowym dachem, z wystającą nieco poza główną bryłę parterową częścią garażu. Projekt przeznaczony jest na wąską działkę, która nie pozwala na budowę budynku o szerokiej elewacji frontowej. Minimalna szerokość działki to 16,9 metrów, ale zamieniając w jednej z bocznych elewacji okna na luksfery możemy posadowić dom na działce o szerokości poniżej 16 metrów (nawet na działce o szerokości 14,6 m - jeśli jest zgoda na zbliżenie się ścianą bez okien na 1,5 m od granicy). Prosta spokojna bryła domu połączona z nowoczesną formą i zastosowanymi materiałami daje atrakcyjną sylwetkę „Salsy”. Front domu ozdabia duży podcień wejściowy, z reprezentacyjnymi drzwiami. Od strony ogrodu mamy z kolei częściowo zadaszony taras, piękne przeszklone otwarcie przestrzeni dziennej na ogród, oraz taras – balkon poddasza. Nowoczesna stonowana kolorystyka domu pozwoli „Salsie” właściwie wkomponować się w dowolne sąsiedztwo. Wnętrze domu zaprojektowano sytuując garaż obok wejścia, od frontu. Z sieni przechodzimy szerokimi szklanymi drzwiami do holu. Hol ma bardzo poręczną wnękę z dużą szafą przy przedsionku. Z holu otwiera się nam piękny widok na salon z pustką nad częścią jego powierzchni i nad schodami będącymi ozdobą wnętrza. Obok mamy bardzo praktyczną kuchnią typu „wagon”, oraz przestronny aneks jadalny. Salon i jadalnia łączą się przeszklonymi drzwiami z tarasem i ogrodem. Z holu możemy dostać się jeszcze do dodatkowego pokoju (np. gabinet), oraz wc. Na poddaszu mamy piękny holl - antresolę, widoczną z salonu na dole. Antresola stanowi most łączący apartament rodziców (z sypialnią, bardzo ładną garderobą, łazienką i balkonem-tarasem ogrodowym), z częścią poddasza przeznaczoną na dwie sypialnie dzieci, łazienkę i pralnię. Sypialnie dziecięce również mają wyjście na drugi balkon-taras. Dom ma prostą bryłę, nowoczesną architekturę, piękne wnętrze z pustką nad salonem - no i przede wszystkim jest to doskonały projekt na wąską działkę. Do tego projekt domu Salsa ma prostą konstrukcję - będzie niedrogi w budowie i późniejszym utrzymaniu. Wąska działka nie musi być wcale wadą - wystarczy zdecydować się na właściwy projekt - oczywiście najlepsza jest Salsa :) Zapraszamy do zapoznania się z całą serią "roztańczonych domów": https://www.mgprojekt.com.pl/makarena, https://www.mgprojekt.com.pl/bolero, https://www.mgprojekt.com.pl/lambada, https://www.mgprojekt.com.pl/party, https://www.mgprojekt.com.pl/party-2, https://www.mgprojekt.com.pl/biba, https://www.mgprojekt.com.pl/tango, https://www.mgprojekt.com.pl/salsa, https://www.mgprojekt.com.pl/rumba, https://www.mgprojekt.com.pl/mambo, https://www.mgprojekt.com.pl/mambo, https://www.mgprojekt.com.pl/fokstrot, https://www.mgprojekt.com.pl/samba.
Materiały:
- Fundamenty betonowe ławy i ściany fundamentowe z bloczków betonowych
- Ściany zewnętrzne ściany murowane - pustaki porotherm 25 + styropian
- Strop żelbetowy monolityczny
- Elewacje tynk cienkowarstwowy na styropianie
- Pokrycie dachu dachówka ceramiczna















