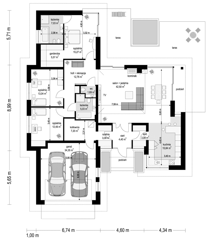
Projekt domu Jedyny to dom jednorodzinny, parterowy, dla 4- 5-osobowej rodziny. Nawiązuje wyglądem do architektury amerykańskich bungalowów z południowych stanów, ale w europejskim murowanym, solidnym wydaniu. Jest to nowoczesny, energooszczędny dom dla rodziny pragnącej zamieszkać blisko ogrodu, na jednym poziomie, bez biegania po schodach. Oczywiście też domek dla szczęśliwców, którzy dysponują ładną działką :). Dom Jedyny zaprojektowano na planie litery T. Front budynku zakomponowano wokół reprezentacyjnego wejścia - wchodzimy po schodkach patio, a stąd z podestu szerokimi pięknymi drzwiami z naświetlami do wnętrza. Obok wejścia mamy piękne narożne okno kuchenne, a z drugiej strony elewacji wystający szeroki garaż. Z kolei elewację ogrodową zdobią piękne narożne przeszklenia łączące wnętrze z tarasem i ogrodem, oraz solidna ceglana ściana komina. Dom całkowicie otwiera się na zieleń łapiąc słońce i wprowadzając ogród do wnętrza. Zasada projektowania środka domu w tym projekcie jest prosta i bezkompromisowa: żadnych klitek, udawanych pokoików. Pokoje są ładne, wymiarowe i funkcjonalnie połączone ze sobą. Projekt domu Jedyny z pewnością będzie dobrą propozycją dla osób mających już za sobą jeden czy dwa nieudane domy i mających wyobrażenie o tym co daje rzeczywisty komfort i wygodę mieszkania. Do domu wchodzimy przez duży przeszklony przedsionek. Na lewo przechodzimy przez szatnię do kotłowni i garażu. Na prawo - przez spiżarnię (magazyn) do pięknej kuchni. Na wprost otwiera nam się bajeczne duża przestrzeń dzienna - miejsce codziennego życia domowników. Przestrzeń dzienna połączona jest z kuchnią, a pięknymi przeszkleniami z tarasem i ogrodem. Na środku salonu mamy komplet kanap, po bokach ścianę TV, i jadalnię, a na wprost ścianę kominkową na tle widocznego przez szyby ogrodu :). Dużą przestrzeń salonu potęguje otwarcie przestrzenne sufitu aż do wysokości dachu. Z części dziennej przechodzimy do prywatnej części domowników. Mamy tutaj holl – pokój ogólny, w którym zmieści się dodatkowa kanapa – taka do posiedzenia sobie, apartament rodziców, z sypialnią w pełni otwartą na ogród, garderobą i łazienką, oraz dwie sypialnie dzieci, dodatkowa łazienka i wc. Nad dużą częścią powierzchni parteru mamy do dyspozycji strych, który można wykorzystać jako domowy magazyn przedmiotów różnych. Dom mimo swojej niewielkiej powierzchni jest bardzo komfortowy i funkcjonalny. Z pewnością będzie się w nim świetnie mieszkało. Do tego dom wg projektu domu Jedyny ma prostą konstrukcję i nie będzie drogi w budowie, a energooszczędne rozwiązania i dobre izolacje zapewnią niedrogie koszty utrzymania. Zapraszamy !
Materiały:
- Fundamenty betonowe ławy i ściany fundamentowe z bloczków betonowych
- Ściany zewnętrzne ściany murowane - pustaki porotherm 25 + styropian + tynk cienkowarstwowy
- Strop drewniany belkowy
- Elewacje tynk cienkowarstwowy na styropianie
- Pokrycie dachu dachówka ceramiczna














