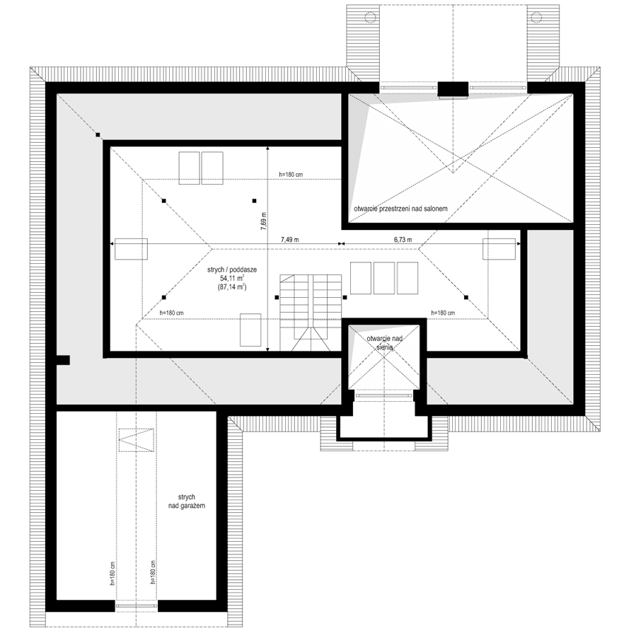
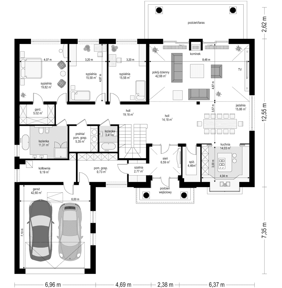
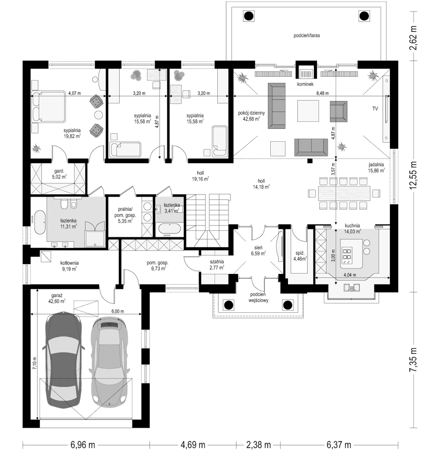
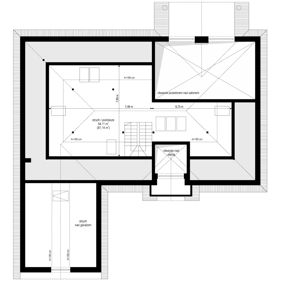
Projekt domu Willa parkowa 2 jest kolejną wersją projektu z serii „rezydencja / willa parkowa”. Tym razem dom o nieco węższej bryle. Jest to komfortowa parterowa willa, nawiązująca architektonicznie do amerykańskich rezydencji. Zastosowane w nim detale łączą nowoczesne materiały z klasyczną formą. Taki dom nigdy się nie zestarzeje i nie znudzi - zawsze będzie modny. Budynek zaprojektowano jako parterowy, czyli najwygodniejszy do życia. Wszystkie pomieszczenia znajdują się na jednym poziomie. Nie ma tutaj podziału na kondygnacje i biegania po schodach. Komfort płynący z takiego rozwiązania jest nie do przecenienia. W projekcie domu Willa parkowa 2 wszystkie pokoje - zarówno salon jak i sypialnie mają bezpośredni kontakt z otaczającym ogrodem. Front budynku zaakcentowano reprezentacyjnym portykiem wejściowym, z dużymi przeszklonymi drzwiami prowadzącymi do wygodnego przedsionka. Wystający przed elewację frontową garaż pozwala na lekkie cofnięcie ściany frontowej od ogrodzenia. Tworzy się tym samym właściwy dystans od drogi. W elewacji ogrodowej zaprojektowano duży zadaszony taras - miejsce rodzinnych biesiad i relaksu. Dom ma duże przeszklenia z ładnymi podziałami. Całość przykryta jest proporcjonalnym dachem. Wnętrze domu podzielono na część dzienną i nocną. Salon z pustką łączy się z jadalnią, holem, kuchnią w prawie stumetrowe wnętrze. Taka przestrzeń to czysty luksus. W projekcie domu Willa parkowa 2 w części nocnej zmieszczono trzy sypialnie ( w tym sypialnia rodziców z garderobą ), dwie łazienki, oraz przydatną pralnię. Z sieni wejściowej przechodzimy z kolei przez szatnię pomieszczenia gospodarczego, oraz do dużego garażu z przestrzenią gospodarczą i kotłowni. Nad parterem mamy duży strych, który można zostawić jako domowy magazyn, albo zagospodarować na poddasze użytkowe. Dom nie należy do najtańszych, ale jest to kawał budynku. Jeśli Inwestor ma głód przestrzeni i planuje budowę domu, w którym wreszcie poczuje się swobodnie, to jest to projekt dla niego. W budynku zastosowano dobre izolacje, oraz nowoczesne energooszczędne materiały. Wbrew pozorom nie będzie on bardzo drogi w utrzymaniu. Zapraszamy do obejrzenia wszystkich projektów domów z serii Willa Parkowa: https://www.mgprojekt.com.pl/willa-parkowa, https://www.mgprojekt.com.pl/willa-parkowa-2, https://www.mgprojekt.com.pl/willa-parkowa-3, https://www.mgprojekt.com.pl/willa-parkowa-4, https://www.mgprojekt.com.pl/willa-parkowa-5, https://www.mgprojekt.com.pl/willa-parkowa-6, https://www.mgprojekt.com.pl/willa-parkowa-6-d, https://www.mgprojekt.com.pl/willa-parkowa-7, https://www.mgprojekt.com.pl/willa-parkowa-8-a, https://www.mgprojekt.com.pl/willa-parkowa-8-b, https://www.mgprojekt.com.pl/willa-parkowa-9, https://www.mgprojekt.com.pl/willa-parkowa-10, https://www.mgprojekt.com.pl/willa-parkowa-b, https://www.mgprojekt.com.pl/willa-parkowa-c, https://www.mgprojekt.com.pl/willa-parkowa-d.
Materiały:
- Fundamenty betonowe ławy i ściany fundamentowe z bloczków betonowych
- Ściany zewnętrzne ściany murowane - pustaki porotherm 25 + styropian + tynk cienkowarstwowy
- Strop żelbetowy monolityczny
- Elewacje tynk cienkowarstwowy na styropianie
- Pokrycie dachu dachówka ceramiczna




















