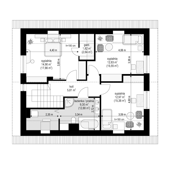
Projekt domu Viking 3 to kolejny dom z serii „Viking” - tym razem najmniejszy z kolekcji, parterowy, z poddaszem użytkowym, bez garażu, przeznaczony dla 3- 4-osobowej rodziny. Budynek ma zwartą prostokątną bryłę przykrytą dwuspadowym symetrycznym dachem. Nowoczesne materiały i detale dają Vikingowi 3 dynamiczny a zarazem pełen uroku wygląd zewnętrzny. Duże przeszklenia, drewniane i włóknowo -cementowe okładziny ścian, podział elewacji na poziome pasy urozmaicają elewacje budynku. Wejście podkreślono podcieniem z dużymi drzwiami z bocznym naświetlem. Elewację ogrodową ozdobiono szerokimi przeszkleniami salonu i jadalni, otwierającymi wnętrze na ogród, oraz narożnym podcieniem stanowiącym częściowe zadaszenie tarasu. Wnętrze domu: na parterze znajduje się salon z aneksem jadalnym, połączony z holem, kuchnia ze spiżarką, kotłownia i wc. Z holu dostępne są wygodne, dobrze oświetlone schody na poddasze. Na górze mamy trzy sypialnie z łazienką i aneksem pralni. Sypialnia rodziców ma swoją garderobę, a pozostałe sypialnie - szafy wnękowe. Projekt domu Viking 3 to prosty, nowoczesny, funkcjonalnie zaprojektowany dom. Będzie niedrogi w budowie i późniejszym utrzymaniu. Jest to propozycja dla Inwestorów, którzy mają nie za wielką działkę i nie mogą lub nie chcą wydać dużych pieniędzy na budowę swojego wymarzonego M. Projekt domu Viking 3 dostępny jest także w odbiciu lustrzanym w wersji bazowej (projekt domu Viking), wersję z pojedynczym garażem (projekt domu Viking 2), z zadaszeniem nad garażem (projekt domu Viking 4), oraz największą z serii (projekt domu Viking 5). Projekt bardzo łatwo można dostosować do standardu NF40. Zapraszamy.
Materiały:
- Fundamenty betonowe ławy i ściany fundamentowe z bloczków betonowych
- Ściany zewnętrzne ściany murowane - pustaki porotherm 25 + styropian + tynk cienkowarstwowy
- Strop monolityczny
- Elewacje tynk cienkowarstwowy na styropianie
- Pokrycie dachu dachówka ceramiczna




















