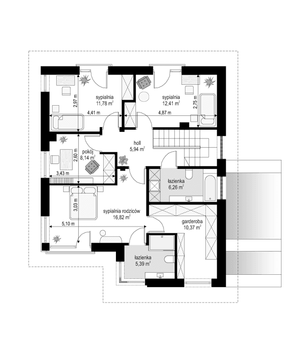
Projekt domu Tytan 4 jest nową wersją popularnego projektu Tytan. Piętrowy dom, przeznaczony dla 4- 6-osobowej rodziny, o zwartej bryle, zbudowany na planie prostokąta, z dobudowanym garażem dwustanowiskowym. Budynek doskonale nadaje się na działkę w niekorzystnym nasłonecznieniem (ze słońcem od strony wjazdu). Prosta bryła, nowoczesny wyraz architektoniczny, połączony z funkcjonalnym wnętrzem, daje bardzo korzystne połączenie. Projekt domu Tytan 4 mimo, że nie ma dużej powierzchni użytkowej, sprawia wrażenie przestronnego i komfortowego. Na parterze zaprojektowaną jedną otwartą przestrzeń dzienną z holem, salonem, aneksem jadalnym i kuchnią. Na piętrze zaprojektowano apartament rodziców, z dużą sypialnią, łazienką i garderobą, dwie sypialnie dzieci z łazienką, oraz dodatkowy pokój (gabinet, sypialnię gościnną). Na parterze mamy dodatkowo, duży dwustanowiskowy garaż, oraz kotłownię, a przy kuchni spiżarnię. Prosta konstrukcja domu, jego zwarta bryła zapewnią niedrogą i nieskomplikowaną budowę, oraz niewielkie późniejsze koszty utrzymania budynku. Zastosowane nowoczesne technologie, dobre izolacje polepszają energooszczędność budynku. Wygląd zewnętrzny domu: elewacje podzielono na poziome pasy wykończone różnymi materiałami (tynk, drewno, cegła klinkierowa). To daje wrażenie nowoczesności i właściwych proporcji. Detale wykończeń elewacji: gzymsy, parapety, okładziny ścian, czy duże przeszklenia - wszystkie one tworzą atrakcyjny styl domu. Projekt domu Tytan 4 to solidny, niewielki, funkcjonalnie zaprojektowany dom, w sam raz dla kilkuosobowej rodziny pragnącej mieszkać z nowoczesnej architekturze. Prostota konstrukcji pozwoli utrzymać koszt budowy w granicach rozsądku, a energooszczędne rozwiązania pozwolą osiągnąć niskie koszty utrzymania. Tytan 4 dostępny jest także odbiciu lustrzanym. Zapraszamy do zapoznania się z pełną ofertą pracowni MG Projekt: projekt domu Tytan, projekt domu Tytan 2, projekt domu Tytan 2B, projekt domu Tytan 3, projekt domu Tytan 5, projekt domu Tytan 5B, projekt domu Tytan 6, projekt domu Tytan 6B.
Materiały:
- Fundamenty betonowe ławy i ściany fundamentowe z bloczków betonowych
- Ściany zewnętrzne ściany murowane - pustaki porotherm 25 + styropian + tynk cienkowarstwowy
- Strop Teriva
- Elewacje tynk cienkowarstwowy na styropianie
- Pokrycie dachu dachówka ceramiczna




















