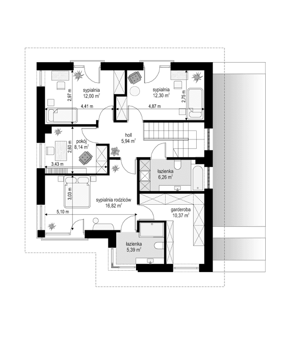
Projekt domu Tytan 3 jest kolejną wersją popularnego projektu Tytan. Dom jednorodzinny, piętrowy, z garażem częściowo wbudowanym w bryłę budynku. Przeznaczony dla 4- 6-osobowej rodziny. Bryła budynku o prostokątnym kształcie. Rdzeń domu na planie kwadratu, przykryty kopertowym dachem. Budynek o prostej konstrukcji, łatwy w budowie i niedrogi w późniejszym utrzymaniu. Dzięki otwarciu dużymi oknami na stronę elewacji frontowej i bocznej projekt domu Tytan 3 doskonale nadaje się na działki o niekorzystnym położeniu wjazdu i drogi dojazdowej względem słońca. Dom zachowuje ogródek i taras z tyłu domu, ale dzięki dużym przeszkleniom narożnika frontowego wnętrze będzie skąpane w słońcu, nawet gdy działka ma wjazd od południa. Wnętrze parteru to otwarta przestrzeń dzienna połączonych: salonu, jadalni, holu i kuchni. Dodatkowo na parterze przewidziano duży podwójny garaż, kotłownię, łazienkę, spiżarnię, oraz pokój (gabinet, lub sypialnię). Na piętrze do dyspozycji mieszkańców są cztery pokoje, dwie łazienki i duża garderoba z sypialni rodziców. Nad piętrem mamy jeszcze strych. Dom ma nowoczesną, ale spokojną architekturę. Detale dobrano w stonowany sposób, tak żeby bom był nowoczesny, ale nie awangardowy. Projekt domu Tytan 3 to doskonały wybór dla inwestorów ceniących sobie komfort, wygodę i praktyczność. Budynek jest bardzo dobrze ocieplony i wyposażony w energooszczędne rozwiązania. W łatwy sposób można go przystosować do standardu NF40.
Zapraszamy do zapoznania się z pełną ofertą pracowni MG Projekt: Tytan, Tytan 2, Tytan 2B, Tytan 4, Tytan 5, Tytan 5B, Tytan 6, Tytan 6B.
Materiały:
- Fundamenty betonowe ławy i ściany fundamentowe z bloczków betonowych
- Ściany zewnętrzne ściany murowane - pustaki porotherm 25 + styropian + tynk cienkowarstwowy
- Strop Teriva
- Elewacje tynk cienkowarstwowy na styropianie
- Pokrycie dachu dachówka ceramiczna




















