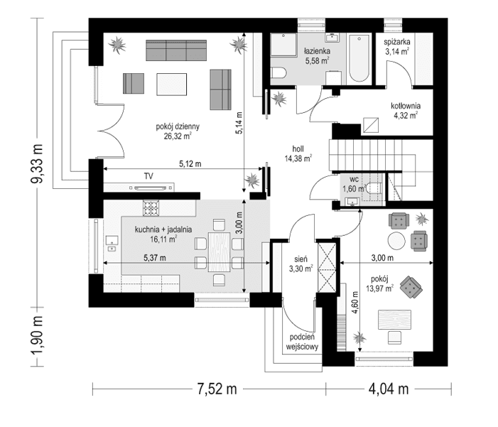
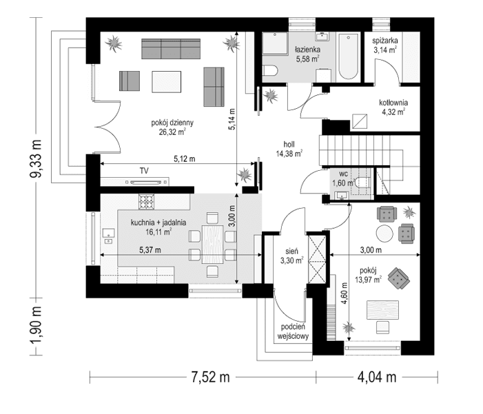
Projekt domu Tytan 2 B jest wersją wariantową projektu Tytan 2 - z mniejszą liczbą okien balkonowych na parterze i na piętrze (z mniejszą liczbą przeszkleń). Projekt domu Tytan 2 B to budynek piętrowy, przeznaczony dla 5- 7-osobowej rodziny. Dom dla inwestorów chcących wycisnąć maksymalnie dużą ilość pokoi z niedużej przestrzeni. Aby maksymalnie wykorzystać przestrzeń wnętrza zrezygnowano z garażu. Dom jest maksymalnie prosty i praktyczny. Na parterze mamy salon, kuchnię z aneksem jadalnym, dodatkowy spory pokój (np. dla seniorów), oraz łazienkę i pomieszczenia gospodarcze. Na piętrze mamy cztery pełnowymiarowe pokoje, dużą garderobę i bardzo ładną łazienkę. Wszystko mieści się na powierzchni ca 170 m2. Bryła domu jest prosta, wkomponowana w miłą dla oka architekturę. Elewacje piętrowego domu podzielono na poziome pasy, obniżając optycznie bryłę. Projekt domu Tytan 2 B nadaje się na działkę z ogródkiem z boku - tam, gdzie mamy niekorzystne usytuowanie wjazdu na działkę w stosunku do nasłonecznienia. Dom jest bardzo dobrze ocieplony, energooszczędny. A dzięki prostej bryle będzie łatwy i niedrogi w budowie. Zapraszamy do zapoznania się z pełną ofertą pracowni MG Projekt: Tytan, Tytan 2, Tytan 3, Tytan 4, Tytan 5, Tytan 5B, Tytan 6, Tytan 6B.
Materiały:
- Fundamenty betonowe ławy i ściany fundamentowe z bloczków betonowych
- Ściany zewnętrzne ściany murowane - pustaki porotherm 25 + styropian + tynk cienkowarstwowy
- Strop Teriva
- Elewacje tynk cienkowarstwowy na styropianie
- Pokrycie dachu dachówka ceramiczna




















