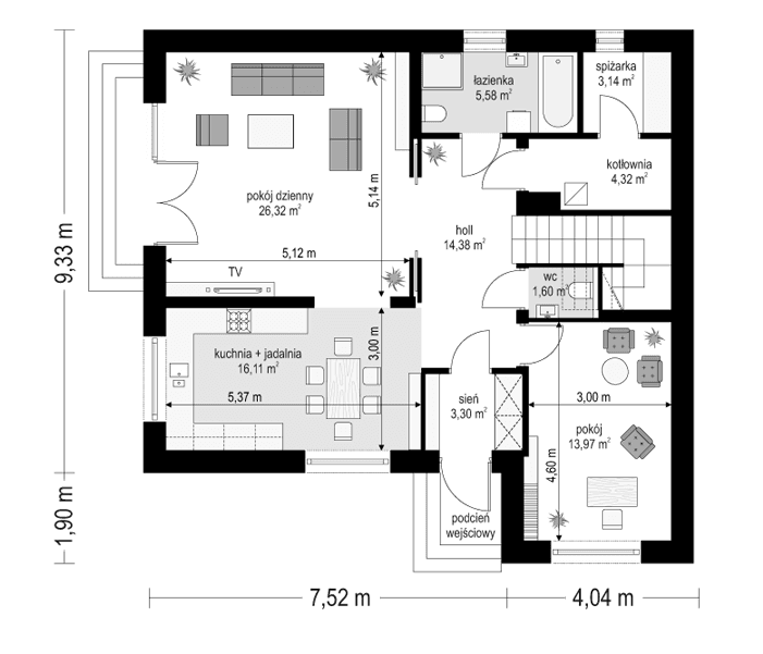
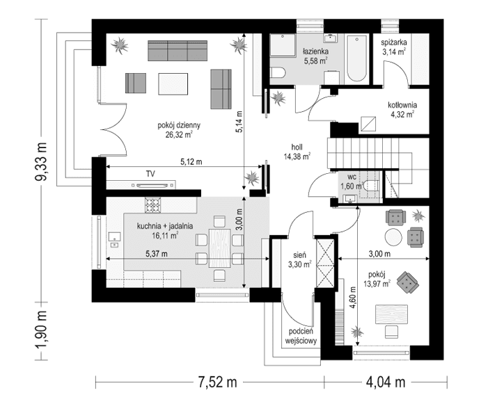
Projekt domu Tytan 2 jest kolejną wersją wariantową popularnego projektu Tytan. Tytan 2 występuje w trzech wersjach wariantowych: prezentowany Tytan 2, następnie Tytan 2 wariant B - dom z mniejszą liczbą okien balkonowych na parterze i na piętrze (z mniejszą liczbą przeszkleń), oraz Tytan 2 wariant C - projekt z dachem o większym kącie nachylenia (30 stopni). Każda z wymienionych wersji projektu jest bardzo podobne, wszystkie są zbudowane na tej samej bryle, o tej samej wielkości. Projekt domu Tytan 2 to budynek piętrowy, przeznaczony dla 5- 7-osobowej rodziny. Dom dla inwestorów chcących wycisnąć maksymalnie dużą ilość pokoi z niedużej przestrzeni. Aby maksymalnie wykorzystać przestrzeń wnętrza zrezygnowano z garażu. Dom jest maksymalnie prosty i praktyczny. Na parterze mamy salon, kuchnię z aneksem jadalnym, dodatkowy spory pokój (np. dla seniorów), oraz łazienkę i pomieszczenia gospodarcze. Na piętrze mamy cztery pełnowymiarowe pokoje, dużą garderobę i bardzo ładną łazienkę. A wszystko na 170 metrach powierzchni. Bryła domu jest prosta, ale wkomponowana w nowoczesną ładną architekturę. Elewacje piętrowego domu podzielono na poziome pasy, obniżając optycznie bryłę. Projekt domu Tytan 2 nadaje się na działkę z ogródkiem z boku - tam, gdzie mamy niekorzystne usytuowanie wjazdu na działkę w stosunku do nasłonecznienia. Dom jest bardzo dobrze ocieplony, energooszczędny. A dzięki prostej bryle będzie łatwy i niedrogi w budowie. Zapraszamy do zapoznania się z pełną ofertą pracowni MG Projekt: projekt domu Tytan, projekt domu Tytan 2B, projekt domu Tytan 3, projekt domu Tytan 4, projekt domu Tytan 5, projekt domu Tytan 5B, projekt domu Tytan 6, projekt domu Tytan 6B.
Materiały:
- Fundamenty betonowe ławy i ściany fundamentowe z bloczków betonowych
- Ściany zewnętrzne ściany murowane - pustaki porotherm 25 + styropian + tynk cienkowarstwowy
- Strop Teriva
- Elewacje tynk cienkowarstwowy na styropianie
- Pokrycie dachu dachówka ceramiczna




















