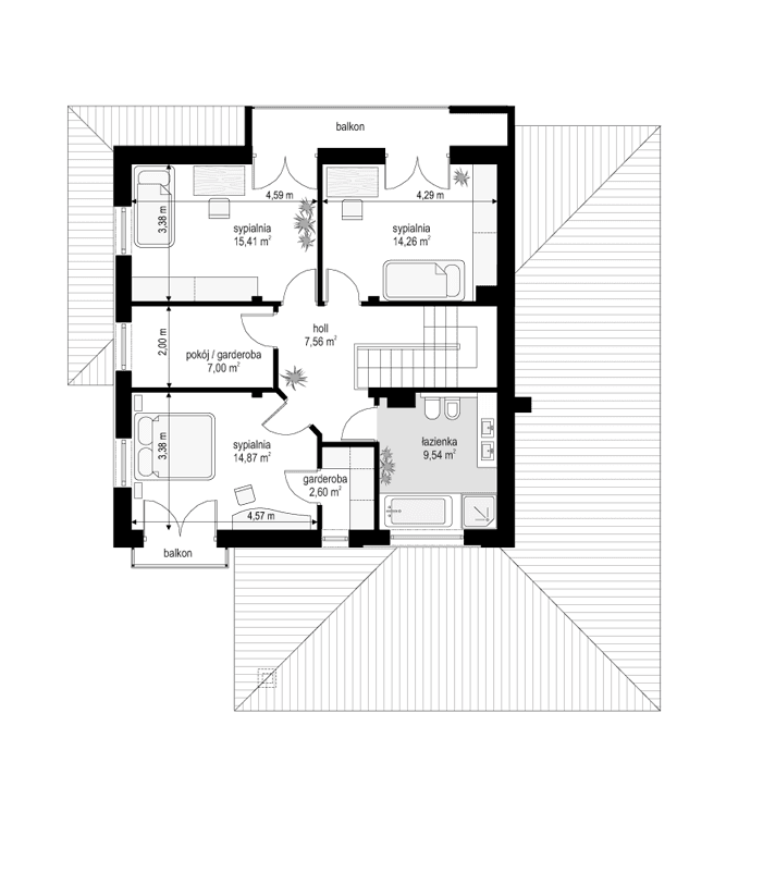
Projekt domu Szmaragd 5 Prezentujemy kolejną wersję wariantową domu z serii Szmaragd. Tym razem jest to Szmaragd 5. Projekt domu jednorodzinnego piętrowego, z garażem częściowo wbudowanym w bryłę. Projekt domu Szmaragd 5 przeznaczony dla 4- 5-osobowej rodziny. Dom ma nowoczesną, ale nie agresywną architekturę. Bryła budynku jest zwarta, przykryta kopertowym dachem. Dzięki temu dom będzie łatwy i niedrogi zarówno w budowie, jak i późniejszym utrzymaniu. Parter domu to otwarta część dzienna, z salonem, holem, jadalnią i otwartą kuchnią. Razem pomieszczenia tworzą dużą wspólną przestrzeń. Dodatkowo na parterze przewidziano pokój - gabinet lub sypialnię gościnną, łazienkę, oraz duży garaż i kotłownię. Przy kuchni zmieściła się niewielka spiżarka. Na piętrze mamy trzy ładne sypialnie (sypialnia rodziców z garderobą), oraz bardzo ładną łazienkę. Jest też dodatkowe pomieszczenie, które może służyć jako pokój, albo domowe biuro, lub pralnię – garderobę. Nad piętrem mamy jeszcze sporej wielkości strych - magazyn domowych rupieci. Projekt domu Szmaragd 5 to komfortowy, wygodny dom. Ma w sobie wszystko czego można potrzebować od prawdziwego domu. Nowoczesny wygląd domu, kolorystyka i materiały tworzą spójną całość z przestronnym wnętrzem. Dom jest energooszczędny. Dobre ocieplenia i nowoczesne instalacje pozwalają go w łatwy sposób przystosować do standardu NF40. Projekt dostępny jest w odbiciu lustrzanym jak i w kilku innych wersjach: wersja bazowa (projekt domu Szmaragd), zbliźniaczona (projekt domu Szmaragd 2), wersja z dodatkowym pokojem na parterze (projekt domu Szmaragd 3), komfortowa (projekt domu Szmaragd 4), oraz najnowszą (projekt domu Szmaragd 6). Zapraszamy !
Materiały:
- Fundamenty betonowe ławy i ściany fundamentowe z bloczków betonowych
- Ściany zewnętrzne ściany murowane - pustaki porotherm 25 + styropian + tynk cienkowarstwowy
- Strop Teriva
- Elewacje tynk cienkowarstwowy na styropianie
- Pokrycie dachu dachówka ceramiczna















