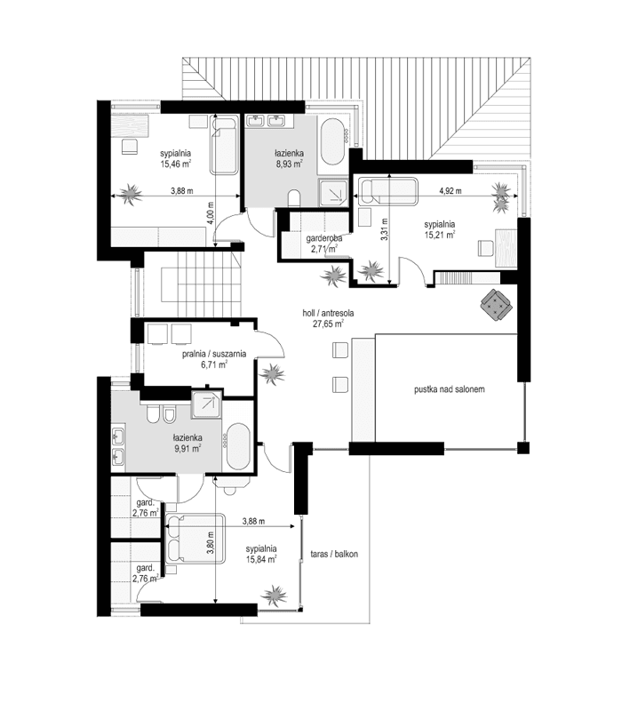
Projekt domu Riwiera 5 to kolejny z popularnych projektów z serii Riwiera, czyli zmodyfikowana i ulepszona wersja bazowego projektu. Projekt domu Riwiera 5 to dom bez podpiwniczenia, z dachem o wyższym kącie nachylenia, oraz z wariantowym wnętrzem piętra: z pustką i antresolą nad salonem, oraz bez pustki. To piętrowy dom, zbudowany na planie litery „T”, z wystającą nieco do przodu częścią garażową. Przykryty jest wielospadowym dachem krytym dachówką. Nowoczesna bryła ozdobiona została dużymi oknami, kamiennymi okładzinami ścian, boniowaniami, oraz gzymsami oddzielającymi parter i piętro. Szczególnie widowiskowe są narożne okna części dziennej, połączone z oknami piętra. Architektura domu jest nowoczesna, a jednocześnie powściągliwa, stonowana i nie przesadzona. Dzięki temu budynek nie traci na swojej przytulności. Dzięki układowi wnętrza i odpowiedniemu rozmieszczeniu okien budynek może być postawiony także na działce z wjazdem od południa. Wnętrze: na parterze zaprojektowano otwartą przestrzeń dzienną - w wersji z pustką z otwarciem sufitu nad salonem. Kuchnia z wyspą oddzielona od holu szklaną ścianą stanowi ozdobę salonu. Pokój dzienny, jadalnia i hol tworzą razem piękne wnętrze. Na parterze mamy też dodatkowy pokój (gabinet lub sypialnię gościnną), wc, kotłownię i dwustanowiskowy garaż. Na piętrze, w zależności od wersji (z pustką lub bez ) mamy trzy lub cztery sypialnie, 2 łazienki, garderoby i pralnię. Sypialnia rodziców to oddzielny apartament z łazienką i dwiema garderobami. W wersji z pustką nad salonem mamy piękną antresolę będącą kontynuacją salonu. Projekt domu Riwiera 5 - wizualizacja frontu - odbicie lustrzane to atrakcyjny, nowoczesny dom, o energooszczędnych rozwiązaniach. Projekt można bardzo łatwo dostosować do standardu NF40. Pracownia posiada wersję odbicia lustrzanego oraz inne propozycje tej serii: bazowa (Projekt domu Riwiera), pomniejszonej (Projekt domu Riwiera 2), poszerzonej, o mniejszej głębokości (Projekt domu Riwiera 3), pomniejszonej ze zmienionym układem wewnętrznym (Projekt domu Riwiera 4). Zapraszamy!
Materiały:
- Fundamenty betonowe ławy i ściany fundamentowe z bloczków betonowych
- Ściany zewnętrzne ściany murowane - pustaki porotherm 25 + styropian + tynk cienkowarstwowy
- Strop Teriva
- Elewacje tynk cienkowarstwowy na styropianie
- Pokrycie dachu dachówka ceramiczna





















