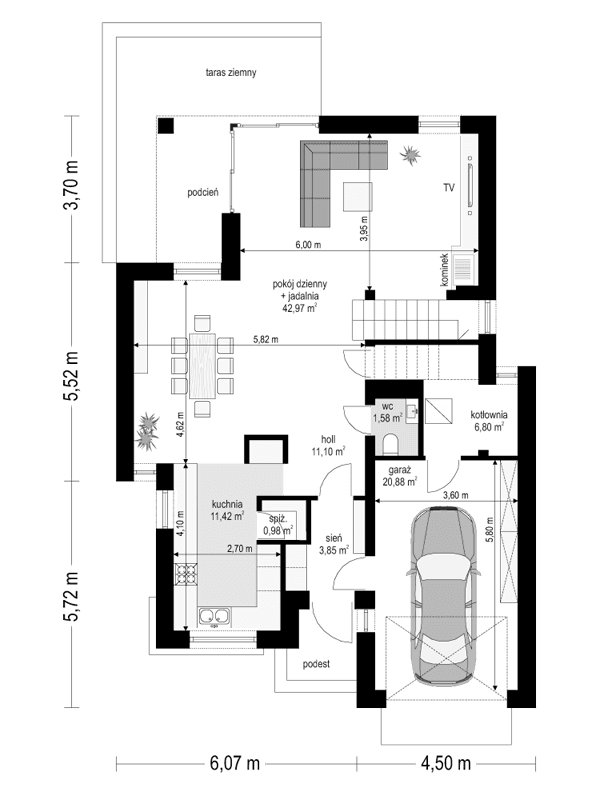
Projekt domu Kasjopea 8 jest kolejną wersją z popularnej serii domów „Kasjopea”. Jest on odświeżoną wersją bazowego projektu z tej kolekcji, do którego wprowadzono szereg modyfikacji - przede wszystkim dach o wyższym kącie nachylenia. Kasjopea 8 to projekt budynku piętrowego, dla 4- 5-osobowej rodziny. Prostokątna bryła przykryta jest czterospadowym dachem. W główną bryłę wbudowany jest jednostanowiskowy garaż. Nowoczesna architektura łączy się tutaj z funkcjonalnie zaprojektowanym wnętrzem. Elewacje domu ozdobione są okładzinami z kamienia (lub boniowaniami tynku), oraz z drewna. Podział ścian na poziome pasy, dodatkowa frontowa loggia, oraz balkon od strony ogrodowej urozmaicają bryłę. Wnętrze domu podzielono na część dzienną i gospodarczo-garażową na parterze, oraz sypialnie na piętrze. Parter to jednoprzestrzenne wnętrze salonu, jadalni i holu. Z pokoju dziennego mamy piękne przeszklenie, otwierające wnętrze na ogród i częściowo zadaszony podcieniem taras. Półotwarta kuchnia ze spiżarnią umieszczona jest niedaleko wejścia i garażu. Z garażu dostępnego z przedsionka dostajemy się do kotłowni domu. Piętro to aż cztery sypialnie i dwie łazienki. Sypialnie dzieci mają wbudowane szafy, natomiast sypialnia rodziców to osoby apartament z własną łazienką, garderobą i zadaszonym balkonem. Dom ma dość prostą konstrukcję, jest bardzo dobrze ocieplony. Będzie łatwy w budowie i niedrogi w późniejszej eksploatacji. Kasjopeę 8 można łatwo dostosować do standardu NF40. Zapraszamy.
Materiały:
- Fundamenty betonowe ławy i ściany fundamentowe z bloczków betonowych
- Ściany zewnętrzne ściany murowane - pustaki porotherm 25 + styropian + tynk cienkowarstwowy
- Strop Teriva
- Elewacje tynk cienkowarstwowy na styropianie
- Pokrycie dachu dachówka ceramiczna




















