Projekt domu Dom na Parkowej jest kolejną wersją projektu z serii "Rezydencja Parkowa" i "Willa Parkowa”. Tym razem jest to najmniejszy wariant tego projektu. Dom przy niewielkiej powierzchni, niedużych wymiarach zewnętrznych i niewysokich kosztach budowy i eksploatacji, jest mniejszym bratem większej Rezydencji, czy Wilii Parkowej. Projekt domku posługuje się tym samym językiem detali architektonicznych, ma podobne proporcje i podobny układ brył.
Budynek został zaprojektowany jako prostokątna główna bryła przykryta czterospadowym dachem, z dobudowanym garażem. Reprezentacyjny front domu, przywołujący na myśl amerykańskie rezydencje z bogatych przedmieść, ozdobiony jest pięknym, wspartym na kolumnach zadaszeniem nad drzwiami wejściowymi. Jest to centralny element elewacji frontowej skupiający całą uwagę. Podobnie od strony ogrodu: głównym elementem ozdabiającym elewację jest piękne zadaszenie nad tarasem, oraz duże przeszklenia salonu. Architektura Domu na Parkowej nasycona klasycznymi detalami, jest jednocześnie spokojna, stonowana, bez przesady. To razem tworzy eleganckie domostwo o ponadczasowym wyglądzie.
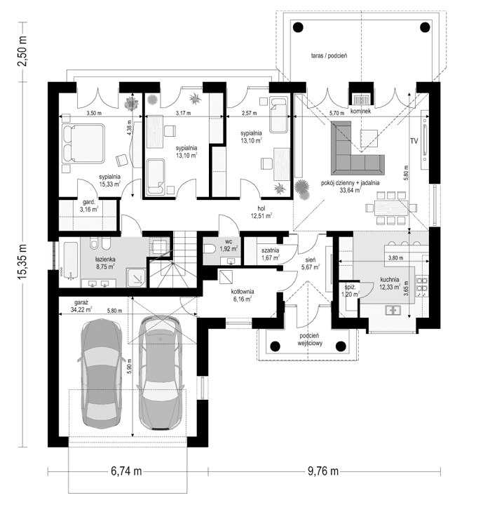
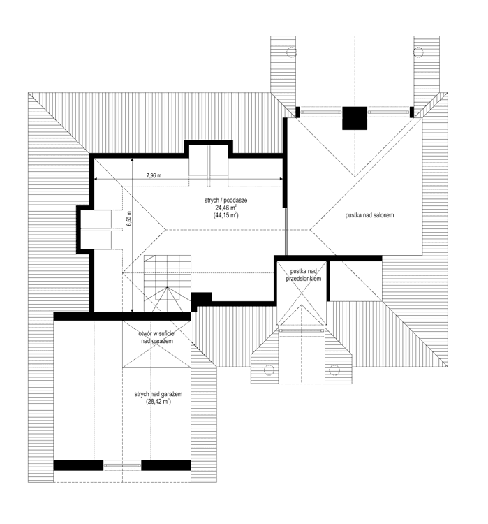
Wnętrze domu: wszystkie pomieszczenia mieszkalne znajdują się na parterze domu. Strych może być zagospodarowany jako dodatkowa użytkowa przestrzeń, lub może być pozostawiony jako strych. Do Domu na Parkowej wschodzimy przez piękną przestronną sień z szatnią, o podwyższonym suficie, z której dostajemy się do holu, lub do kotłowni i garażu. Na wprost wejścia wchodzimy do otwartej przestrzeni dziennej połączonego salonu i jadalni, oraz wydzielonej pięknej kuchni ze spiżarnią. Nad salonem otwarto sufit powiększając dodatkowo przestrzeń dzienną. Otwarcie może być połączone z antresolą na poddaszu. Z drugiej części domu mamy trzy sypialnie, wc i łazienkę. Sypialnie dzieci mają wbudowane szafy. Sypialnia rodziców ma własną garderobę. Wszystkie sypialnie zapewniają domownikom piękny widok przez okna wychodzące na ogród. Nad garażem znajduje się dodatkowy strych gospodarczy.
Projekt domu Dom na Parkowej jest prosty w budowie i energooszczędny. To doskonała propozycja dla osób pragnących tradycyjnej dworkowo- rezydencyjnej architektury, ale zamierzających wydać mniej pieniędzy na budowę, lub nie posiadających dużej działki. Projekt domu Dom na Parkowej można w łatwy sposób dostosować do standardu NF40. Dostępny jest też w wersji odbicia lustrzanego. Zapraszamy do zapoznania się też z innymi projektami domów z tej serii: projekt domu Dom na Parkowej 2, projekt domu Dom na Parkowej 3, projekt domu Dom na Parkowej 4, projekt domu Dom na Parkowej 5, projekt domu Dom na Parkowej 6, projekt domu Dom na Parkowej 7 A, projekt domu Dom na Parkowej 7 B.
Materiały:
- Fundamenty betonowe ławy i ściany fundamentowe z bloczków betonowych
- Ściany zewnętrzne ściany murowane - pustaki porotherm 25 + styropian + tynk cienkowarstwowy
- Strop monolityczny żelbetowy
- Elewacje tynk cienkowarstwowy na styropianie
- Pokrycie dachu dachówka ceramiczna















