Projekt Albatros 2 - elegancki dom dla rodziny
Dom Albatros 2 to propozycja dla osób, które poszukują funkcjonalnego i wygodnego domu z poddaszem użytkowym. Dom jest prosty w budowie i niedrogi, a jednocześnie zapewnia komfortowe warunki do życia dla 4-5 osobowej rodziny.
Dom Albatros 2 to idealna propozycja dla osób, które poszukują funkcjonalnego i wygodnego domu z poddaszem użytkowym. Dom jest prosty w budowie i niedrogi, a jednocześnie zapewnia komfortowe warunki do życia dla 4-5 osobowej rodziny.
Zalety projektu:
- Estetyka: Dom Albatros 2 wyróżnia się nowoczesną i ciekawą estetyką. Bryła budynku jest prosta i zwarta, a jednocześnie ma w sobie „to coś”. Ciekawie dobrane materiały, dobre proporcje brył, właściwa wielkość okien sprawiają, że dom wygląda elegancko i stylowo.
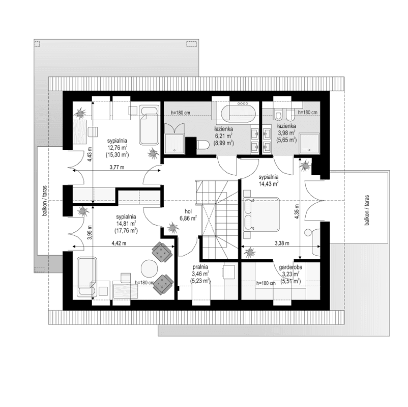
- Funkcjonalność: Dom Albatros 2 został zaprojektowany z myślą o komforcie użytkowania. Przestronna strefa dzienna na parterze zapewnia komfortowe warunki do wspólnego spędzania czasu. Na poddaszu znajdują się trzy przestronne sypialnie, w tym sypialnia rodziców z osobną łazienką i garderobą.
- Rozsądna cena: Dom Albatros 2 jest prosty w budowie i niedrogi. Dzięki temu jest to atrakcyjna propozycja dla osób, które chcą budować dom w rozsądnym budżecie.
- Energooszczędność: Dom Albatros 2 został zaprojektowany z myślą o ograniczeniu kosztów eksploatacji. Dobre docieplenia i zwarta bryła budynku zapewniają wysoką efektywność energetyczną.
Opinie o projekcie:
- "Od dawna marzyliśmy o własnej chacie. Szukaliśmy projektu, który byłby i ładny, i funkcjonalny. Jak tylko zobaczyliśmy projekt Albatrosa 2, to od razu wiedzieliśmy, że to ten dom. Uwielbiamy nowoczesny styl, a ten dom idealnie wpisuje się w nasze gusta. Bryła budynku jest prosta i elegancka, a jednocześnie ma w sobie coś niepowtarzalnego. Ciekawie dobrane materiały i odpowiednia wielkość okien sprawiają, że dom wygląda stylowo i nowocześnie." - Basia i Adam
- "Dom jest też bardzo funkcjonalny. Przestronna strefa dzienna na parterze zapewnia komfortowe warunki do wspólnego spędzania czasu. Na poddaszu znajdują się trzy przestronne sypialnie, w tym sypialnia rodziców z osobną łazienką i garderobą. Budowa domu przebiegała bezproblemowo. Wszystko było przygotowane tak, jak trzeba. Jesteśmy bardzo zadowoleni z efektu końcowego. Dom Albatros 2 to cudowne miejsce dla naszej rodziny." - zadowoleni




















