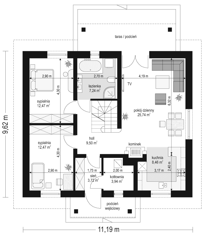
Projekt domu Żabka 2 to dom jednorodzinny dla 3- 5-osobowej rodziny, parterowego, z poddaszem użytkowym. Projekt domu Żabka 2 to wersja wariantowa projektu Żabka, z zagospodarowanym poddaszem nad parterem. Dzięki zwartej bryle, prostej konstrukcji i wykorzystanemu poddaszu, dom jest bardzo ekonomiczny. Stosunek uzyskanej powierzchni użytkowej domu, do kosztu budowy jest atrakcyjny w porównaniu do podobnych projektów. Jednocześnie prostota i zwartość bryły idzie w parze z łatwością wybudowania domu, a dzięki temu uzyskać można niedrogi koszt realizacji. Projekt domu Żabka 2 przy tym nie ustępuje urodą, ani stylem innym konkurencyjnym projektom. Domek prezentuje się bardzo okazale. Wejście domu podkreślone jest zadaszeniem na kolumienkach. Z tyłu, od strony ogrodu elewację ozdabia podcień i taras. Tradycyjna forma architektoniczna łączy się z nowoczesnymi materiałami i detalem. Całość tworzy atrakcyjny wygląd budynku z zewnątrz. Wnętrze domu kryje na parterze: część dzienną, z holem, salonem i kuchnią, oraz dwa pokoje i łazienkę. Na poddaszu natomiast zaprojektowano dwa dodatkowe pokoje i wc. W sumie w tym niedużym domu udało się zaprojektować pięć wygodnych pokoi. Na parterze przy przedsionku z szafami mieści się pomieszczenie gospodarcze – kotłownia. Gazowa kotłownia może być również łatwo zastąpiona kotłem na paliwo stałe. Żabkę 2 wyróżnia bardzo ładny foremny hol, z reprezentacyjnie umieszczonymi w nim schodami. Zabiegowe drewniane schody stanowią urozmaicenie wnętrza. Projekt domu Żabka 2 to doskonała propozycja dla rozsądnych Inwestorów. Prosta konstrukcja pozwoli na zmieszczenie się w niskim budżecie z budową, a dobre izolacje, energooszczędne materiały i technologie zapewnią przyszłym użytkownikom niskie koszty utrzymania budynku. Pracownia posiada wersję podstawową - bez poddasza, lub wersję ze schodami i strychem do zaadaptowania. Posiadamy projekt w odbiciu lustrzanym oraz inne wersje: projekt domu Żabka, projekt domu Żabka 3. Zapraszamy!
Materiały:
- Fundamenty betonowe ławy i ściany fundamentowe z bloczków betonowych
- Ściany zewnętrzne ściany murowane - pustaki porotherm 25 + styropian + tynk cienkowarstwowy
- Strop drewniany belkowy
- Elewacje tynk cienkowarstwowy na styropianie
- Pokrycie dachu dachówka ceramiczna















