Projekt domu Żabka to dom jednorodzinny parterowy dla 3- 5-osobowej rodziny, o prostej bryle, zaprojektowany na planie zbliżonym do kwadratu, przykryty dwuspadowym dachem.
Projekt domu Żabka występuje w kilku wersjach wariantowych: dla trzech osób - z dwiema sypialniami, dla czterech osób - z trzema sypialniami, z niezagospodarowanym strychem, lub ze strychem zagospodarowanym na poddasze użytkowe.
Projekt domu Żabka architektura
Projekt domu Żabka to budynek bardzo łatwy i niedrogi w budowie, a podczas późniejszej eksploatacji będzie tani w utrzymaniu. Koszty budowy projektu Żabka do stanu surowego zamkniętego to 116905 zł. Dzięki zastosowanym materiałom i technologii projekt domku Żabka jest ciepły i energooszczędny - przy zastosowaniu pakietu wentylacji mechanicznej z rekuperacją udaje się bardzo zredukować koszty ogrzewania budynku.
Architektura projektu domku Żabka jest tradycyjna. Frontową elewację budynku zdobi ganek wejściowy, a od strony ogrodu - zadaszenie tarasu. Okna z okiennicami, opaski i cokoły – wszystkie te elementy ciekawie urozmaicają wygląd zewnętrzny projektu Żabka. Symetryczny i proporcjonalny dach projektu Żabka z okapami przykrywa prostokątną parterową bryłę budynku.
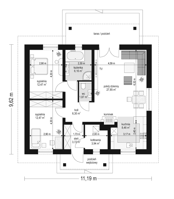
Projekt domu Żabka wnętrze
Wnętrze domu Żabka zaprojektowano funkcjonalnie i maksymalnie praktycznie. Każda z wersji projektu ma inną ilość sypialni, ale pokoje rozplanowanie są podobnie. Wnętrze projektu żabka podzielono na cześć dzienną - z salonem, holem i kuchnią, oraz część nocną - z sypialniami i łazienką. Dodatkowo obok przedsionka w projekcie domku Żabka zaprojektowano kotłownię (kotłownia gazowa, którą można zaadaptować na kotłownię na paliwo stałe).
W projekcie domu Żabka, w salonie zmieszczono meble wypoczynkowe, ścianę TV, kominek, szerokie wyjście na taras i do ogrodu, oraz przestrzeń na stół jadalny przy kuchni. Każda z sypialni Żabki posiada duże szafy wbudowane, które łatwo można zamienić w garderoby. Projekt domku Żabka dostępny jest jako wariant z dwiema lub trzema sypialniami na parterze, oraz wersja wariantowa ze schodami i wykorzystanym poddaszem (dom z dodatkowymi dwoma pokojami). W ofercie pracowni MGProjekt znajduje się też projekt domu Żabka w odbiciu lustrzanym, oraz projekt domu Żabka 2 i projekt domu Żabka 3.
Materiały:
- Fundamenty betonowe ławy i ściany fundamentowe z bloczków betonowych
- Ściany zewnętrzne ściany murowane - pustaki porotherm 25 + styropian + tynk cienkowarstwowy
- Strop drewniany belkowy
- Elewacje tynk cienkowarstwowy na styropianie
- Pokrycie dachu dachówka ceramiczna
















