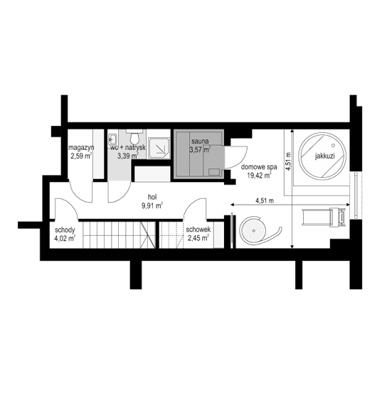
Projekt domu Willa Słoneczna to nowoczesna miejska willa. Dom przeznaczony jest dla 4- 6-osobowej rodziny. Nowoczesna piętrowa forma z płaskim dachem, została połączona z funkcjonalnym przemyślanym wnętrzem. Zasada kompozycji bryły budynku polega na maksymalnym otwarciu wnętrza domu na ogród, przy jednoczesnej minimalnej ekspozycji od strony frontowej. Elewacja frontowa, z niewielką ilością okien, z dużą białą powierzchnią ścian, jest przeciwieństwem otwartej, przeszklonej elewacji ogrodowej, urozmaiconej podcieniami i tarasami. Taki układ pozwala też na maksymalne wykorzystanie naturalnego nasłonecznienia i jednocześnie podwyższenie energooszczędności budynku. Wzajemnie przenikające się pełne białe ściany, z dużymi przeszklonymi powierzchniami, oraz drewnianymi okładzinami, wprowadzają ostre kontrasty w elewacjach domu. Siatka podciągów od strony ogrodu zamyka prostopadłościenną bryłę i jednocześnie stanowi naturalną osłonę przed nadmiernym nasłonecznieniem wnętrza. Od frontu - parterowy garaż z wjazdem z bocznego wewnętrznego dziedzińca łagodzi masywną piętrową sylwetkę domu. Wnętrze składa się z części dziennej na parterze, oraz sypialni na piętrze. Wariantowo w projekcie domu Willa Słoneczna zaplanowano częściowe podpiwniczenie z domowym spa i centrum rekreacji. Na parterze zaprojektowano jednoprzestrzenne, otwarte na ogród wnętrze połączonego salonu, jadalni, holu, oraz półotwartej kuchni. Dodatkowo mieści się tam pokój - np. gabinet, łazienka, oraz garaż i kotłownia. Pięknymi ażurowymi schodami kierujemy się z holu na piętro, gdzie zaplanowano apartament rodziców - z własną łazienką, garderobami i tarasem, sypialnie dziecięce z łazienką i dodatkowy zapasowy pokój. Oryginalne rozwiązania wnętrz, ciekawe detale, nowoczesna forma architektoniczna dadzą przyszłym użytkownikom niekłamaną przyjemność z posiadania takiego domu. Pracownia posiada projekt domu Willa Słoneczna w wersji z podpiwniczeniem lub bez piwnicy, oraz w odbiciu lustrzanym.
Materiały:
- Fundamenty betonowe ławy i ściany fundamentowe z bloczków betonowych
- Ściany zewnętrzne ściany murowane - pustaki porotherm 25 + styropian + tynk cienkowarstwowy
- Strop monolityczny
- Elewacje tynk cienkowarstwowy na styropianie
- Pokrycie dachu papa termozgrzewalna





















