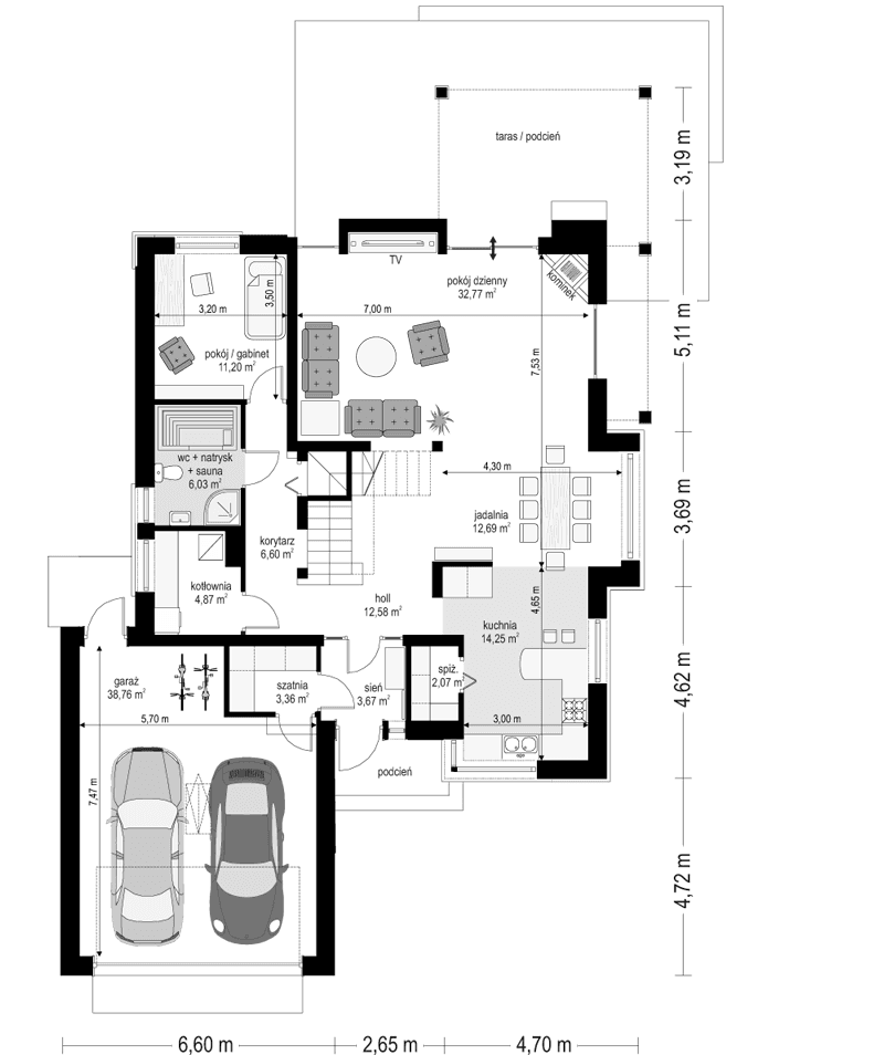
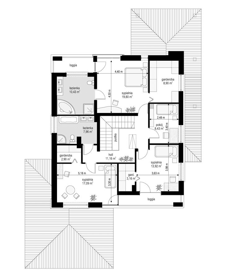
Projekt domu Willa na Borowej to piętrowy dom jednorodzinny dla rodziny 4- 6-osobowej, przykryty czterospadowym dachem. Dom jest podmiejską willą o nowoczesnej, ale spokojnej architekturze. Zwarta bryła budynku z dobudowanym garażem i dużym zadaszonym podcieniem z tyłu domu, została ciekawie ozdobiona klinkierowymi i drewnianymi okładzinami elewacji, oraz loggiami i podcieniem wejściowym. Masywny ozdobny komin kominka wewnętrznego i zewnętrznego, czy narożne okna - to dodatkowe ozdoby bryły. Wszystkie elementy tworzą spójną, spokojną kompozycyjnie całość. W projekcie domu Willa na Borowej, na parterze zaprojektowano duży salon z jadalnią i holem, z częściowo otwartą kuchnią, oraz dodatkowy pokój - gabinet lub sypialnię gościnną. Na piętrze umieszczono sypialnie, z odrębnym apartamentem rodziców, z własną łazienką, garderobą i balkonem z widokiem na ogród. Na parterze przez szerokie przeszklenia z salonu zaplanowano wyjście do dużego podcienia i na taras ogrodowy. Pracownia posiada wersję odbicia lustrzanego projektu domu Willa na Borowej. Zapraszamy do obejrzenia wszystkich propozycji pracowni MGProjekt z tej serii: https://www.mgprojekt.com.pl/willa-na-borowej, https://www.mgprojekt.com.pl/willa-na-borowej-wariant-b, https://www.mgprojekt.com.pl/willa-na-borowej-wariant-c, https://www.mgprojekt.com.pl/willa-na-borowej-wariant-d, https://www.mgprojekt.com.pl/willa-na-borowej-wariant-e.
Materiały:
- Fundamenty betonowe ławy i ściany fundamentowe z bloczków betonowych
- Ściany zewnętrzne ściany murowane - pustaki porotherm 25 + styropian + tynk cienkowarstwowy
- Strop Teriva
- Elewacje tynk cienkowarstwowy na styropianie
- Pokrycie dachu dachówka




















