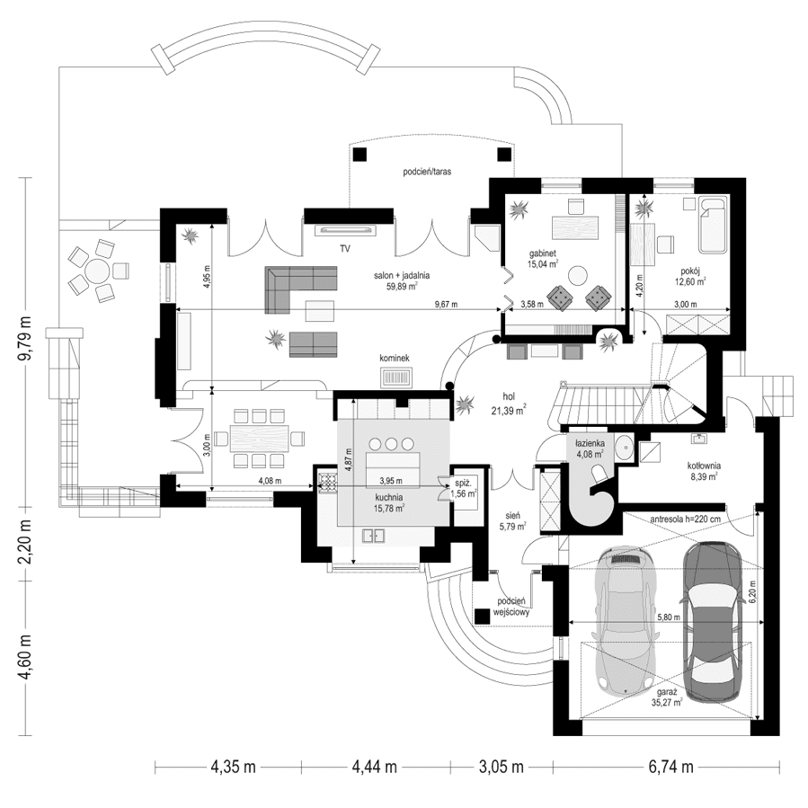
Projekt domu Willa Anna Maria to luksusowa rezydencja przeznaczoną dla 4- 6-osobowej rodziny, utrzymaną w stylu okazałych podmiejskich wilii okresu międzywojennego. Historyzujące detale łączą się tutaj z nowoczesnymi rozwiązaniami technicznymi i ze współcześnie ukształtowanym wnętrzem. Wygląd zewnętrzny domu tworzą wzajemnie przenikające się bryły przekryte dwuspadowymi symetrycznymi dachami. Podcienie, zadaszone tarasy, wykuszowe okna – urozmaicają elewacje i dodają uroku. Cała bryła domu, choć duża - jest proporcjonalna i dostosowana do ludzkiej skali. Dom jest reprezentacyjny i okazały, ale zarazem powściągliwy w swej okazałości. Dużą zaletą projektu - prócz ciekawej nietuzinkowej bryły, jest otwartość wnętrza na otaczający ogród. Dzięki dużej ilości okien schodzących do podłogi wnętrze dzienne na parterze i sypialnie na piętrze łączą się z przyrodą na zewnątrz domu. Wnętrze rezydencji skąpane jest w słońcu. Parter budynku to połączona przestrzeń salonu, jadalni, kuchni i holu - razem tworzących jedną wspólną powierzchnię. Jest ona urozmaicona otwarciem przestrzennym nad jadalnią, czy obniżeniem podłogi salonu. Warto zwrócić też uwagę na piękne reprezentacyjne schody w holu, widoczne z wielu miejsc domu. Na parterze przewidziano miejsce dla gabinetu i dodatkowego pokoju, oraz garażu z kotłownią. Na piętrze zaprojektowano apartament rodziców - z własną dużą garderobą i pokojem kąpielowym, dwie sypialnie dzieci z garderobami i łazienką, pralnię, oraz dodatkowy duży pokój nad garażem, mogący służyć jako pomieszczenie rekreacyjne (np. kino domowe, czy pokój fitness ). Pokój można też zamienić na dodatkową jedną lub dwie sypialnie, jeśli jest taka potrzeba. Budynek jest bardzo dobrze izolowany. Zastosowano w nim energooszczędne technologie i instalacje, dzięki którym dom nie będzie drogi w utrzymaniu. Dość prosta konstrukcja budynku pozwoli go też niedrogo wybudować. Projekt domu Willa Anna Maria jest propozycją dla Klientów marzących o okazałej stylowej rezydencji, posiadającej wszystkie wygody, jednak mieszczącej się w sensownej powierzchni i sensownym koszcie budowy. Zapraszamy !
Materiały:
- Fundamenty betonowe ławy i ściany fundamentowe z bloczków betonowych
- Ściany zewnętrzne ściany murowane - pustaki porotherm 25 + styropian + tynk cienkowarstwowy
- Strop monolityczne wylewane żelbetowe
- Elewacje tynk cienkowarstwowy na styropianie
- Pokrycie dachu dachówka ceramiczna





















