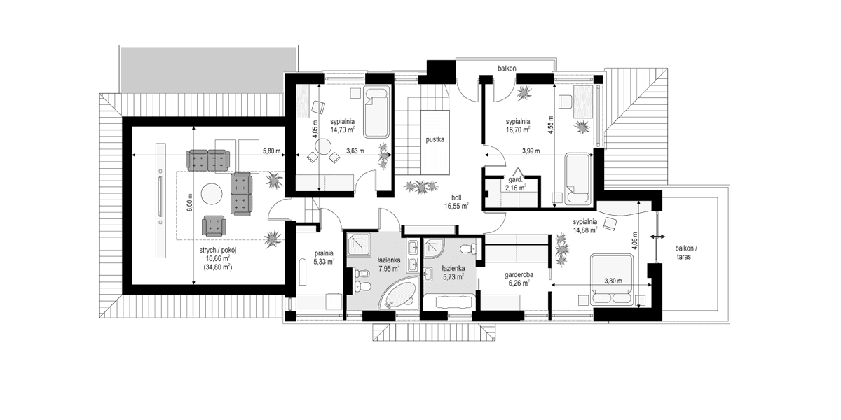
Projekt domu Verona to domek odpowiedni dla rodziny 4- 5-osobowej. Piętrowy dom jest przykryty czterospadowym dachem. Budynek został zaprojektowany tak, aby mógł się zmieścić na płytkiej działce, o niewielkiej głębokości od ogrodzenia frontowego przy drodze do tylnej granicy działki. Szczególnie dedykowany dla działek, które ze względu na swoją głębokość mają ogród z boku domu. Nowoczesna forma architektoniczna domu Verona, nawiązuje do projektów F.L.Wrighta. Piętrową elewację frontową domu podzielono poziomymi pasami z dolną częścią klinkierową. Dzięki czemu budynek wydaje się niższy i bardziej wrośnięty w otoczenie. Dodatkowe bryły garażu i kuchni z płaskim dachem urozmaicają kompozycję. Od strony ogrodu zaprojektowano narożne patio z częściowo zadaszonym tarasem, na który wychodzi się szerokimi przejściami z salonu i kuchni. Wnętrze domku Verona podzielono na jednoprzestrzenną część dzienną na parterze, z efektownymi schodami czy ścianą kominkowo-telewizyjną w salonie, oraz część nocną piętra z osobnym apartamentem rodziców. W projekcie domu Verona, na poddaszu nad garażem znajduje się duży strych do dowolnego wykorzystania. Na parterze obok salonu zaprojektowano dodatkowy pokój - gabinet lub sypialnię gościnną. Pracownia posiada również projekt domu Verona w odbiciu lustrzanym.
Materiały:
- Fundamenty betonowe ławy i ściany fundamentowe z bloczków betonowych
- Ściany zewnętrzne ściany murowane - pustaki porotherm 25 + styropian + tynk cienkowarstwowy
- Strop monolityczny żelbetowy
- Elewacje tynk cienkowarstwowy na styropianie
- Pokrycie dachu dachówka


















