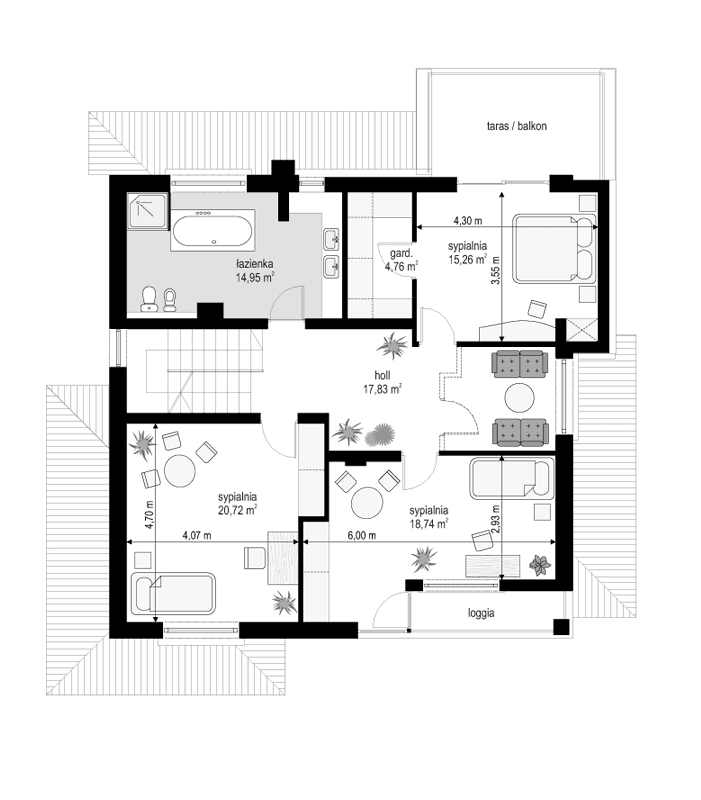
Projekt domu Vega to piętrowy domek jednorodzinny dla rodziny 4- 5-osobowej, przykryty kopertowym dachem. Projekt domu Vega to miejska willa, charakteryzująca się nowoczesną acz powściągliwą architekturą. Budynek został zaprojektowany na niewielką działkę, gdzie można zabudować małą powierzchnię a bryła domu musi być maksymalnie zwarta. W piwnicy ukryto pomieszczenia techniczne, dzięki czemu przestrzeń dzienna może zając całość parteru - poza garażem wbudowanym w bryłę domu. Pomieszczenia i ich doświetlenie zaprojektowano w ten sposób, aby dom nadawał się również na działkę z wjazdem od południa. Wnętrze budynku podzielono na jednoprzestrzenną część dzienną na parterze, z dodatkowym pokojem - gabinetem lub sypialnią gościnną, oraz część nocną piętra z sypialniami i dużą rodzinną łazienką. Z obszernego holu można wyodrębnić dodatkowy niewielki pokoik. Nad piętrem znajduje się jednoprzestrzenny strych mogący służyć jako dodatkowe pomieszczenie. Dom Vega jest otwarty na ogród z jadalni, pięknym narożnym przeszkleniem z przesuwnymi drzwiami, łączącym się z tarasem z podcieniem. Pracownia posiada też projekt domu Vega w odbiciu lustrzanym.
Materiały:
- Fundamenty betonowe ławy i ściany fundamentowe z bloczków betonowych
- Ściany zewnętrzne ściany murowane - pustaki porotherm 25 + styropian + tynk cienkowarstwowy
- Strop Teriva
- Elewacje tynk cienkowarstwowy na styropianie
- Pokrycie dachu dachówka















