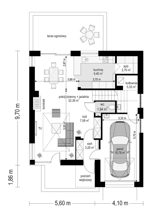
Projekt domu Tytan to projekt piętrowego domu, przeznaczonego dla 4- 5-osobowej rodziny. Projekt domu Tytan przeznaczony jest dla Inwestorów chcących mieszkać w domu „bez skosów”, którzy dysponują niewielką parcelą. Dom jest zaprojektowany w taki sposób, aby pasował na działkę z niekorzystnym nasłonecznieniem – na przykład z ulicą od południa. Prosta bryła, nowoczesny wyraz architektoniczny, połączony z funkcjonalnym wnętrzem, daje bardzo korzystne połączenie. Dom jest funkcjonalny choć niewielki – z ładnym salonem, garażem i czterema pokojami na piętrze ma powierzchnię użytkową poniżej 140 m2. Koszt budowy domu, dzięki prostej konstrukcji, nie jest wygórowany. Technologie, które zastosowano bardzo polepszają energooszczędność - doskonałe ocieplenia, wentylacja mechaniczna z rekuperacją. Wszystkie te elementy pomniejszają koszty przyszłej eksploatacji budynku. Architektura zewnętrzna łączy poziome pasy elewacji wykończonych różnymi materiałami z dużymi przeszkleniami - szczególnie narożnymi oknami salonu i sypialni powyżej. Połączenie tynku, okładziny drewnianej, czy płyt hpl, daje atrakcyjny wygląd domu. Wnętrza podzielono na część dzienną, dzielącą przestrzeń parteru z pomieszczeniami technicznymi, oraz sypialnie na piętrze. Salon połączony z aneksem jadalnym, kuchnią i holem tworzą razem atrakcyjne jednoprzestrzenne wnętrze. Dostępna z przedsionka część techniczna składa się z garażu i kotłowni. Gazowy kocioł może być łatwo zamieniony na kotłownię na paliwo stałe. Na piętrze wydzielono wygodny apartament rodziców, z własną łazienką i naprawdę dużą garderobą. Dodatkowo zaprojektowano dwie sypialnie dziecięce, dodatkowy pokój (gabinet lub sypialnia), oraz drugą łazienkę. Projekt domu Tytan, to solidny, niewielki, funkcjonalnie zaprojektowany dom, w sam raz dla kilkuosobowej rodziny pragnącej mieszkać z nowoczesnej architekturze. Prostota konstrukcji pozwoli utrzymać koszt budowy w granicach rozsądku, a energooszczędne rozwiązania pozwolą osiągnąć niskie koszty eksploatacji budynku. Tytan dostępny jest w odbiciu lustrzanym. Zapraszamy również do zapoznania się z pełną ofertą pracowni MG Projekt: projekt domu Tytan 2, projekt domu Tytan 2B, projekt domu Tytan 3, projekt domu Tytan 4, projekt domu Tytan 5, projekt domu Tytan 5B, projekt domu Tytan 6, projekt domu Tytan 6B.
Materiały:
- Fundamenty betonowe ławy i ściany fundamentowe z bloczków betonowych
- Ściany zewnętrzne ściany murowane - pustaki porotherm 25 + styropian + tynk cienkowarstwowy
- Strop Teriva
- Elewacje tynk cienkowarstwowy na styropianie
- Pokrycie dachu dachówka ceramiczna




















