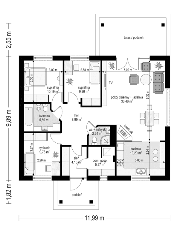
Projekt domu Szpak to prosty w budowie parterowy dom jednorodzinny, o spokojnej, skromnej architekturze. Budynek przeznaczony dla czteroosobowej rodziny. Prostokątna bryła domu przekryta dwuspadowym łagodnym dachem, z dodatkowymi podcieniami frontowego ganku i ogrodowego zadaszenia tarasu, kryje funkcjonalne, przemyślane wnętrze. Proporcjonalnie rozplanowane okna, ozdoby elewacji, dodatki - jak okiennice, czy kolumienki akcentujące wejście, nadają elewacjom atrakcyjnego wyglądu. Projekt domu Szpak, wewnątrz podzielono na część dzienną, z obszernym salonem z kominkiem, częściowo otwartą ustawną kuchnią i wygodnym holem, oraz na pokoje sypialne, będące trochę odseparowane od pokoju dziennego. Salon w projekcie Szpak ma, przez szerokie przeszklone drzwi bardzo ładne połączenie z tarasem ogrodowym. Zadaszenie tarasu tworzy naturalne przedłużenie salonu. Każda z trzech sypialni ma zaprojektowane wnęki szafowe. Łazienka i dodatkowe wc z natryskiem ułatwią codzienne użytkowanie domu. Obok dużego przedsionka zaprojektowano kotłownię, przystosowaną do ogrzewania paliwem stałym. Dom Szpak został zaprojektowany w ponadczasowej estetyce, z pominięciem chwilowych mód, z zastosowaniem tradycyjnych, trwałych materiałów. To po prostu normalny dom. Pracownia posiada wersję odbicia lustrzanego projektu oraz projekt domu Bursztyn czyli wersja z garażem. Zapraszamy!
Materiały:
- Fundamenty betonowe ławy i ściany fundamentowe z bloczków betonowych
- Ściany zewnętrzne ściany murowane - pustaki ceramiczne max + styropian + tynk cienkowarstwowy
- Strop drewniane wiązary kratownicowe
- Elewacje tynk cienkowarstwowy na styropianie
- Pokrycie dachu dachówka



















