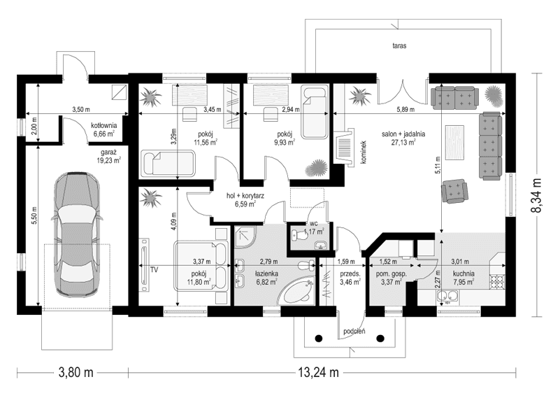
Projekt domu Słoneczny z poddaszem to wersja Słonecznego z podniesionym dachem. Dzięki temu w projekcie przewidziano strych do adaptacji na poddasze użytkowe. Na parterze oprócz salonu połączonego przestrzennie z holem i kuchnią, trzech sypialni, pomieszczenia gospodarczego, zaprojektowano garaż z kotłownią. Nad parterem zaprojektowano strych, który w drugim etapie budowy domu może zostać wykorzystany jako poddasze z dwiema sypialniami i łazienką. Wówczas w miejsce wyciąganych składanych schodków należy zaplanować w holu schody na poddasze. Architektura budynku: bezpretensjonalna, prosta w wyrazie i oszczędna w detalu. Prosta konstrukcja domku Projekt domu Słoneczny z poddaszem pozwala na ekonomiczną i łatwą budowę. Pracownia posiada wersję projektu w odbiciu lustrzanym. Zapraszamy do zapoznania się z pełną ofertą pracowni MG Projekt tej serii: projekt domu Słoneczny, projekt domu Słoneczny z garażem, projekt domu Słoneczny z garażem 2.
Materiały:
- Fundamenty betonowe
- Ściany dwuwarstwowe: gazobeton + wełna mineralna lub styropian
- Strop drewniany belkowy
- Pokrycie dachu dachówka ceramiczna














