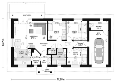
Projekt domu Słoneczny z garażem 2 to parterowy budynek jednorodzinny dla rodziny 4- 5-osobowej. Słoneczny z garażem 2 jest kolejną wersją popularnej serii Słonecznych z pracowni MGProjekt. Domek jest parterowy, zbudowany na rzucie prostokąta, przekryty dwuspadowym dachem. Podstawowy atut budynku to jego prosta konstrukcja, która pozwoli na niedrogą i niekłopotliwą realizację. Każdy majster bez trudu podejmie się zbudowania tak prostego budynku. Dzięki właściwym proporcjom i odpowiednio dobranym materiałom i detalom Słoneczny z garażem 2 jest jednocześnie zgrabny i ma sympatyczny wygląd. Okna ozdobione okiennicami, okładziny z płytek klinkierowych na ścianach, oraz ganek wejściowy i zadaszenie ogrodowe tarasu - urozmaicają elewacje domu. Duże drzwi balkonowe otwierają piękny widok z salonu na taras i otaczający dom ogród. Wnętrze domu podzielono na część dzienną - z salonem, holem i kuchnią, sypialnie, oraz część gospodarczą – z garażem i kotłownią. Wchodząc do domu z przedsionka możemy wejść do pomieszczenia gospodarczego - spiżarni i magazynu koło kuchni (bardzo przydatnego). Połączone wnętrze salonu, holu i kuchni tworzy ładną wspólną przestań dzienną. Obok korytarzem przechodzimy do trzech sypialni z łazienką i wc. Wreszcie przez oddzielny korytarz możemy przejść do garażu i umieszczonej za nim kotłowni. Kotłownia może być zasilana gazem, ale również można ją łatwo przystosować do paliwa stałego. Projekt domu Słoneczny z garażem 2 to dom energooszczędny, zaprojektowany z wykorzystaniem nowoczesnych materiałów i technologii, prosty i niedrogi w budowie. W późniejszej eksploatacji tani i łatwy w utrzymaniu. W sam raz dla rozsądnie myślących i oszczędnych Inwestorów. Pracownia posiada projekt w odbiciu lustrzanym. Zapraszamy do zapoznania się z pełną ofertą pracowni MG Projekt tej serii: projekt domu Słoneczny, projekt domu Słoneczny z garażem, projekt domu Słoneczny z poddaszem.
Materiały:
- Fundamenty betonowe ławy i ściany fundamentowe z bloczków betonowych
- Ściany zewnętrzne ściany murowane - pustaki porotherm 25 + styropian + tynk cienkowarstwowy
- Strop drewniany belkowy
- Elewacje tynk cienkowarstwowy na styropianie
- Pokrycie dachu dachówka ceramiczna


















